Baugrundstück mit Baugenehmigung in schöner Wohnlage

Kaufpreis 168.000 €
65345 Eltville am Rhein

Objektdaten

Veröffentlicht am: 13. März 2026
  • Objektbeschreibung

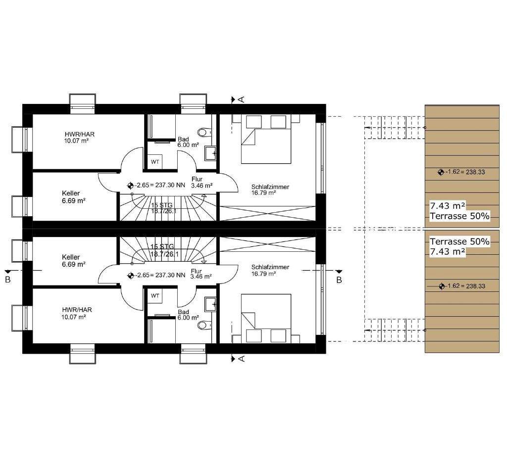
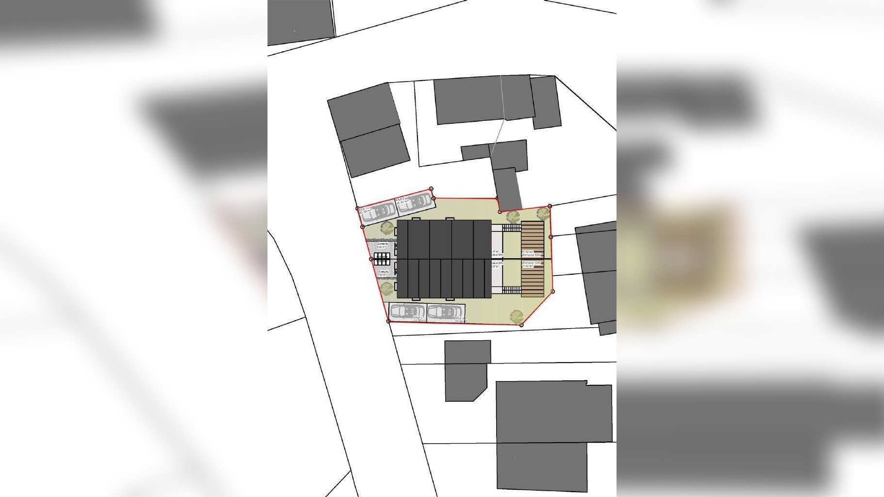
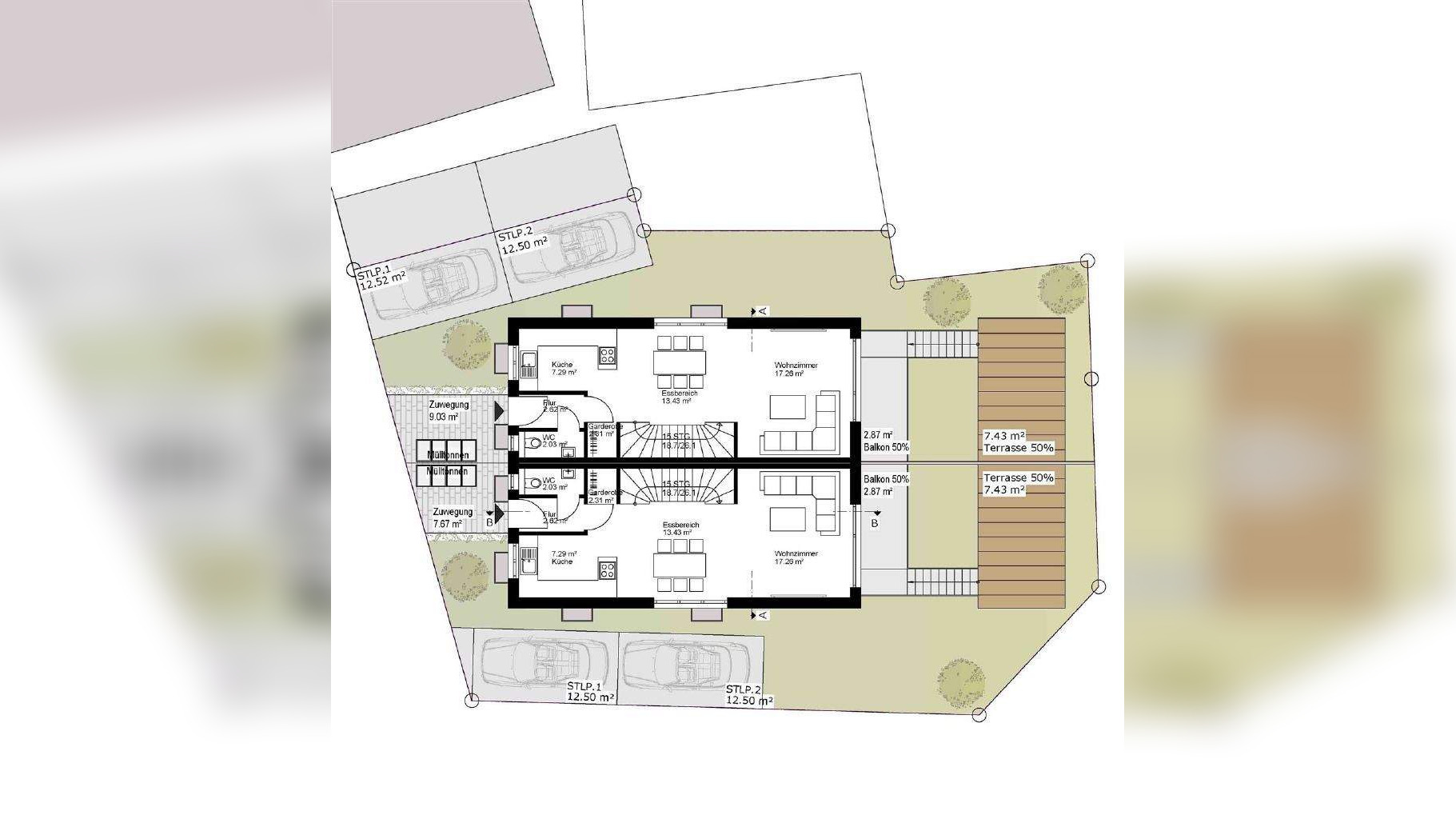
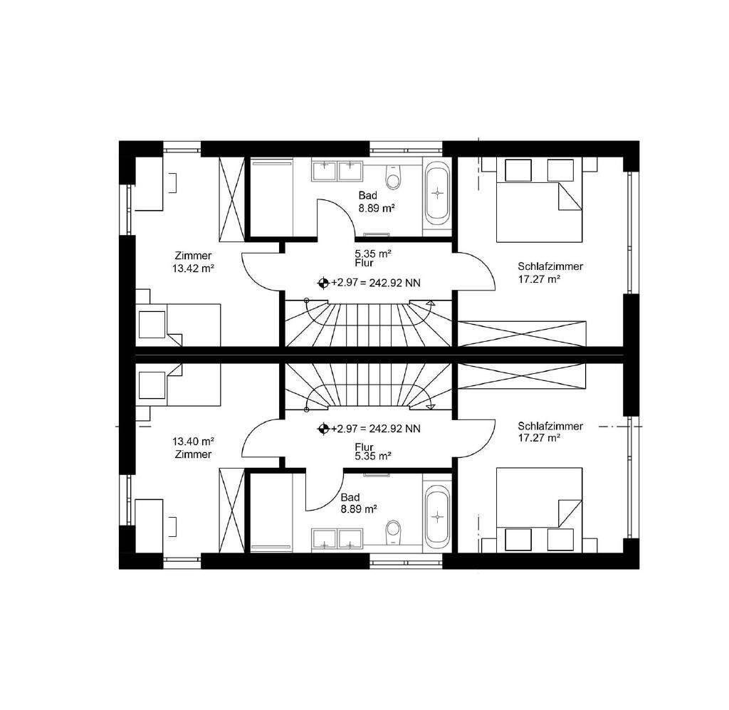
    Baugrundstück mit Baugenehmigungin schöner Wohnlage von Eltville-RauenthalIm Überblick:- ideal für ein modernes Doppelhaus oder ein Einfamilienhaus- Baugenehmigung liegt bereits vor- Provisionsfrei- schnelle Anbindung ins komplette Rhein-Mainz-Gebiet- in schöner Lage teilweise mit FernblickGrundstück:ca. 185 m²Bebauung:nach §34 BauGB NachbarschaftsbebauungBaugenehmigung für ein Doppelhaus liegt bereits vorPlanungsvorschlag:großes Doppelhaus mit jeweils ca. 125 m² Wohnflächeweitere Details gerne auf AnfrageStellplätze:jeweils 2 Außenstellplätze möglichLage:in zentraler, dennoch ruhiger Wohnlage - durch Naturnaher Umgebung tolleSpazier- und Wandermöglichkeiten und schnelle Anbindung ins Rhein-Main-GebietGesamtkaufpreis:Optional: das gesamte Grundstück mit ca. 370 m²Für die Zusendung eines Exposés benötigen wir Ihre vollständige Anschrift mit Telefon- Nr. Bitte füllen Sie freundlicherweise das Kontakt-Formular aus.*** Sie möchten Ihr Haus in gute Hände geben? Wir haben sicherlich auch für Ihre Immobilie den passenden Käufer. Sprechen Sie uns unverbindlich an. Wir beraten Sie gerne
    Nach oben scrollen