Objektdaten
Objektbeschreibung
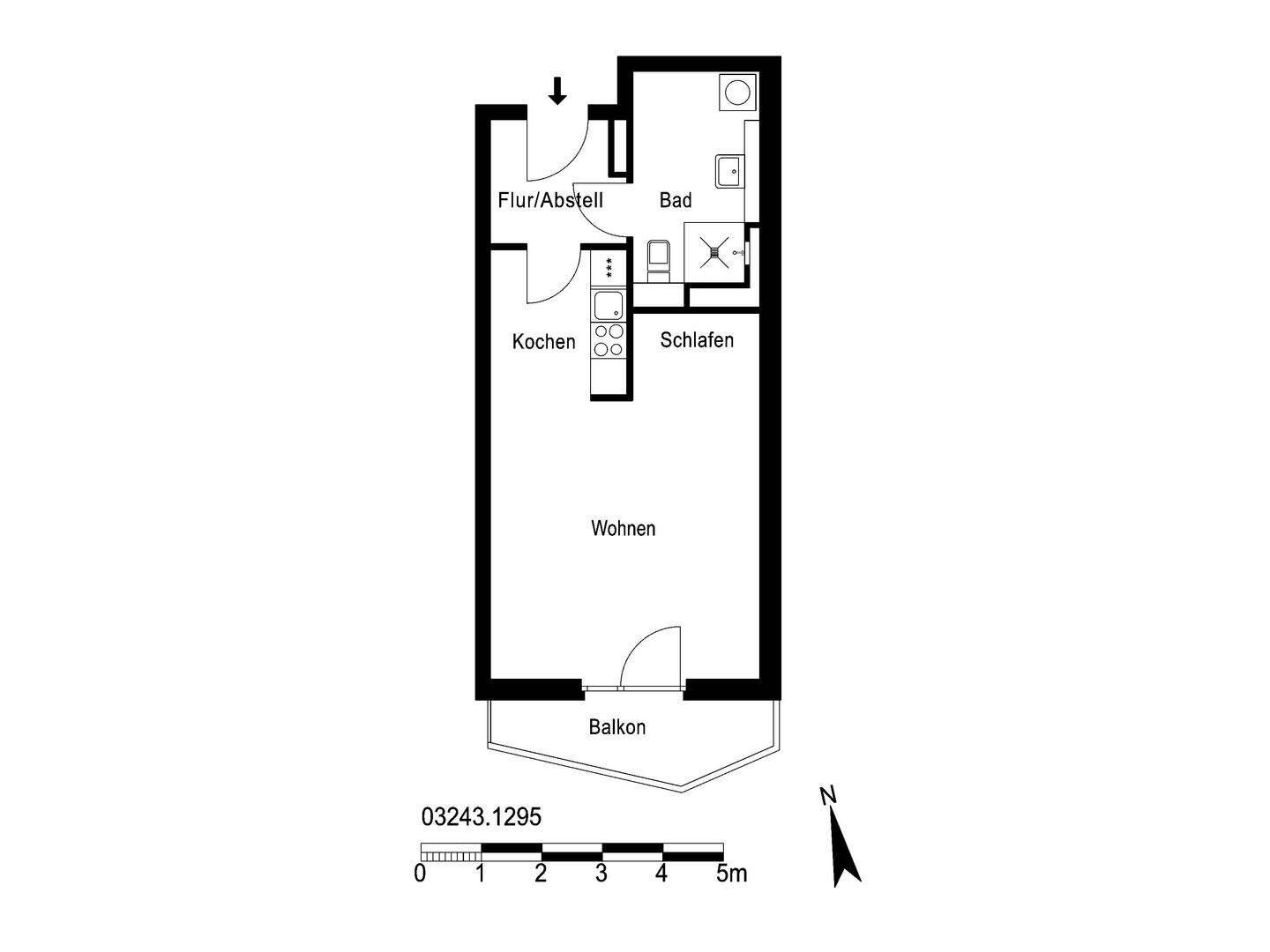
Objektreferenz: 10-03243-00016-1295Bitte beachten Sie, dass es sich hier um ein Seniorenhaus mit zusätzlichen Serviceangeboten für Personen ab 65 Jahren handelt. Die Wohnung wird ausschließlich an einen 1-Personen-Haushalt ohne WBS-Anspruch vermietet. Ob Sie WBS-berechtigt sind, können Sie auf folgender Webseite prüfen: https://www.gesobau.de/mieten/wohnberechtigungsschein/Unsere Wohnungen ermöglichen älteren oder in ihrer Mobilität eingeschränkten Menschen, möglichst lange selbstständig in den eigenen vier Wänden zu leben. Zusammen mit unserem Service-Partner unterstützen wir Sie mit viel Engagement beim Wohnen und im Alltag: Neben tollen Services werden diverse Veranstaltungen in den großzügigen Gemeinschaftsräumen angeboten. Hierfür wird ein Servicepauschale in Höhe von 45,34 €/mtl. fällig. Die im Jahr 2022 erbaute Wohnung ist mit einem modernen Bad, offener Wohnküche, CV-Bodenbelag, Fußbodenheizung und Balkon ausgestattet. Das Haus verfügt über einen Aufzug.In der nahe gelegenen Quartiersgarage haben Sie die Möglichkeit sich für einen PKW-Stellplatz für 65€/mtl. zu bewerben. Diese befindet sich ca. 5 Gehminuten vom Grundstück entfernt.Gern können Sie sich aber bei der Besichtigung vor Ort einen eigenen Eindruck verschaffen. Über den folgenden Link gelangen Sie zu einer virtuellen Wohnungsbesichtigung: https://youtu.be/16wE3jXrR9wÄhnliche Angebote
So funktioniert es
- Alle neuen Anzeigen matchen wir kostenlos mit Deinen Suchparametern.
- Passende Angebote senden wir Dir in einer E-Mail pro Tag.
- Du kannst auch verschiedene Suchen anlegen und Dich jederzeit abmelden. Mehr dazu




