Warmmiete 1.400 €
Zimmer 3
Größe 91 m²
93055 Regensburg
Objektdaten
Veröffentlicht am: 14. März 2026
Frei ab: 15. Dezember 2025
Kaltmiete 1.100 €
Baujahr: 1968
Energieausweis: Liegt bei der Besichtigung vor
Danke! Bitte bestätige Deine E-Mail-Adresse – wir haben Dir soeben eine Mail geschickt.
Es gab ein Problem beim Absenden. Bitte versuche es erneut.
Bitte bestätige Deine E-Mail-Adresse, um Updates zu erhalten.
Objektbeschreibung
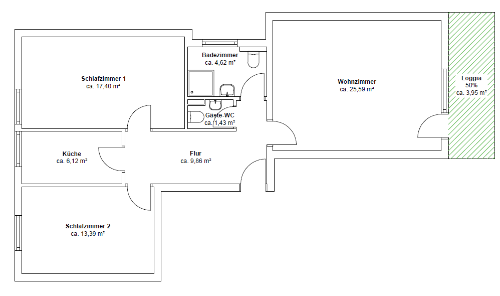
Wir freuen uns, Ihnen diese attraktive Etagenwohnung zur Miete anbieten zu können. Das Objekt befindet sich im begehrten Ostenviertel von Regensburg, genauer gesagt im Stadtteil Kreuzhof.Die Wohnung wurde im Jahr 1968 erbaut und wurde erst kürzlich vollständig renoviert, was einen modernen und ansprechenden Zustand gewährleistet. Auf einer großzügigen Wohnfläche von ca. 91 m² bietet diese Wohnung ausreichend Platz für eine kleine Familie oder ein Paar.Die Wohnung verfügt über 3,5 Zimmer, darunter 2 Schlafzimmer, die zum Entspannen und Erholen einladen. Ein neu saniertes Badezimmer mit großer, begehbarer Dusche, wie auch eine Gästetoilette steht Ihnen ebenfalls zur Verfügung. Eine große Diele trägt als Entréebereich zu der großzügigen Wirkung der Wohnung bei. Bitte beachten Sie auch auf dem Grundriss den großen Einbauschrank zwischen Bad und Schlafzimmer: Dieser bietet durch eine größere Tiefe wirklich Stauraum und ersetzt eine Abstellkammer. Auch die Küche beeindruckt durch eine gute Größe und ermöglicht viele Gestaltungsmöglichkeiten von unterschiedlich großen Essbereichen bis zu einer reinen Kochküche. Besonders hervorzuheben sind zudem der Balkon, welcher Ihnen die Möglichkeit bietet, die frische Luft und die sonnigen Tage zu genießen. Zögern Sie nicht, uns zu kontaktieren, um weitere Informationen zu erhalten oder einen Besichtigungstermin zu vereinbaren. Wir stehen Ihnen gerne zur Verfügung und freuen uns darauf, Ihnen diese Wohnung persönlich präsentieren zu dürfen.
So funktioniert es
- Alle neuen Anzeigen matchen wir kostenlos mit Deinen Suchparametern.
- Passende Angebote senden wir Dir in einer E-Mail pro Tag.
- Du kannst auch verschiedene Suchen anlegen und Dich jederzeit abmelden. Mehr dazu
Wir haben soeben eine E-Mail mit Deinem Suchauftrag an Dich geschickt. – Klicke in dieser Mail auf den Bestätigungslink und schon geht's los. Prüfe ggf. auch Deinen Spamordner.
Es gab ein Problem beim Absenden Deiner E-Mail-Adresse. Bitte versuche es erneut.
WARNUNG: Bitte bestätige Deine E-Mail-Adresse, um regelmäßige Updates zu erhalten.