Kaufpreis 185.000 €
Zimmer 5
Größe 142 m²
39217 Schönebeck (Elbe)
Objektdaten
Veröffentlicht am: 14. März 2026
Baujahr: 1908
Energieausweis: Liegt bei der Besichtigung vor
Danke! Bitte bestätige Deine E-Mail-Adresse – wir haben Dir soeben eine Mail geschickt.
Es gab ein Problem beim Absenden. Bitte versuche es erneut.
Bitte bestätige Deine E-Mail-Adresse, um Updates zu erhalten.
Objektbeschreibung
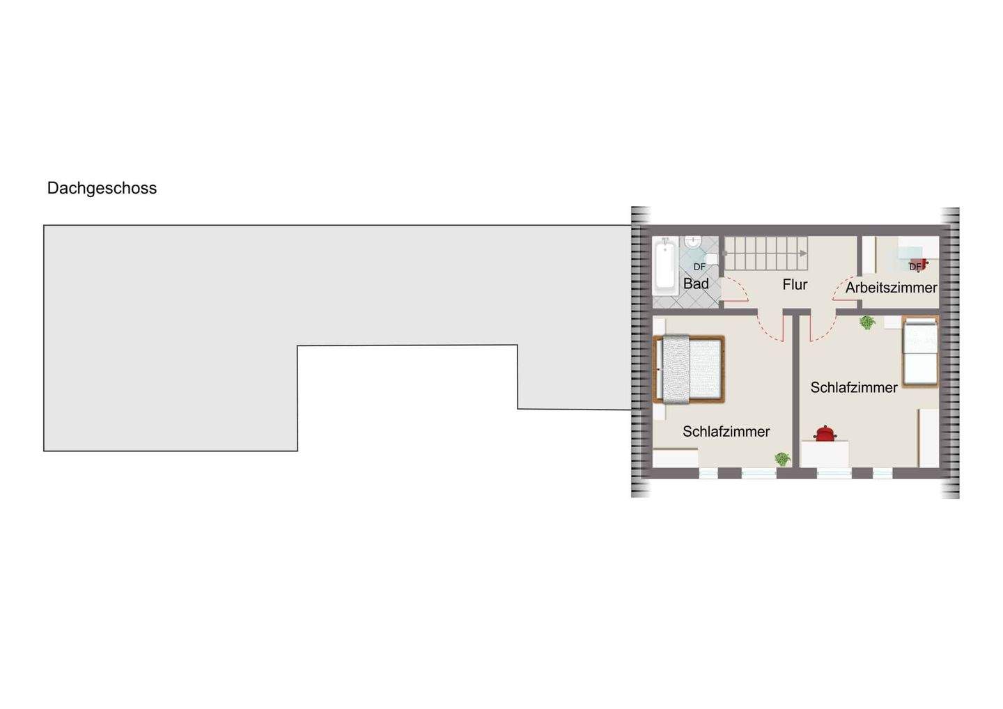
Die Doppelhaushälfte wurde ca. 1908 in massiver Bauweise errichtet. Sie besteht aus einem Kellergeschoss (teilunterkellert), Erdgeschoss, Dachgeschoss und Spitzboden. Am Objekt ist ein massiver Anbau mit Tageslichtbad, Waschküche und Hobbyraum sowie eine Garage.Um 1994 haben die Eigentümer umfangreiche Sanierungsarbeiten vorgenommen (Fenster, geänderte Raumaufteilung, Heizung, Sanitär, Fassade, Elektro, Dach). Dennoch sind sicherlich weitere Sanierungsarbeiten erforderlich, um das Objekt an Ihre individuellen Bedürfnisse anzupassen.Das große Grundstück ist eingefriedet und verfügt über eine Toreinfahrt. Die Raumaufteilung gestaltet sich wie folgt:EG: Eingangsbereich, WC, Küche, Diele, Wohnzimmer, Tageslichtbad, Waschküche, HobbyraumDG: Diele, Tageslichtbad, Arbeitszimmer, Schlafzimmer, KinderzimmerKG: drei Räume
So funktioniert es
- Alle neuen Anzeigen matchen wir kostenlos mit Deinen Suchparametern.
- Passende Angebote senden wir Dir in einer E-Mail pro Tag.
- Du kannst auch verschiedene Suchen anlegen und Dich jederzeit abmelden. Mehr dazu
Wir haben soeben eine E-Mail mit Deinem Suchauftrag an Dich geschickt. – Klicke in dieser Mail auf den Bestätigungslink und schon geht's los. Prüfe ggf. auch Deinen Spamordner.
Es gab ein Problem beim Absenden Deiner E-Mail-Adresse. Bitte versuche es erneut.
WARNUNG: Bitte bestätige Deine E-Mail-Adresse, um regelmäßige Updates zu erhalten.