Objektdaten
Objektbeschreibung
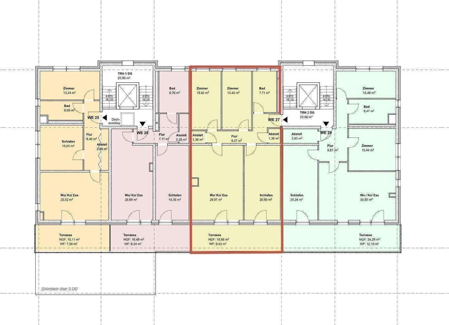
Das Mehrfamilienhaus mit Tiefgarage verfügt über 28 Wohneinheiten (2 - 4 Raumwohnungen) mit innovativen Grundrissen in verschiedenen Größen von ca. 44 m² bis 114 m². Die Eigentumswohnungen verteilen sich auf das Erdgeschoss, 1. - 3.Obergeschoss und das Dachgeschoss. Über das Treppenhaus oder den Aufzug sind die einzelnen Wohnebenen perfekt erreichbar. Alle Wohnungen verfügen über einen Balkon, Loggia oder eine Terrasse.Auf dem Grundstück finden sich Abstellmöglichkeiten für Freizeit- und Nutzfahrräder sowie die Möglichkeit zum Laden von Elektro-Bikes.Der Baubeginn ist Anfang 2026 geplant (ausgenommen sind jahreszeitlich abhängige Außenanlagengestaltungen).Ähnliche Angebote
So funktioniert es
- Alle neuen Anzeigen matchen wir kostenlos mit Deinen Suchparametern.
- Passende Angebote senden wir Dir in einer E-Mail pro Tag.
- Du kannst auch verschiedene Suchen anlegen und Dich jederzeit abmelden. Mehr dazu



