Objektdaten
Objektbeschreibung
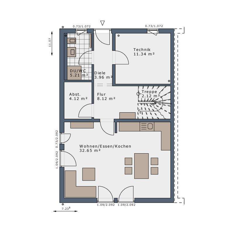
Die gepflegte Doppelhaushälfte befindet sich in ruhiger und familienfreundlicher Lage von Wellingsbüttel. Sie wurde im Jahr 1967 in solider Massivbauweise mit Vollkeller errichtet. Für die Fassade wurde ein Gelbklinker gewählt, die aus dem Baujahr stammenden Holzfenster sind einfach- und zweifachverglast gemischt, das Walmdach ist mit anthrazitfarbenen Pfannen eingedeckt. Eingebettet auf einem ca. 470 m² großen Grundstück bietet das Haus rund 150 m² Wohnfläche verteilt auf derzeit 3 plus 2 halbe Zimmer.Die Raumaufteilung des Hauses ist familiengerecht und funktional. Herzstück des Hauses bildet der einladende Wohn- /Essbereich mit Kamin. Mehrere gut geschnittene und vor allem gut belichtete Zimmer ermöglichen eine flexible Nutzung als Schlaf-/, Kinder- oder Arbeitszimmer. Ein Zimmer bietet sogar den Austritt auf einen Balkon. Untergeschoss und Spitzboden bieten zudem ausreichend Abstellmöglichkeiten.Die Immobilie befindet sich in einem gepflegten Zustand. Sanierungsmaßnahmen sind einzuplanen, bieten jedoch die einmalige Möglichkeit, das Haus vollständig nach den eigenen Vorstellungen zu gestalten. Das Grundstück verfügt über eine vorteilhafte Südost-Ausrichtung und sorgt für helle Wohnräume sowie gute Lichtverhältnisse im Garten. Die Terrasse ist vor fremden Blicken geschützt, eine Markise spendet bei Bedarf wohltuenden Schatten. Ausreichend Rasenfläche zum Spielen und Toben für Kinder ist ebenfalls vorhanden. Die Garage auf dem Grundstück rundet das Angebot ab.Ähnliche Angebote
So funktioniert es
- Alle neuen Anzeigen matchen wir kostenlos mit Deinen Suchparametern.
- Passende Angebote senden wir Dir in einer E-Mail pro Tag.
- Du kannst auch verschiedene Suchen anlegen und Dich jederzeit abmelden. Mehr dazu




