Kaufpreis 367.100 €
Zimmer 3
Größe 80 m²
15344 Strausberg
Objektdaten
Veröffentlicht am: 16. März 2026
Energieausweis: Liegt bei der Besichtigung vor
Danke! Bitte bestätige Deine E-Mail-Adresse – wir haben Dir soeben eine Mail geschickt.
Es gab ein Problem beim Absenden. Bitte versuche es erneut.
Bitte bestätige Deine E-Mail-Adresse, um Updates zu erhalten.
Objektbeschreibung
Objektbeschreibung
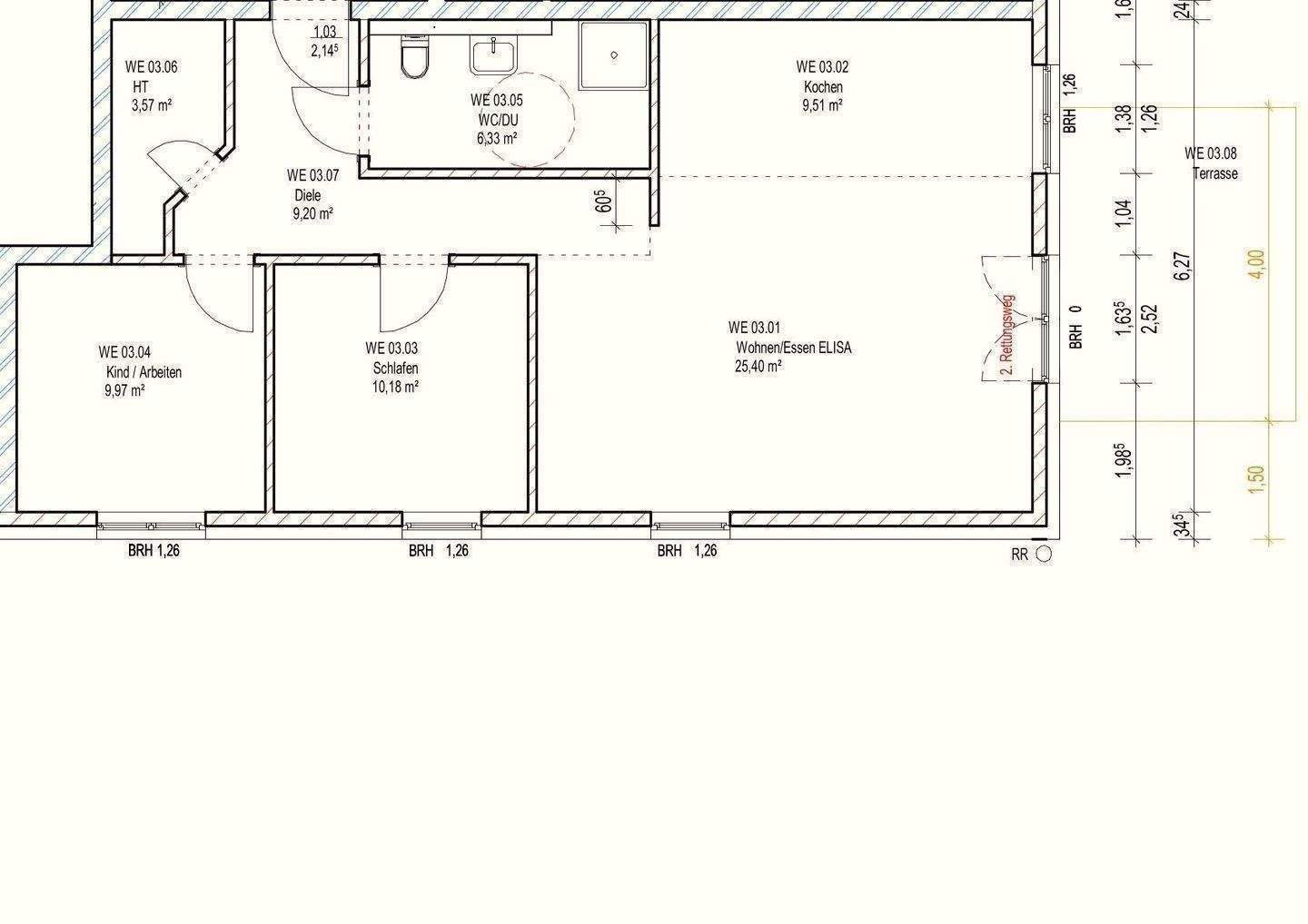
Willkommen in Ihrem neuen Zuhause. Diese helle 3-Zimmer-Wohnung im Erdgeschoss des Neubauprojekts Annabelle vereint moderne Architektur, hochwertige Ausstattung und ein nachhaltiges Energiekonzept. In einem eleganten, dreigeschossigen Mehrfamilienhaus, eingebettet in eine ruhige Einfamilienhausgegend nahe Annatal, profitieren Sie von großzügigen Wohnflächen, einer durchdachten Raumaufteilung und einem exklusiven Gartenanteil. Das Gebäude wird unter Berücksichtigung neuester Bau- und Energietechnologien errichtet und erfüllt Niedrigenergiestandard A. Dies bedeutet für Sie nicht nur geringe Energiekosten, sondern auch ein besonders angenehmes Raumklima. Die Fassadengestaltung ist eine morderne Kombination aus kräftigen Farben und Teilverklinkerung, die dem Haus ein ansprechendes und stilvolles Erscheinungsbild verleihen. Gemäß unserer Tradition wird auch Haus Annabelle eine sehr individuelle Fassadengestaltung in Kombination aus Mosaik und Malerei erhalten.
Raumaufteilung
Die Wohnung besticht durch ihre durchdachte Raumaufteilung. Der lichtdurchflutete Wohnraum mit offener Küche ist großzügig und schafft eine einladende Atmosphäre. Die Terrasse und der großzügige Gartenanteil bieten Ihnen die Möglichkeit entspannt draußen zu essen oder den Tag zu genießen.Das Badezimmer ist mit hochwertigen Fliesen ausgestattet. Die bodentiefe Dusche und die moderne Ausstattung sorgen für ein stilvolles Ambiente.
So funktioniert es
- Alle neuen Anzeigen matchen wir kostenlos mit Deinen Suchparametern.
- Passende Angebote senden wir Dir in einer E-Mail pro Tag.
- Du kannst auch verschiedene Suchen anlegen und Dich jederzeit abmelden. Mehr dazu
Wir haben soeben eine E-Mail mit Deinem Suchauftrag an Dich geschickt. – Klicke in dieser Mail auf den Bestätigungslink und schon geht's los. Prüfe ggf. auch Deinen Spamordner.
Es gab ein Problem beim Absenden Deiner E-Mail-Adresse. Bitte versuche es erneut.
WARNUNG: Bitte bestätige Deine E-Mail-Adresse, um regelmäßige Updates zu erhalten.