Objektdaten
Objektbeschreibung
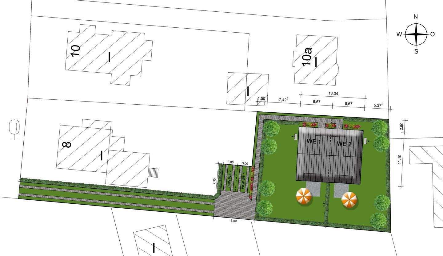
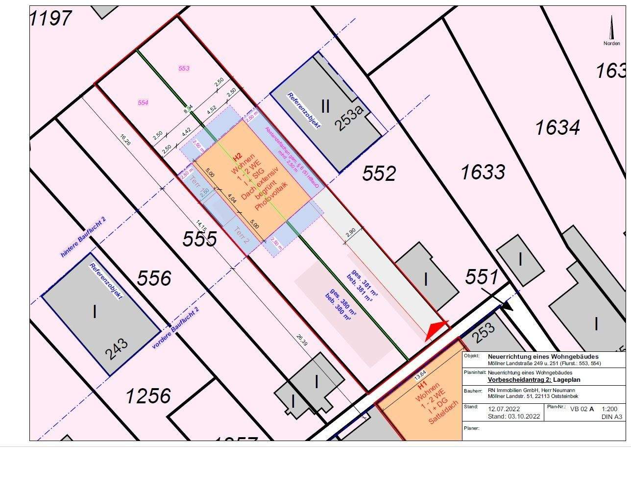
Bebaubarkeit und Nutzungsmöglichkeiten! Das ca. 1.180 m² große Grundstück ist gemäß dem Bebauungsplan BS Billstedt (siehe Anlage) bebaubar.Auf den vorderen Grundstücken befinden sich jeweils Reihenhäuser mit ca. 80 m² Wohnfläche pro Einheit. Die Bebauung der hinteren Grundstücke ist ebenfalls möglich und eröffnet somit zusätzliche Nutzungspotenziale.Für die Bebauung der hinteren Grundstücke wird empfohlen, einen Bauvorbescheid zu beantragen. Aufgrund der besonderen Möglichkeit, die vier Grundstücke sowie mindestens ein weiteres angrenzendes Grundstück zu erwerben, ergeben sich vielversprechende Chancen für eine weitergehende Bebauung.Infrastruktur und AnschlüsseDie Grundstücke verfügen über eigene Anschlüsse und sind bestens erschlossen. Zu den vorhandenen Versorgungsleitungen gehören:Internetanschluss (Glasfaser)WasserStromGasZentrale AbwasserentsorgungDie Grundstücke setzen sich aus vier Flurstücken zusammen. Zudem besteht die Möglichkeit, mindestens ein weiteres angrenzendes Grundstück zu erwerben, was zusätzliche Gestaltungsmöglichkeiten eröffnet.Ähnliche Angebote
So funktioniert es
- Alle neuen Anzeigen matchen wir kostenlos mit Deinen Suchparametern.
- Passende Angebote senden wir Dir in einer E-Mail pro Tag.
- Du kannst auch verschiedene Suchen anlegen und Dich jederzeit abmelden. Mehr dazu




