Kaufpreis 691.000 €
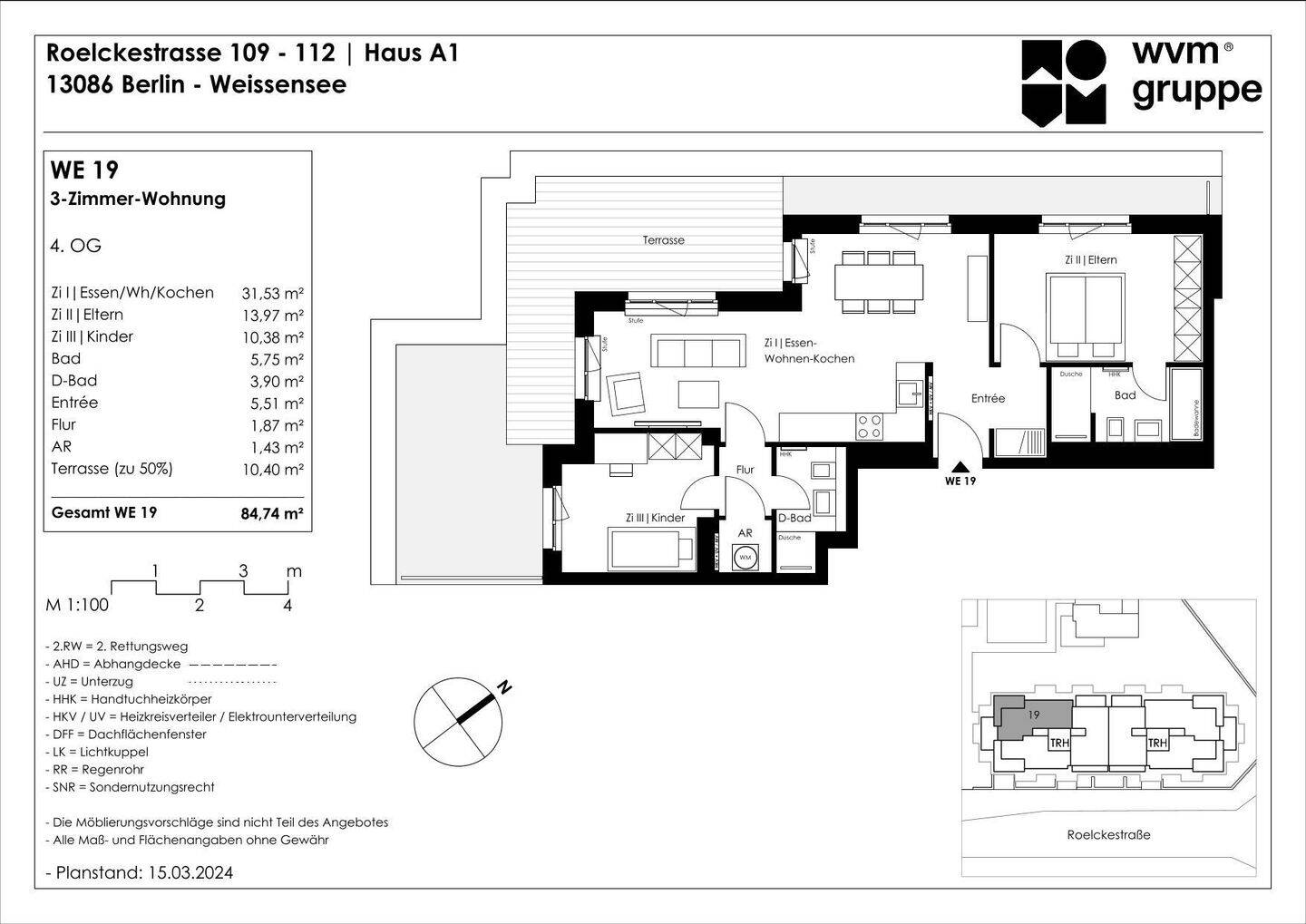
Zimmer 3
Größe 84 m²
13086 Berlin
Objektdaten
Veröffentlicht am: 16. März 2026
Energieausweis: Liegt bei der Besichtigung vor
Danke! Bitte bestätige Deine E-Mail-Adresse – wir haben Dir soeben eine Mail geschickt.
Es gab ein Problem beim Absenden. Bitte versuche es erneut.
Bitte bestätige Deine E-Mail-Adresse, um Updates zu erhalten.
Objektbeschreibung
In Berlin-Weißensee entsteht eine neue Wohnanlage, die bald zur Heimat all derer werden kann, die nach einem geschützten, grünen Kosmos suchen. Benannt nach dem Kunstgärtner Hermann Roelcke (1832-1896), erbt das Ensemble "Roelcke 111" nicht nur dessen Namen, sondern auch seine Vision: So verwandelt sich das Quartierszentrum in eine offene, grüne Anlage, deren Gärten fließend in den Innenhof übergehen, sodass ein großzügiger Kommunikations- und Begegnungsort unter Freunden, Familie und Nachbarn entstehen kann - ein Dorf-in-der-Stadt-Gefühl, aber größer, weiter und voller Lebendigkeit.Im westlichen Teil des Quartiershofes ist ein Spielplatz für Kleinkinder eingerichtet, auf dem sie miteinander spielen können. Um diese Begegnungsorte im Zentrum gruppieren sich vier Gebäude: ein Mehrfamilienhaus, das das Quartiersinnere von der Straße trennt, sowie zwei Stadtvillen, die als monolithische Inseln in der Grünanlage hervorstechen. Ein weiteres Gebäude ist in drei Townhouses unterteilt. Auch unterirdisch sind alle Häuser miteinander verbunden: Eine Tiefgarage mit 41 Stellplätzen erstreckt sich unter dem gesamten Quartier, sodass Ihr Townhouse schnell zu erreichen ist.
So funktioniert es
- Alle neuen Anzeigen matchen wir kostenlos mit Deinen Suchparametern.
- Passende Angebote senden wir Dir in einer E-Mail pro Tag.
- Du kannst auch verschiedene Suchen anlegen und Dich jederzeit abmelden. Mehr dazu
Wir haben soeben eine E-Mail mit Deinem Suchauftrag an Dich geschickt. – Klicke in dieser Mail auf den Bestätigungslink und schon geht's los. Prüfe ggf. auch Deinen Spamordner.
Es gab ein Problem beim Absenden Deiner E-Mail-Adresse. Bitte versuche es erneut.
WARNUNG: Bitte bestätige Deine E-Mail-Adresse, um regelmäßige Updates zu erhalten.