Objektdaten
Objektbeschreibung
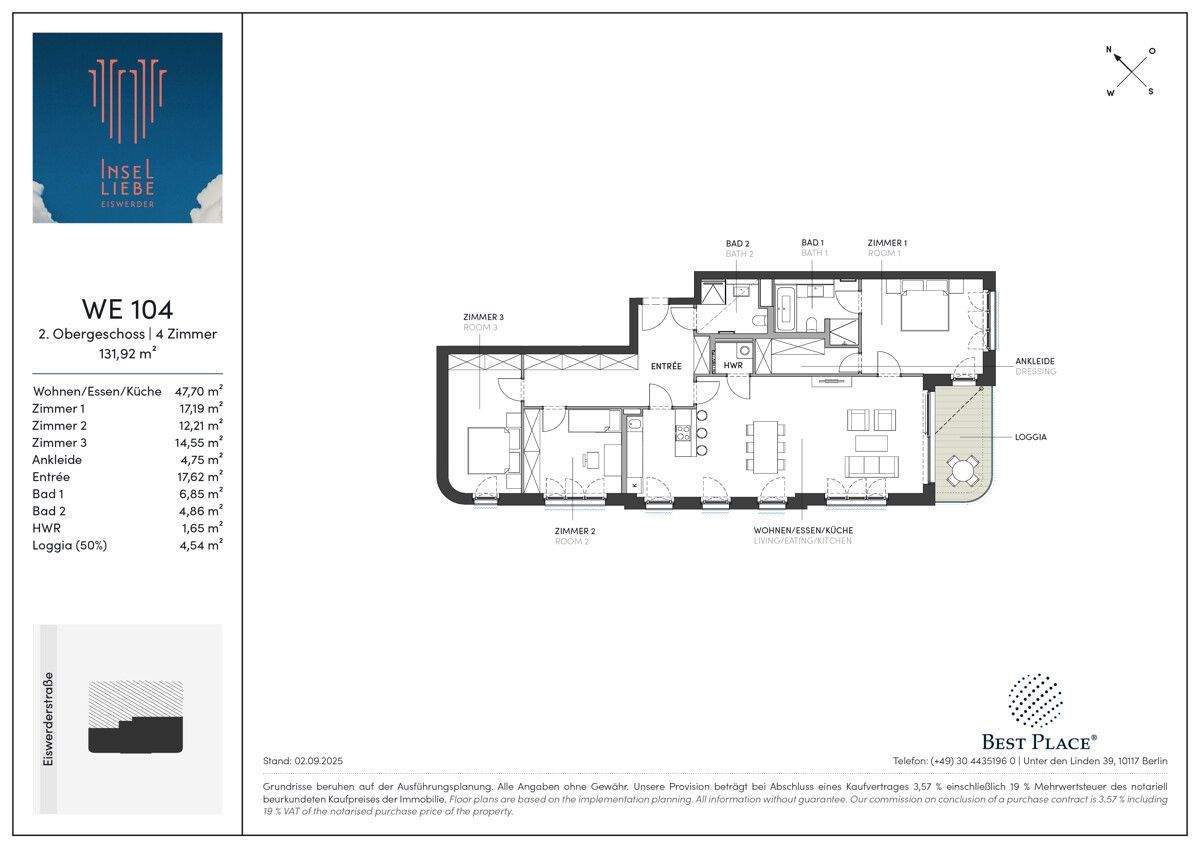
Willkommen in Ihrer Havel-Residenz!Diese sonnendurchflutete Neubau-Wohnung entsteht im Suntower direkt am Wasser: Ein fantastischer Havelblick und eine handverlesene Ausstattung machen sie zum perfekten Rückzugsort. Da auf jeder Etage nur zwei Wohnungen liegen, genießen Sie ein wunderbares Haus-im-Haus-Gefühl. Herzstück der Wohnung ist der offene, lichtdurchflutete Wohn-/Ess-/Kochbereich. Bodentiefe Panoramafenster lassen das Sonnenlicht herein und bieten einen spektakulären Ausblick über die Havel. Genießen Sie hier, auf Ihrem Logenplatz, das Sonnenlicht und das Spiel der Jahreszeiten. Durch eine Schiebetür gelangen Sie auf Ihre Süd-Loggia, auf der die Strahlen der Morgensonne Sie beim ersten Kaffee am Morgen begrüßen.Zugang zur Loggia bietet auch das Schlafzimmer mit Ankleide und en suite Wellness-Wannenbad. Sanitärausstattung namhafter Hersteller wie Hansgrohe und Villeroy & Boch sowie italienische Feinsteinzeugfliesen im Format 60 x 120 cm sorgen für Qualität und Eleganz. Über einen Flur sind das Duschbad und die beiden weiteren Zimmer erreichbar. Richten Sie hier ein gemütliches Gästezimmer und ein Homeoffice ein, das bei einem herrlichen Wasserblick Fokus und Produktivität ermöglicht. Hochwertiges Eichen-Echtholzparkett mit Fußbodenheizung sorgt in allen Wohnräumen für ein gemütliches Feeling. Ist diese Neubauwohnung etwas für Sie? Vereinbaren Sie noch heute einen Besichtigungstermin für Ihre Havel-Residenz. Gerne zeigen wir Ihnen die Wohnung auch kurzfristig oder am Wochenende.Ähnliche Angebote
So funktioniert es
- Alle neuen Anzeigen matchen wir kostenlos mit Deinen Suchparametern.
- Passende Angebote senden wir Dir in einer E-Mail pro Tag.
- Du kannst auch verschiedene Suchen anlegen und Dich jederzeit abmelden. Mehr dazu




