Kaufpreis 1.035.000 €
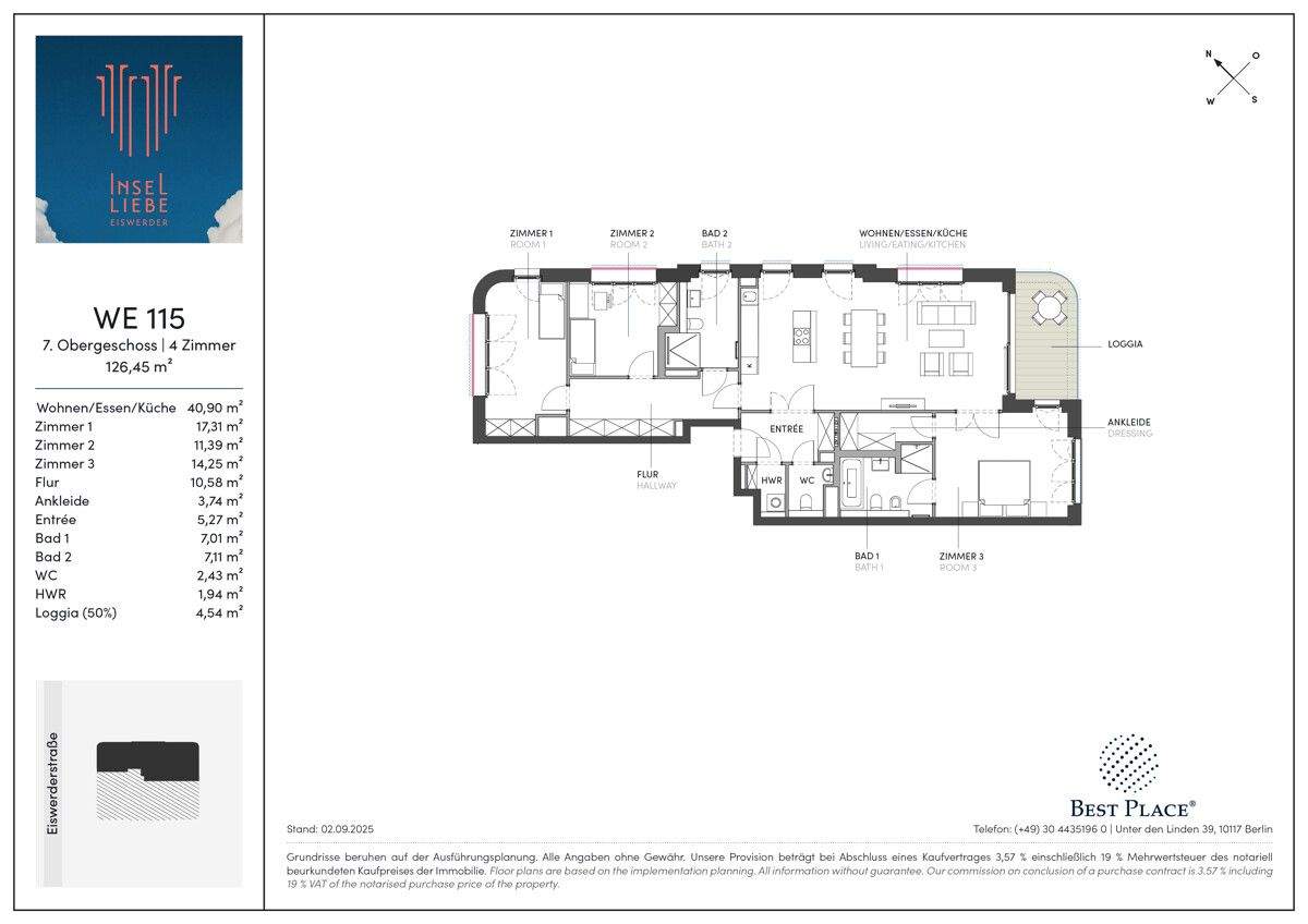
Zimmer 4
Größe 126 m²
13585 Berlin
Objektdaten
Veröffentlicht am: 16. März 2026
Baujahr: 2025
Energieausweis: Liegt bei der Besichtigung vor
Danke! Bitte bestätige Deine E-Mail-Adresse – wir haben Dir soeben eine Mail geschickt.
Es gab ein Problem beim Absenden. Bitte versuche es erneut.
Bitte bestätige Deine E-Mail-Adresse, um Updates zu erhalten.
Objektbeschreibung
Living in style: Mit einzigartigen water views, viel natürlichem Licht und ausgewählten Materialien wird diese Neubau-Wohnung zum perfekten Rückzugsort, der gemütlich und repräsentativ gleichermaßen ist. Herzstück der Wohnung ist der offene, lichtdurchflutete Wohn-/Ess-/Kochbereich mit Kücheninsel: Panoramafenster lassen das Sonnenlicht herein und bieten einen spektakulären Ausblick auf Berlin und die Havel. Lassen Sie sich beim ersten Kaffee am Morgen von den Sonnenstrahlen begrüßen und lassen Sie den Abend bei einem Glas Wein ausklingen. Schiebetüren verbinden den Wohnbereich mit der Loggia in Südost-Ausrichtung, Ihre persönliche Sunrise Lounge. Öffnen Sie den Schiebetüren, für einen wunderbaren Inside-Outside-Vibe.Die Kücheninsel mit Kochfunktion garantiert Komfort und Eleganz beim Kochen und Genießen und die richtige Kulisse für schöne Stunden für Sie und Ihre Gäste. Vor der kitchen area findet eine gemütliche Lounge-Ecke mit Home-Entertainment-System Platz. Hochwertiges Echtholz-Parkett mit Fußbodenheizung sorgt das ganze Jahr über für ein gemütliches Gefühl in den Wohnräumen. Das Schlafzimmer, ebenfalls mit Zugang zur Loggia, wird zu Ihrer Ruheoase. Dank en suite Wannenbad und Ankleide sorgen für gehobenen Komfort von morgens bis abends. Der ideale Ort, um Ihre Akkus aufzuladen, um am nächsten Tag neu durchzustarten. Über einen Flur sind das zweite Bad und die beiden anderen Zimmer erreichbar - ideal als Arbeits- und Gästezimmer nutzbar. Die Bäder sind mit Rainshower Dusche und Handtuchheizkörper ausgestattet. Hochwertige Markenfabrikate, darunter von Geberit und Hansgrohe, verbinden Langlebigkeit mit Eleganz. Die Wand- und Bodenfliesen aus Feinsteinzeug in edlem Hellgrau, Format 60x120 cm, sorgen für einen edlen Look. Ist das etwas für Sie? Melden Sie sich und vereinbaren Sie noch heute einen Besichtigungstermin für diese sonnige Neubau-Wohnung.
So funktioniert es
- Alle neuen Anzeigen matchen wir kostenlos mit Deinen Suchparametern.
- Passende Angebote senden wir Dir in einer E-Mail pro Tag.
- Du kannst auch verschiedene Suchen anlegen und Dich jederzeit abmelden. Mehr dazu
Wir haben soeben eine E-Mail mit Deinem Suchauftrag an Dich geschickt. – Klicke in dieser Mail auf den Bestätigungslink und schon geht's los. Prüfe ggf. auch Deinen Spamordner.
Es gab ein Problem beim Absenden Deiner E-Mail-Adresse. Bitte versuche es erneut.
WARNUNG: Bitte bestätige Deine E-Mail-Adresse, um regelmäßige Updates zu erhalten.