Kaufpreis 1.550.000 €
Zimmer 14
Größe 530 m²
53604 Bad Honnef
Objektdaten
Veröffentlicht am: 17. März 2026
Energieausweis: Liegt bei der Besichtigung vor
Danke! Bitte bestätige Deine E-Mail-Adresse – wir haben Dir soeben eine Mail geschickt.
Es gab ein Problem beim Absenden. Bitte versuche es erneut.
Bitte bestätige Deine E-Mail-Adresse, um Updates zu erhalten.
Objektbeschreibung
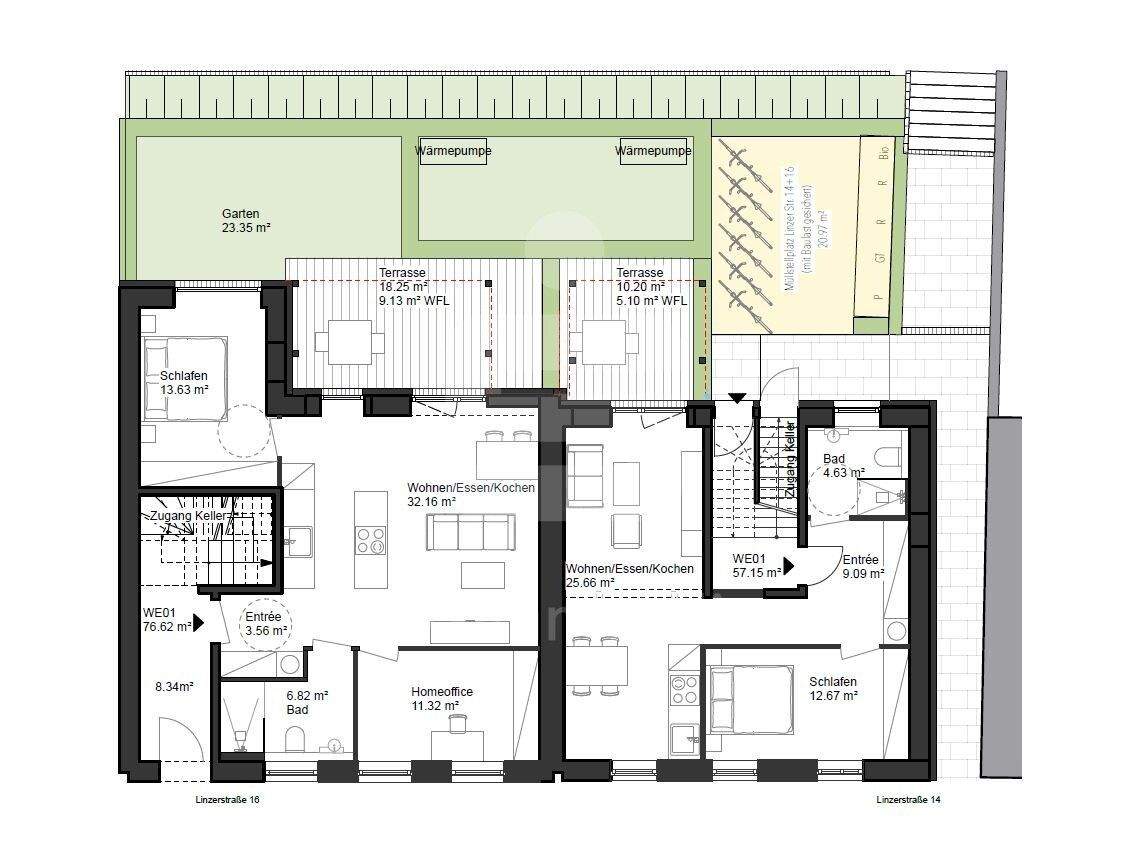
Sie sind auf der Suche nach einem nachhaltigen Investment?In Bad Honnef auf der Linzer Strasse 16 können Sie jetzt fündig werden! Hier entsteht ein Mehrfamilienhaus in begehrter Bad Honnefer Wohnlage. Wir bieten Ihnen ein saniertes Altbaumehrfamilienhaus. Das Objekt verfügt über eine Gesamtwohnfläche von 290,15 m², die sich auf 4 Wohneinheiten verteilen. Bei den Einheiten handelt es sich um 2- bis 3-Zimmerwohnungen, die alle mit einem Balkon oder einer Terrasse ausgestattet sind.Eine steuerliche Abschreibung nach § 7h EStG ist möglich. Die Höhe der steuerlichen Abschreibungen nach § 7 h EStG werden auf ca. 80 % der Herstellungskosten geschätzt! Die Abschreibungsdauer verteilt sich auf insgesamt 12 Jahre und beträgt in den ersten 8 Jahren jeweils 9% der Herstellungskosten und in den folgenden 4 Jahren jeweils 7% der Herstellungskosten. Hinzu kommen die normale Afa in Höhe von 2,5 % bei einem Baujahr vor 1925.Die steuerliche Abschreibung im ersten Jahr beläuft sich auf ca. EUR 122.000,-. Insgesamt beläuft sich die steuerliche Abschreibungssumme in den ersten 12 Jahren auf ca. EUR 1.356.000,-.Die Herleitung der steuerlichen Abschreibung stellen wir Ihnen und Ihrem Steuerberater gerne zur Prüfung zur Verfügung.Es besteht die Möglichkeit, neben dem angebotenen Objekt zusätzlich das Nachbarhaus zu erwerben.Die Immobilie wurde im KfW-85 Standard - Programm 461 geplant und wird voraussichtlich bis Frühjahr 2027 fertiggestellt.Profitieren Sie nun von einer hochspannenden steuerlichen Begünstigung im Rahmen des § 7h EStG, einer nachhaltigen Bauweise und sichern Sie sich dieses hochwertige Immobilienarrangement in bester Lage von Bad Honnef.
So funktioniert es
- Alle neuen Anzeigen matchen wir kostenlos mit Deinen Suchparametern.
- Passende Angebote senden wir Dir in einer E-Mail pro Tag.
- Du kannst auch verschiedene Suchen anlegen und Dich jederzeit abmelden. Mehr dazu
Wir haben soeben eine E-Mail mit Deinem Suchauftrag an Dich geschickt. – Klicke in dieser Mail auf den Bestätigungslink und schon geht's los. Prüfe ggf. auch Deinen Spamordner.
Es gab ein Problem beim Absenden Deiner E-Mail-Adresse. Bitte versuche es erneut.
WARNUNG: Bitte bestätige Deine E-Mail-Adresse, um regelmäßige Updates zu erhalten.