Objektdaten
Objektbeschreibung
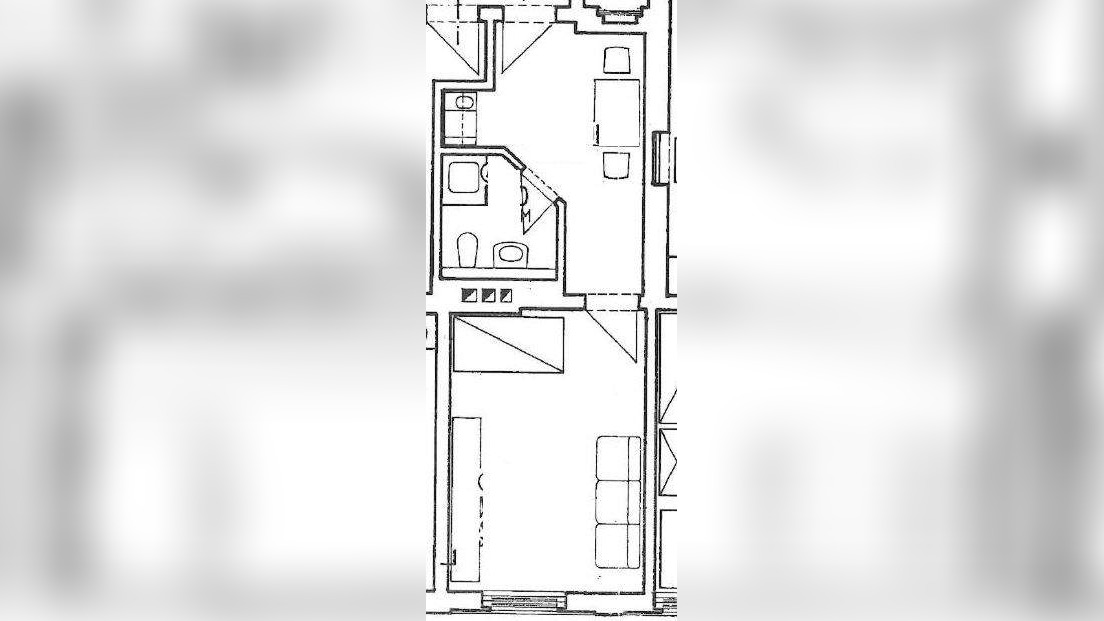
Zum Verkauf steht ein erstklassiges 1 Zimmer Apartment mit ca. 34,69 m² gepflegter Wohnfläche im 1. Obergeschoss.Das Apartment verfügt über einen Eingangsbereich, eine Küche, ein Badezimmer sowie ein Wohn-/Schlafzimmer.Die Wohnung ist seit Februar 2025 vermietet. Die Nettoklatmiete im Monat beträgt derzeit 306,80 EUR. Die Wohnung befindet sich in einer einzigartigen und stillvollen Gründerzeit-Villa ca. aus dem Jahr 1902. Die Villa steht unter Denkmalschutz.Sie wurde damals als herrschaftliche Fabrikantenvilla errichtet und ca. im Jahr 2006 aufgeteilt.In der gesamten Villa sowie in den einzelnen Wohneinheiten hat man versucht, eine Vielzahl an Details im Originalzustand zu erhalten. Vor allem das parkähnliche Grundstück ist ein absolutes Highlight. Insgesamt befinden sich die Villa und die Wohneinheiten in einem sehr gepflegten Gesamtzustand. Laut Protokollen wird über eine Renovierung der Fassade und Teile des Daches nachgedacht. Auf dem Grundstück befinden sich zusätzlich noch ein Doppelhaus sowie eine geschlossene Garage, welche bereits verkauft wurden.Haben Sie Interesse? Dann senden Sie die Objekt-Id 54997-4 per WhatsApp oder Signal an 01525 681 3907, per Telegram an VonoviaVerkauf oder per Threema an *VONOVIA.Details zur Datenverarbeitung bei Vonovia finden SIe unter www.vonovia.de/datenschutz.Ähnliche Angebote
So funktioniert es
- Alle neuen Anzeigen matchen wir kostenlos mit Deinen Suchparametern.
- Passende Angebote senden wir Dir in einer E-Mail pro Tag.
- Du kannst auch verschiedene Suchen anlegen und Dich jederzeit abmelden. Mehr dazu




