Kaufpreis 1.420.000 €
Zimmer 3
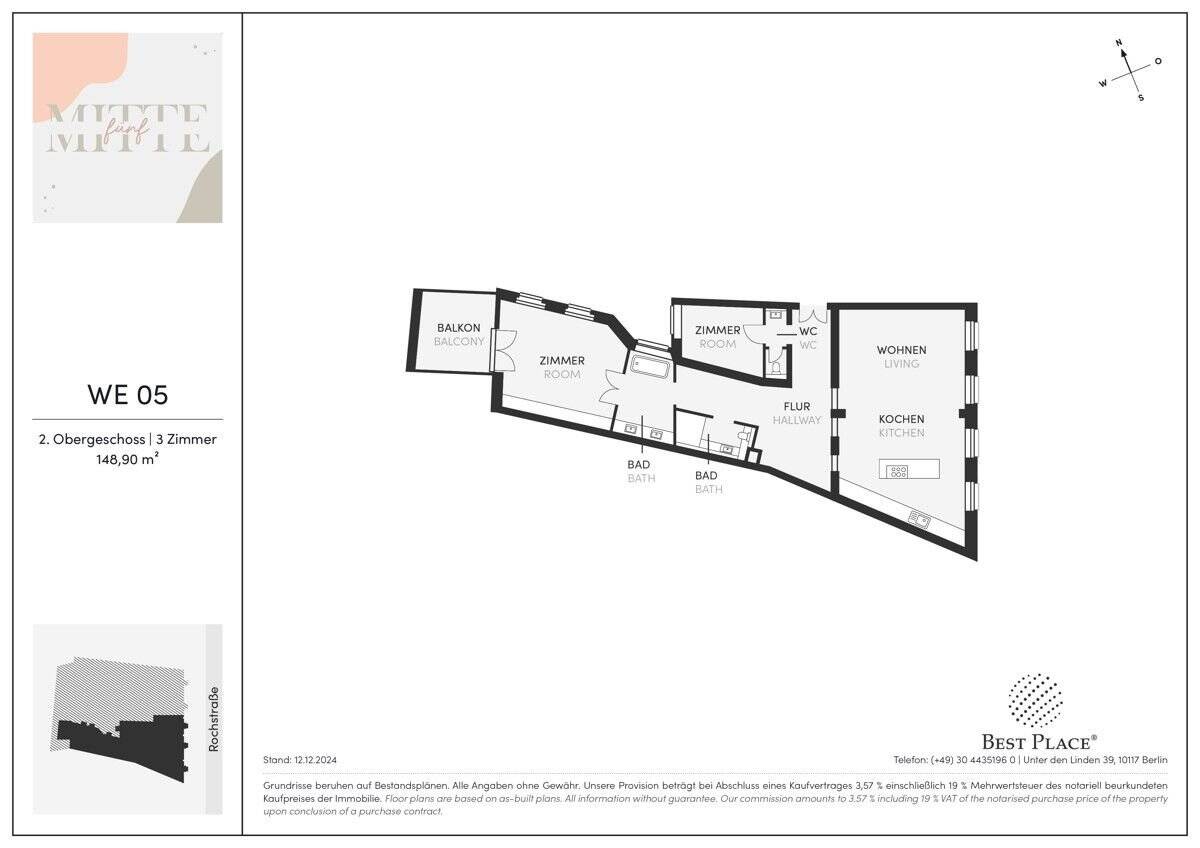
Größe 148 m²
10178 Berlin
Objektdaten
Veröffentlicht am: 17. März 2026
Baujahr: 1922
Energieausweis: Liegt bei der Besichtigung vor
Danke! Bitte bestätige Deine E-Mail-Adresse – wir haben Dir soeben eine Mail geschickt.
Es gab ein Problem beim Absenden. Bitte versuche es erneut.
Bitte bestätige Deine E-Mail-Adresse, um Updates zu erhalten.
Objektbeschreibung
Gründerzeit-Charme trifft clean chic: Eine liebevolle Sanierung mit Blick fürs Detail, erlesene Materialien und Weltklasse-Design machen diese 3-Zimmer-Wohnung zu Ihrer idealen Residenz mitten in der City. Herzstück der Wohnung ist das sonnige Wohnzimmer mit Küche: Mit rund 57 m² bietet es viel Raum für einen großen Essbereich, eine Sitzecke, Bücherregale bis zur Decke oder was immer Sie sich in Ihrem Zuhause wünschen. Im Küchenbereich sorgen eine Kücheninsel mit Kochplatten und ein kleiner Abstellraum für Komfort beim Kochen und Genießen, während die hochwertige Einbauküche in Marmoroptik jedes einfache Gericht zu einem Event macht. Die wunderbar hohen Decken und raffinierten Beleuchtung schaffen ein Gefühl von Weite und gleichzeitig ein gemütliches Feeling. Kommen Sie hier jeden Abend zur Ruhe oder empfangen Sie Gäste für rauschende Feiern. Von der Wohnküche lässt sich bei Bedarf ein Arbeitszimmer abtrennen.Das elegante Duschbad verfügt über eine bodengleiche Rainshower-Dusche und hochwertige Armaturen in cleanem Design. Im direkt angrenzenden Vorraum des Badezimmers erwartet Sie eine elegante freistehende Badewanne - Luxus pur. Ein begehbarer Kleiderschrank bietet viel Raum für alle Ihre Schätze.Durch eine moderne Flügeltür betreten Sie Ihr hofseitiges Zimmer, in dem Sie zum Beispiel Ihr privates Wohnzimmer einrichten können. Es bietet Zugang zu Ihrem großen, hofseitigen Balkon, auf dem Sie auch bei heißen Temperaturen erfrischende Kühle genießen. Er bietet genügend Platz für Pflanzen, eine elegante Sitzecke und stimmungsvolle Beleuchtung. Richten Sie hier Ihre persönliche Freiluft-Oase ein, auf der Sie einen Cocktail in einer lauen Sommernacht oder einen Kaffee bei den ersten Sonnenstrahlen des Tages genießen können.
So funktioniert es
- Alle neuen Anzeigen matchen wir kostenlos mit Deinen Suchparametern.
- Passende Angebote senden wir Dir in einer E-Mail pro Tag.
- Du kannst auch verschiedene Suchen anlegen und Dich jederzeit abmelden. Mehr dazu
Wir haben soeben eine E-Mail mit Deinem Suchauftrag an Dich geschickt. – Klicke in dieser Mail auf den Bestätigungslink und schon geht's los. Prüfe ggf. auch Deinen Spamordner.
Es gab ein Problem beim Absenden Deiner E-Mail-Adresse. Bitte versuche es erneut.
WARNUNG: Bitte bestätige Deine E-Mail-Adresse, um regelmäßige Updates zu erhalten.