Objektdaten
Objektbeschreibung
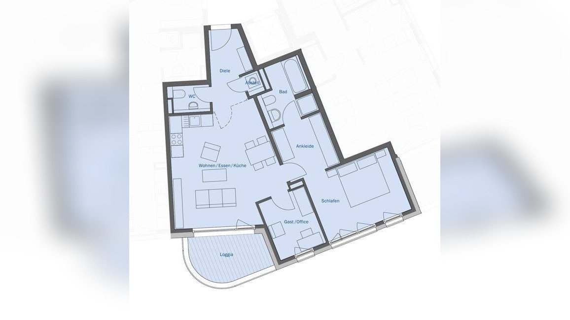
Zum Verkauf steht eine hochwertige 3-Zimmer-Wohnung in Frankfurt Riedberg. Wohnung und Gebäude wurde im Jahr 2023 errichtet und befinden sich in einem erstklassigen Zustand, da es sich um einen Erstbezug handelt. Der großzügig geschnittene Grundriss besticht vor allem durch eine rund 7 m² große Ankleide, die direkt vom Schlafzimmer aus begehbar ist. Daran schließt sich das nächste Highlight der Wohnung an - das En-Suite-Bad mit Dusche und Badewanne. Neben dem rund 30 m² großen Wohn/Ess/Koch-Bereich besticht die Wohnung durch weitere praktische Details wie Gäste-/Arbeitszimmer, Gäste-WC sowie einem in der Wohnung befindlichen Abstellraum.Der Energiestandard des Gebäudes entspricht einem Niedrigenergiehaus nach KfW40-Standard, was zu einer hohen Energieeffizienz bei gleichzeitig niedrigen Energiekosten führt. Die Ausstattungsqualität ist gehoben und erfüllt höchste Ansprüche an Komfort und Ästhetik.Die Wohnung ist kurzfristig verfügbar. Sie haben hier die Möglichkeit, bereits in wenigen Wochen in eine moderne und hochwertige Immobilie mit exzellenter Ausstattung zu ziehen. Zögern Sie nicht und vereinbaren Sie noch heute einen Besichtigungstermin, um sich von den Vorteilen dieser tollen Wohnung zu überzeugen.Ähnliche Angebote
So funktioniert es
- Alle neuen Anzeigen matchen wir kostenlos mit Deinen Suchparametern.
- Passende Angebote senden wir Dir in einer E-Mail pro Tag.
- Du kannst auch verschiedene Suchen anlegen und Dich jederzeit abmelden. Mehr dazu




