Objektdaten
Objektbeschreibung
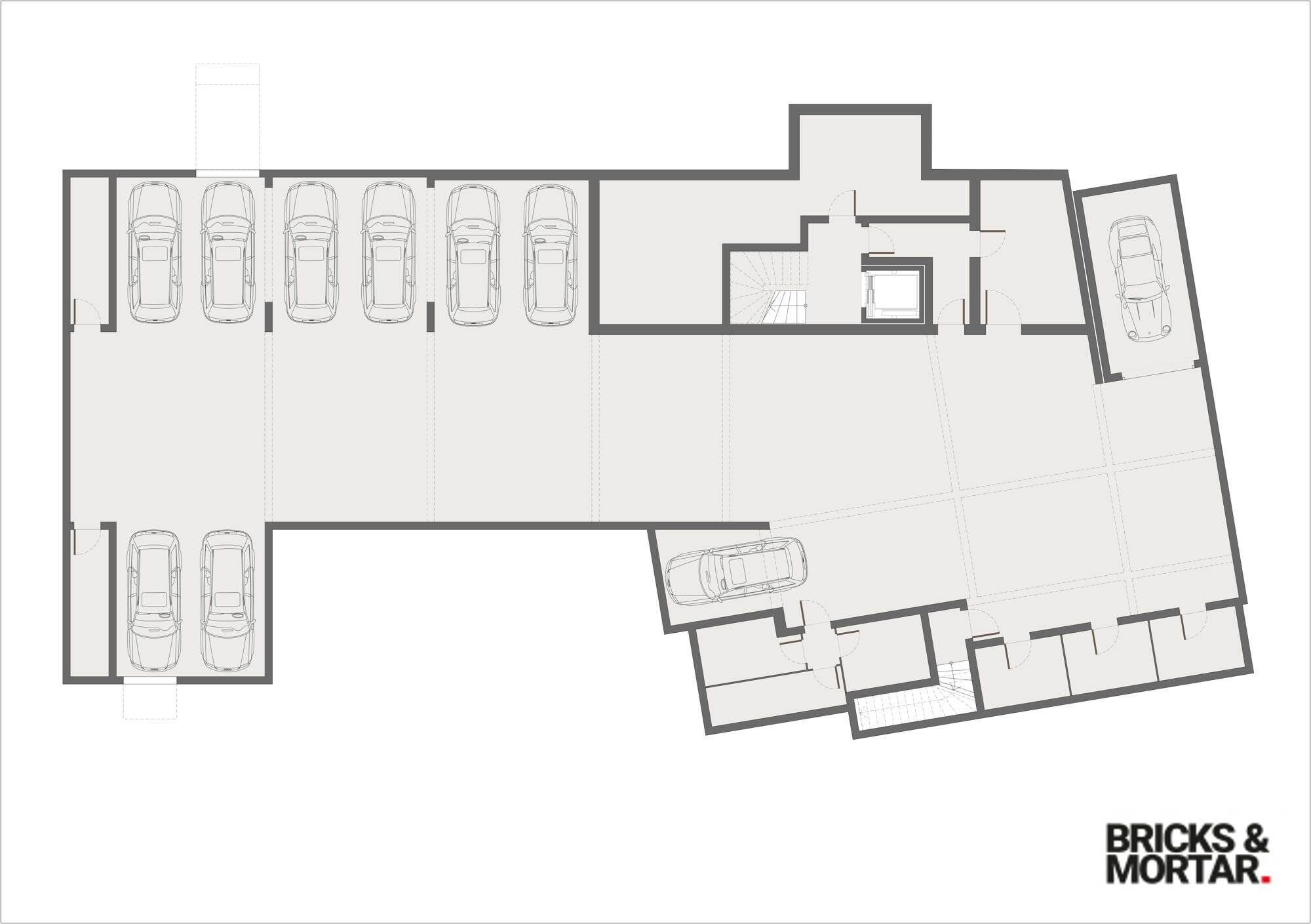
Im begehrten Stadtbezirk Jakobervorstadt realisieren wir insgesamt 8 hochwertige und großzügige Wohnungen mit sonnenverwöhnten und Richtung Süden ausgerichtete Gärten, Terrassen und Balkone. Dank großflächiger, bodentiefer Fensterelemente entstehen lichtdurchflutete Wohn- und Essbereiche. Die hochwertige Ausstattung in Form von edlen Parkettböden, formschönen Türen, zeitlosen Armaturen sowie zeitgemäßen Details verleihen den Wohnungen ihren außergewöhnlichen Wohnkomfort.Holen Sie sich nähere Informationen und fordern Sie unser Expose an.Ähnliche Angebote
So funktioniert es
- Alle neuen Anzeigen matchen wir kostenlos mit Deinen Suchparametern.
- Passende Angebote senden wir Dir in einer E-Mail pro Tag.
- Du kannst auch verschiedene Suchen anlegen und Dich jederzeit abmelden. Mehr dazu




