Objektdaten
Objektbeschreibung
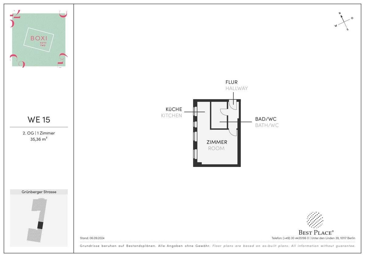
Das sechsstöckige Gründerzeitgebäude Boxi52 wurde 1906 erbaut. In einem gewachsenen Kiez gelegen, reiht es sich harmonisch in die Gründerzeitbebauung seiner Umgebung ein. Im Vorderhaus, Seitenflügel und Hinterhaus befinden sich 31 Wohnungen und zwei Gewerbeeinheiten. Die Gewerbeeinheiten mit ca. 31 und 135 m² liegen straßenseitig im Erdgeschoss und werden gastronomisch genutzt. Mit einem bis vier Zimmern und ca. 35 bis 112 m² entsprechen die Wohnungen den Bedürfnissen von Singles, Paaren und Familien. Die Wohnungen werden über Treppenhäuser erschlossen. Dank der effizienten Grundrisse ihrer Bauzeit verfügen sie über ausgewogene Zimmergrößen. Ein Großteil der Wohnungen hat einen Balkon, der den Bewohnern Erholung an der frischen Luft garantiert. Die Badezimmer sind größtenteils Tageslichtbäder. Mit einer Gründerzeitwohnung im Projekt Boxi52 erwerben Sie ein solides Investment in einem Kiez, in dem Neu-Berliner und Einheimische gleichermaßen wohnen möchten - nutzen Sie die Chance.Ähnliche Angebote
So funktioniert es
- Alle neuen Anzeigen matchen wir kostenlos mit Deinen Suchparametern.
- Passende Angebote senden wir Dir in einer E-Mail pro Tag.
- Du kannst auch verschiedene Suchen anlegen und Dich jederzeit abmelden. Mehr dazu




