Objektdaten
Objektbeschreibung
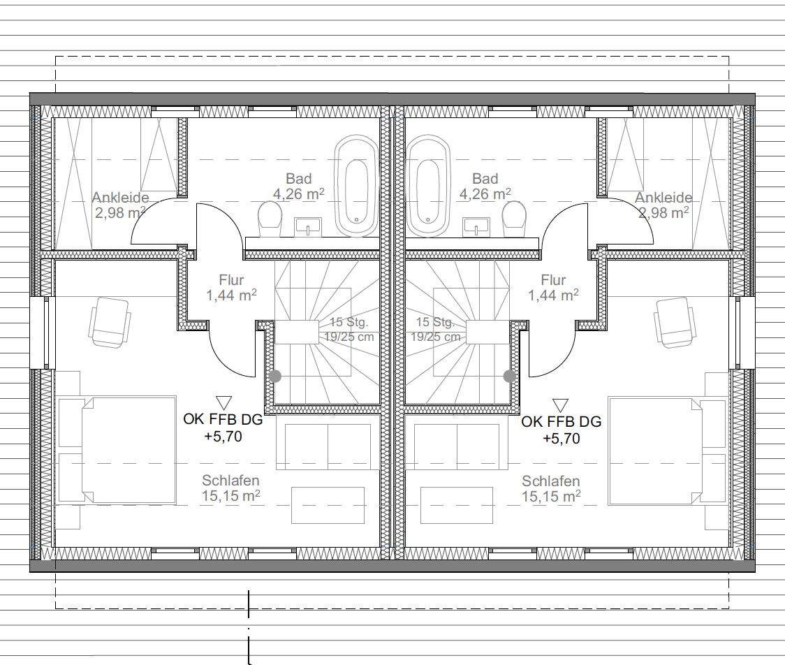
Das schöne Baugrundstück mit 405 m² befindet sich in guter nördlicher Ortslage in der Gemeinde Ramerberg im Ortsteil Reitberg.Das Baurecht für dieses Grundstück richtet sich nach §34 BauGB (Nachbarbebauung). Eine gültige Baugenehmigung liegt vor. Das Grundstück ist frei und erschlossen..Eine Baugenehmigung für ein Doppelhaus (2 Doppelhaushälften) liegt vor:- Grundrisse und Pläne liegen zur Einsicht vor.- Doppelhaus mit ca. 220 m² Wohnfläche (ca. 110m² je Doppelhaushälfte bei Bau auf Bodenplatte)- Ein Werkvertrag mit einem renomierten Hersteller für Holzständerbauweise kann übernommen werden ( 355t€ pro Doppelhaushälfte für ein KfW 40+- Haus, auf Bodenplatte inkl. Ausbau DG)Gerne können Sie uns kontaktieren, wenn Sie weitere Informationen benötigen.So funktioniert es
- Alle neuen Anzeigen matchen wir kostenlos mit Deinen Suchparametern.
- Passende Angebote senden wir Dir in einer E-Mail pro Tag.
- Du kannst auch verschiedene Suchen anlegen und Dich jederzeit abmelden. Mehr dazu




