Objektdaten
Objektbeschreibung
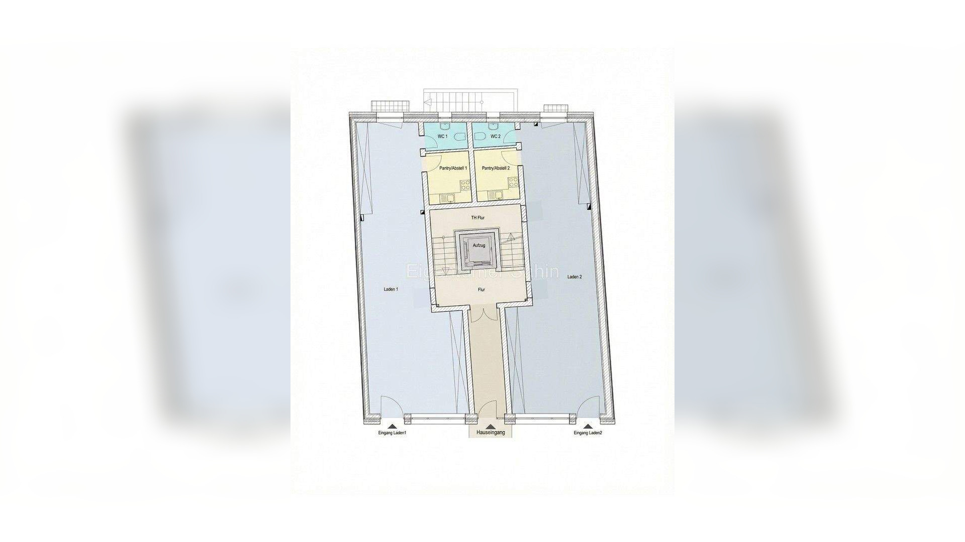
Attraktive Kapitalanlage in zentraler Innenstadtlage von Hamburg-Harburg: Modernes Wohn- und Geschäftshaus (Baujahr 2016, Massivbau) mit 7 Nutzungseinheiten auf ca. 615 m² vermietbarer Fläche. Zwei Gewerbeeinheiten im Erdgeschoss sind langfristig vermietet (IST-Mieteinnahmen: 41.755 € p.a.). Fünf hochwertig ausgestattete Wohneinheiten werden leer übergeben - der Käufer kann diese sofort zu aktuellen Marktkonditionen vermieten, ohne bestehende Mietvertragsbindungen.Nutzungseinheiten im Detail . Erdgeschoss: Zwei vermietete Ladeneinheiten (ca. 59 m² + 58 m²), umsatzsteuerpflichtig vermietet, IST-Mieteinnahmen: 41.755 € p.a. . 1.-3. Obergeschoss: Drei großzügige 4-Zimmer-Wohnungen mit je ca. 127 m², Balkon, Fußbodenheizung, Einbauküche und Gäste-WC (leer bei Übergabe). . Staffelgeschoss: Zwei moderne 2-Zimmer-Wohnungen (ca. 58 m² und 59 m²) mit eigener Dachterrasse (leer bei Übergabe). . Kellergeschoss: Voll unterkellert mit ca. 135 m² Nutzfläche (Abstellräume, Heizungsraum, Technikraum). . Verkauf: Provisionsfrei direkt vom Eigentümer - Makleranfragen ausdrücklich nicht erwünscht.Ähnliche Angebote
So funktioniert es
- Alle neuen Anzeigen matchen wir kostenlos mit Deinen Suchparametern.
- Passende Angebote senden wir Dir in einer E-Mail pro Tag.
- Du kannst auch verschiedene Suchen anlegen und Dich jederzeit abmelden. Mehr dazu




