Objektdaten
Objektbeschreibung
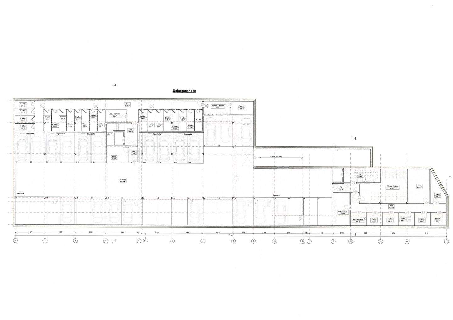
Modernes Wohnen in altersgerechter Ausführung im verkehrsberuhigten Innenbereich in Trier-Kürenz. Achtung Vermieter: Hohe Steuervorteile durch neue degressive Abschreibung sichern !Moderne Eigentumswohnungen in altengerechter Ausführung im Energiesparhaus in Trier-Kürenz im verkehrsberuhigten Innenbereich .In attraktiver Lage von Trier-Kürenz entstehen neue Eigentumswohnungen in altersgerech Ausführung mit moderner Technik (KfW 55 Standard Erneuerbare Energien ), Aufzug und guter Ausstattung.In dieser exponierten Lage entstehen attraktive Eigentumswohnungen von ca. 68 bis ca. 130 m² mit moderner Technik in altersgerechter Ausführung. Es sind eine moderne Luftwärmepumpe, Fußbodenheizung, elektrische Rollläden, Aufzug, schöne Fliesen sowie attraktive Parkettböden vorgesehen. Sie können hier noch Ihre persönliche Note einbringen.Die Errichtung erfolgt unter Berücksichtigung moderner Energiestandards (KFW-Effizienzhaus 55 Erneuerrbare Energien) sowie einer guten Ausstattung. Die Kombination von moderner Technik und hochwertiger Isolierung führt zu sehr günstigen Heizkosten bzw. Nebenkosten.Alle Wohnungen verfügen über schöne Balkone, Terrassen oder Dachterrassen.Das Angebot bezieht sich auf die Wohnung Nr. 1 - Gebäude B im ErdgeschoßDie Wohnung besteht aus dem hellen Wohn/Essbereich von ca. 38 m² mit integrierter Küche. und Zugang auf die sonnige Terrasse von ca. 9 m². Auf Wunsch kann die Küche offen oder geschlossen gestaltet werden. An den Wohnbereich ist der separate Schlaftrakt angegliedert. Dieser besteht aus dem Elternschlafzimmer von ca. 15 m² mit Ausgang auf die zweite Terrasse von ca.4 dem Abstellraum/Büro/Ankleide von ca. 6 m², einem geräumigen Kinderzimmer/Büro von ca. 13 m² sowie dem behindertengerechten Duschbad mit Fenster von ca. 8 m². Die gesamte Wohnfläche beträgt ca. 102 m². Die Wohnung wurde barrierefrei konzipiert. Jeder Wohnung ist ein Abstell/Kellerraum im Untergeschoß zugeordnet.Gleichermaßen befinden sich im Kellergeschoß die Tiefgarage sowie der geräumige FahrradbereichEs besteht die Möglichkeit Tiefgaragenstellplätze ab 27.000 EUR oder Doppelparker für 20.000 EUR zu erwerben.Der Rohbau ist fertiggestellt und der Innenausbau im Gange. Die Bezugsfertigkeit ist für Sommer 2026 geplant. Steuerlicher Hinweis für Investoren : Die Wohnungen können bei einem Erwerb bis zum Jahr der Fertigstellung und einer Vermietung entsprechend den im Wachstumschanchengesetz aktuell beschlossenen Änderungen der degressiven Abschreibung nunmehr mit jährlich 5 %- bezogen auf den jeweiligen Buchwert/Restwert - abgeschrieben werden. Hierdurch können hohe Steuervorteile erzielt werden. Wir übernehmen keine steuerliche Beratung und keine Haftung für steuerliche Ziele. Hierzu informiert Sie Ihr Steuerberater umfassend.Ähnliche Angebote
So funktioniert es
- Alle neuen Anzeigen matchen wir kostenlos mit Deinen Suchparametern.
- Passende Angebote senden wir Dir in einer E-Mail pro Tag.
- Du kannst auch verschiedene Suchen anlegen und Dich jederzeit abmelden. Mehr dazu




