Kaufpreis 349.000 €
Zimmer 2
Größe 67 m²
54295 Trier
Objektdaten
Veröffentlicht am: 17. März 2026
Baujahr: 2024
Energieausweis: Liegt bei der Besichtigung vor
Danke! Bitte bestätige Deine E-Mail-Adresse – wir haben Dir soeben eine Mail geschickt.
Es gab ein Problem beim Absenden. Bitte versuche es erneut.
Bitte bestätige Deine E-Mail-Adresse, um Updates zu erhalten.
Objektbeschreibung
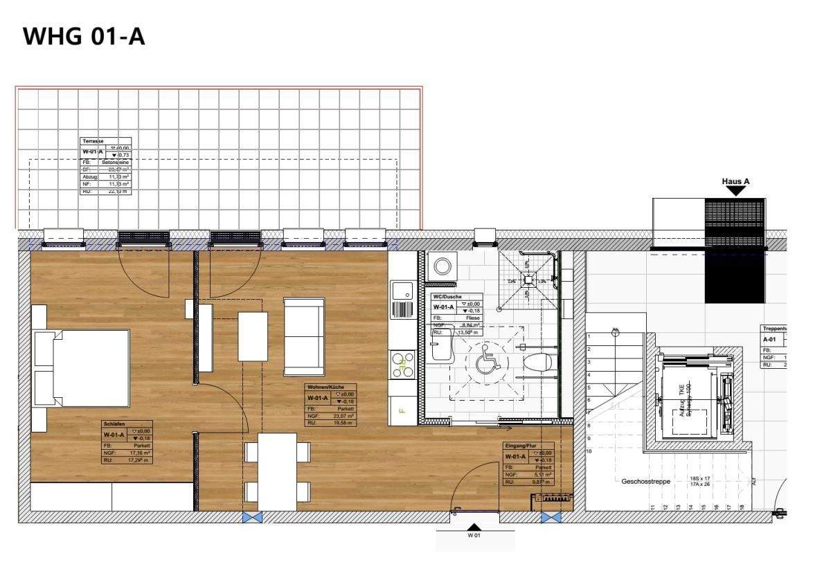
Modernes Wohnen in altersgerechter Ausführung im verkehrsberuhigten Innenbereich in Trier-Kürenz. Achtung Vermieter: Hohe Steuervorteile durch neue degressive Gebäudeabschreibung sichern ! In attraktiver Lage von Trier-Kürenz entstehen neue Eigentumswohnungen in altersgerech Ausführung mit moderner Technik (KfW 55 Standard Erneuerbare Energien), Aufzug und guter Ausstattung von ca. 67 bis ca. 130 m² mit moderner Technik in altersgerechter Ausführung. Es sind eine moderne Luftwärmepumpe, Fußbodenheizung, elektrische Rollläden, Aufzug, schöne Fliesen sowie attraktive Parkettböden vorgesehen. Sie können hier noch Ihre persönliche Note einbringen. Die Errichtung erfolgt unter Berücksichtigung moderner Energiestandards (KFW-Effizienzhaus 55) sowie einer guten Ausstattung. Die Kombination von moderner Technik und hochwertiger Isolierung führt zu sehr günstigen Heizkosten bzw. Nebenkosten. Alle Wohnungen verfügen über schöne Balkone, Terrassen oder Dachterrassen.Das Angebot bezieht sich auf die Wohnung Nr. 1 - Gebäude A im ErdgeschossDie Wohnung besteht aus dem hellen Wohn/Essbereich von ca. 24 m² mit integrierter Küche. und Zugang auf die große Terrasse von ca. 23 m². An den Wohnbereich ist das Schlafzimmer von ca. 17 m², sowie das große Duschbad von ca. 10 m² mit Fenster angegliedert. Die gesamte Wohnfläche beträgt ca. 58 m². Die Wohnung wurde barrierefrei konzipiert.Jeder Wohnung ist ein Abstell/Kellerraum im Untergeschoß zugeordnet.Gleichermaßen befinden sich im Kellergeschoß die Tiefgarage sowie der FahrradbereichEs besteht die Möglichkeit Tiefgaragenstellplätze ab 27.000 EUR oder Doppelparker für 20.000 EUR zu erwerben.Die Bezugsfertigkeit ist für Sommer 2026 geplant. Steuerlicher Hinweis für Investoren : Die Wohnungen können bei einem Erwerb bis zum Jahr der Fertigstellung und einer Vermietung entsprechend den im Wachstumschanchengesetz aktuell beschlossenen Änderungen der degressiven Abschreibung nunmehr mit jährlich 5 %- bezogen auf den jeweiligen Buchwert/Restwert - abgeschrieben werden. Hierdurch können hohe Steuervorteile erzielt werden. Wir übernehmen keine steuerliche Beratung und keine Haftung für steuerliche Ziele. Hierzu informiert Sie Ihr Steuerberater umfassend.
So funktioniert es
- Alle neuen Anzeigen matchen wir kostenlos mit Deinen Suchparametern.
- Passende Angebote senden wir Dir in einer E-Mail pro Tag.
- Du kannst auch verschiedene Suchen anlegen und Dich jederzeit abmelden. Mehr dazu
Wir haben soeben eine E-Mail mit Deinem Suchauftrag an Dich geschickt. – Klicke in dieser Mail auf den Bestätigungslink und schon geht's los. Prüfe ggf. auch Deinen Spamordner.
Es gab ein Problem beim Absenden Deiner E-Mail-Adresse. Bitte versuche es erneut.
WARNUNG: Bitte bestätige Deine E-Mail-Adresse, um regelmäßige Updates zu erhalten.