Kaufpreis 313.600 €
Zimmer 3
Größe 84 m²
27299 Langwedel
Objektdaten
Veröffentlicht am: 17. März 2026
Energieausweis: Liegt bei der Besichtigung vor
Danke! Bitte bestätige Deine E-Mail-Adresse – wir haben Dir soeben eine Mail geschickt.
Es gab ein Problem beim Absenden. Bitte versuche es erneut.
Bitte bestätige Deine E-Mail-Adresse, um Updates zu erhalten.
Objektbeschreibung
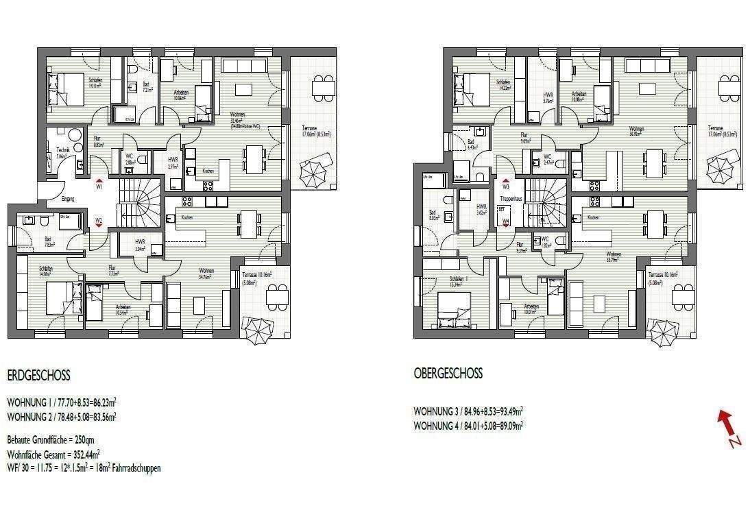
Willkommen im Neubaugebiet Wacholderweg. Nachdem die Erschließungsarbeiten mittlerweile abgeschlossen worden sind und der Baubeginn der ersten Objekte vor bereits erfolgt ist, freuen wir uns, Ihnen unser neu konzipiertes Baugebiet vorzustellen – ein Projekt, das Wohnwünsche erfüllen soll und sowohl Familien – die mit dem "Nestbau" beginnen wollen – als auch die „Generation 50+“ – die nach ebenerdigen Wohnkonzepten ohne Stolperfallen und Barrieren Ausschau hält – in den Mittelpunkt stellt. Darüber hinaus entstehen in zwei kleinen Mehrfamilienhäusern jeweils vier moderne Eigentumswohnungen mit 3 Zimmern auf ca. 84 – 94 Quadratmetern.Das Mehrfamilienhaus beinhaltet nur vier anspruchsvolle 3-Zimmer-Neubauwohnungen und die Wohneinheiten bieten durchdachte Grundrisse bei Wohnflächen zwischen ca. 84 und 94 Quadratmetern. Die umfangreiche Ausstattung und Verarbeitung des Hauses ist entsprechend der besonderen Lage und guten Bauqualität modern und attraktiv sein. Im Hinblick auf die Aufteilung und Ausstattung der Wohnungen möchten wir auf die nachfolgenden Details hinweisen:+ zukunftsorientierte Energieeffizienz als "Effizienzhaus-55" in der Energieklasse A+ inkl. Luftwasserwärmepumpe, 3-Scheiben-Isolierverglasung und dezentraler Lüftungsanlage+ Großzügige Raumaufteilung und durchdachte Grundrisse+ Fußbodenheizung+ Eichenparkett in allen Wohnräumen und moderne Fliesenarbeiten in den übrigen Räumen+ Malerarbeiten und elektrische Rollläden+ Große Sonnenbalkone bzw. Terrassen mit eigenem, kleinen Gartenanteil+ Individuelle Bäder mit attraktiven Sanitärobjekten, großen Duschbereichen und modernen Marken-Armaturen+ Viel zusätzliche Nutzfläche durch große Abstellräume sowohl im Dachgeschoss als auch außenliegend+ Carports und Stellplätze+ Repräsentative Treppenhäuser+ Kostenlose Erstvermietung für KapitalanlegerDie Lage: Kurze Wege - die Autobahnauffahrt A27 ist in wenigen Minuten erreichbar; der Bahnhof in ca. 5 Minuten mit dem Fahrrad. Buslinien fahren in Richtung Bremen und Verden. Das Besondere ist aber nicht nur die ideale Lage - die bewährte Infrastruktur spricht für sich: alle denkbaren Einkaufsmöglichkeiten, vorhandene Ärzte, Physiopraxen, Apotheken, Kinderbetreuung, Schulen, Pflegeeinrichtungen, Fitnessstudio, Banken, ein Eiscafé und vieles mehr, was Sie für ein entspanntes Leben benötigen.Darüber hinaus sichern zahlreiche Vereine positive, soziale Kontakte. Und für alle Bewegungsfreudigen bietet sich das Naherholungsgebiet für ausgedehnte Ausflüge an - die Möglichkeiten sind vielfältig. Richtung Achim und Verden stehen diverse Freizeit- und Sportangebote, Golfclubs, Hallen- und Freizeitbäder zahlreich zur Verfügung.
So funktioniert es
- Alle neuen Anzeigen matchen wir kostenlos mit Deinen Suchparametern.
- Passende Angebote senden wir Dir in einer E-Mail pro Tag.
- Du kannst auch verschiedene Suchen anlegen und Dich jederzeit abmelden. Mehr dazu
Wir haben soeben eine E-Mail mit Deinem Suchauftrag an Dich geschickt. – Klicke in dieser Mail auf den Bestätigungslink und schon geht's los. Prüfe ggf. auch Deinen Spamordner.
Es gab ein Problem beim Absenden Deiner E-Mail-Adresse. Bitte versuche es erneut.
WARNUNG: Bitte bestätige Deine E-Mail-Adresse, um regelmäßige Updates zu erhalten.