Objektdaten
Objektbeschreibung
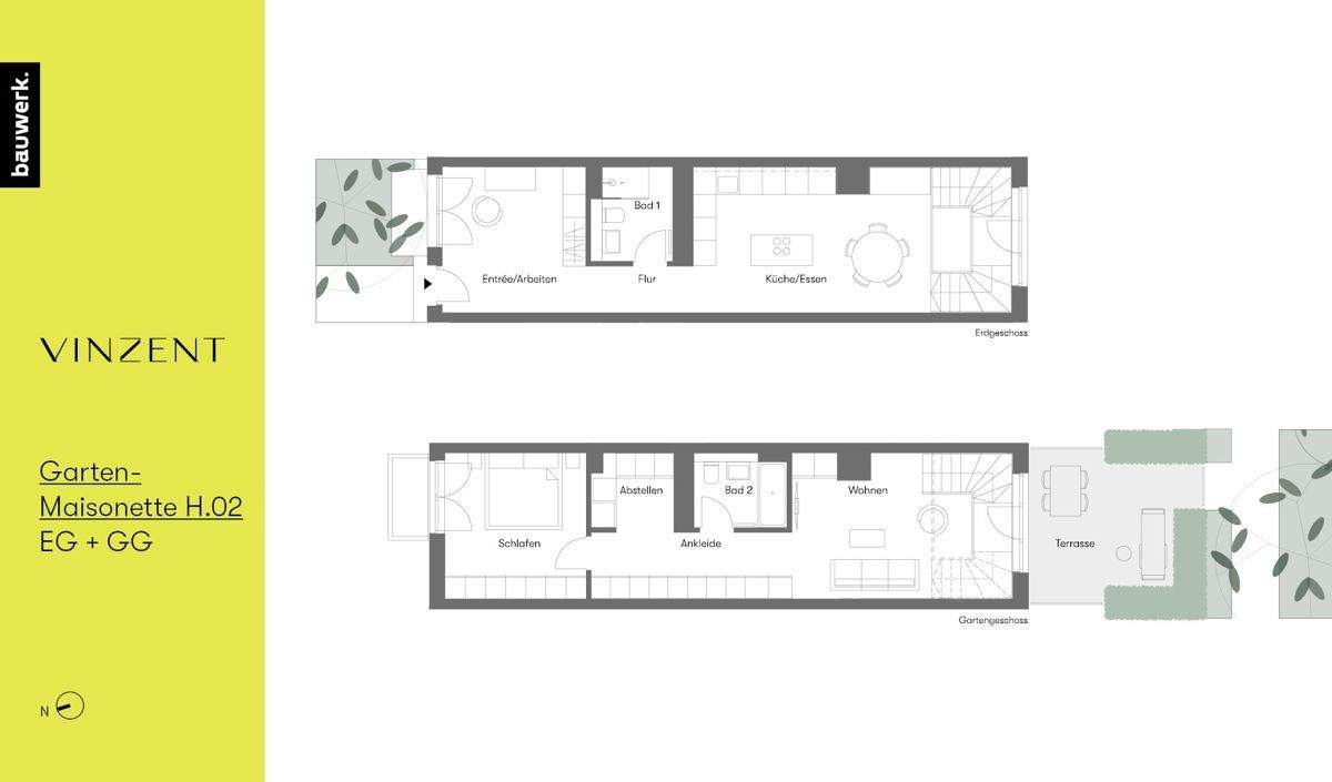
Privat und naturnah: Schon die Lage im grünen Innenhofgarten von VINZENT macht diese Maisonette zu einer besonderen Wohnung. Über zwei Ebenen erstrecken sich die Wohnbereiche im ruhigen Hofhaus. Eines der Highlights ist die offen gestaltete, helle Wohnküche mit ihrem direkten Blick nach draußen auf die nach Süden ausgerichtete private Terrasse und den grünen Innenhofgarten. Der großzügige Masterbereich mit Schlafen, Bad und Ankleide ist entspannter Rückzugsort. Auch für das Arbeiten zuhause steht viel Platz zur Verfügung.Ähnliche Angebote
So funktioniert es
- Alle neuen Anzeigen matchen wir kostenlos mit Deinen Suchparametern.
- Passende Angebote senden wir Dir in einer E-Mail pro Tag.
- Du kannst auch verschiedene Suchen anlegen und Dich jederzeit abmelden. Mehr dazu





