Kaufpreis 299.000 €
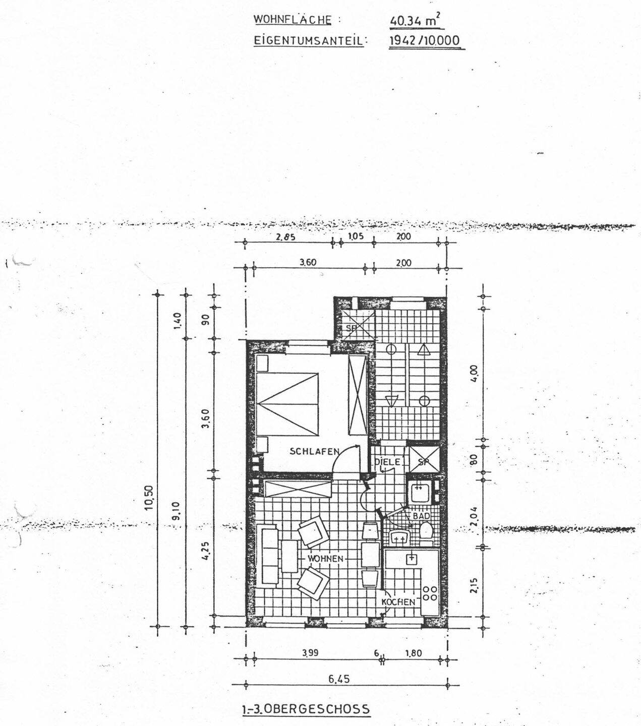
Zimmer 2
Größe 45 m²
51107 Köln
Objektdaten
Veröffentlicht am: 17. März 2026
Energieausweis: Liegt bei der Besichtigung vor
Danke! Bitte bestätige Deine E-Mail-Adresse – wir haben Dir soeben eine Mail geschickt.
Es gab ein Problem beim Absenden. Bitte versuche es erneut.
Bitte bestätige Deine E-Mail-Adresse, um Updates zu erhalten.
Objektbeschreibung
Im Ortsteil Heumar entstehen drei moderne Mehrfamilienhäuser mit Tiefgarage und Aufzug. Die ca. 46 bis ca. 114 m² großen Wohnungen, bestechen durch eine gelungene Raumaufteilung, ein helles Wohnambiente und geräumige Terrassen oder Balkone. Ein Wärmedämmverbundsystem packt das Mauerwerk bzw. die Betonwände so warm ein, dass nur noch wenig Heizenergie nötig ist. Fenster mit Drei-Scheiben-Wärmeschutzverglasung sowie elektrische Außenrollläden gehören zum Wärmeschutzkonzept. Auf den Dächern stehen Luft-Wasser-Wärmepumpen, die Wärmeenergie aus der Umgebungsluft gewinnen und in die Fußbodenheizungen einspeisen. Der für den Betrieb der Wärmepumpen benötigte Strom kommt teilweise von den gebäudeeigenen Photovoltaikanlagen. Jüngere, die in Köln studieren oder arbeiten, freuen sich über die hervorragende Verkehrsanbindung. Ältere schätzen vielleicht die Überschaubarkeit des Stadtteils und die Tatsache, dass sie fast alle Besorgungen zu Fuß oder mit dem Rad erledigen können. Wer nicht mehr so gut auf den Beinen ist, profitiert besonders von der barrierefreien Bauweise der Häuser. Auch junge Familien finden vor Ort alles was das Leben lebenswert macht. Alle Geschäfte des täglichen Bedarfs sowie Arztpraxen finden sich im Viertel. Im Ortskern haben sich viele Läden und Restaurants angesiedelt. Drei Kindertagesstätten und eine Gemeinschaftsgrundschule befinden sich in Heumar.Der angrenzende Königsforst mit seinen Wander-, Spazier- und Radwegen ist ein großer Pluspunkt der Wohnlage. In 20 Minuten erreichen Erholungssuchende zudem die Wahner Heide. Einen eigenen See mit Badestrand bietet der Stadtteil ebenfalls. Wer nach Köln pendelt oder die Innenstadt besuchen möchte ist in ca. 35 Minuten vor Ort. Und in nur 25 Autominuten ist man in Bonn. Durch die hervorragenden Autobahnverbindungen sind auch andere Ausflugsziele im Umland schnell zu erreichen. Und diejenigen, die es richtig in die Ferne zieht, fahren einfach in fünf Minuten zum Köln-Bonner Flughafen und heben ab.
So funktioniert es
- Alle neuen Anzeigen matchen wir kostenlos mit Deinen Suchparametern.
- Passende Angebote senden wir Dir in einer E-Mail pro Tag.
- Du kannst auch verschiedene Suchen anlegen und Dich jederzeit abmelden. Mehr dazu
Wir haben soeben eine E-Mail mit Deinem Suchauftrag an Dich geschickt. – Klicke in dieser Mail auf den Bestätigungslink und schon geht's los. Prüfe ggf. auch Deinen Spamordner.
Es gab ein Problem beim Absenden Deiner E-Mail-Adresse. Bitte versuche es erneut.
WARNUNG: Bitte bestätige Deine E-Mail-Adresse, um regelmäßige Updates zu erhalten.