Kaufpreis 370.000 €
Zimmer 2
Größe 62 m²
17192 Waren (Müritz)
Objektdaten
Veröffentlicht am: 17. März 2026
Energieausweis: Liegt bei der Besichtigung vor
Danke! Bitte bestätige Deine E-Mail-Adresse – wir haben Dir soeben eine Mail geschickt.
Es gab ein Problem beim Absenden. Bitte versuche es erneut.
Bitte bestätige Deine E-Mail-Adresse, um Updates zu erhalten.
Objektbeschreibung
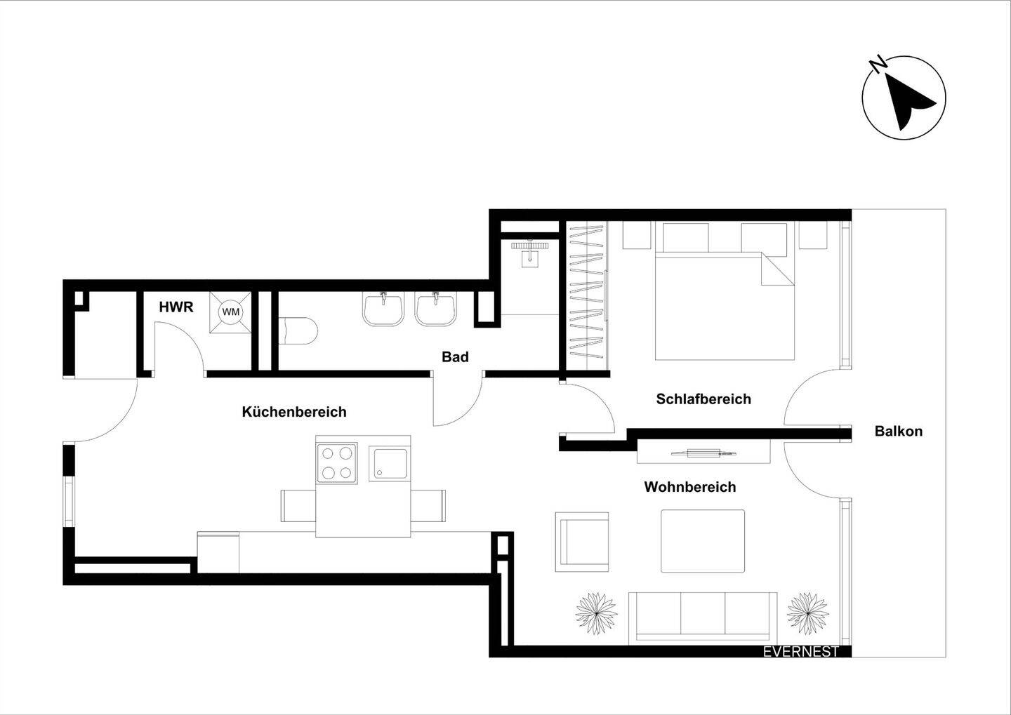
Willkommen in Ihrem hochwertigen touristischen Ferienappartement in der malerischen Stadt Waren (Müritz)!Diese modern gestaltete 2-Zimmer Wohnung befindet sich in einer gepflegten Hotelanlage, nur wenige Schritte von der traumhaften Müritz entfernt. Mit einer Wohnfläche von ca. 62 m² bietet sie ausreichend Platz für Erholungssuchende und Naturliebhaber.Das Highlight der Wohnung ist die Kochinsel, in der Kochbegeisterte ihrer Kreativität freien Lauf lassen können. Es gibt ein gemütliches Schlafzimmer, welches zum Träumen und Entspannen einlädt mit separatem Zugang zum Balkon. Zudem verfügt die Wohnung über ein modernes Badezimmer mit einer Regendusche.Genießen Sie den Sonnenaufgang vom Balkon im 2. Stock und starten Sie entspannt in den Tag. Nun können Sie die nahegelegene historische Altstadt Waren (Müritz) erkunden oder einen Spaziergang am Hafen machen. Sie möchten lieber relaxen und den Blick vom Außenpool auf die Müritz genießen? Kein Problem: Besuchen Sie den Wellnessbereich, der den Hotelgästen gratis zur Verfügung steht, und nutzen Sie die zwei Saunen, den Ruheraum sowie den Außenpool mit einem atemberaubenden Blick auf die Müritz. Im Anschluss lassen Sie sich à la carte kulinarisch vom direkt angrenzenden Restaurant "Bella Riva" verwöhnen. Dort können Sie sich übrigens am Morgen auch gegen einen Aufpreis vom reichhaltigen Frühstücksbuffet verzaubern lassen.Optional erhalten Sie für 20.000 € einen Tiefgaragenstellplatz für Sie und Ihre Gäste, so dass einer bequemen Anreise nichts im Wege steht.Die Wohnung eignet sich nicht nur ideal für den eigenen Gebrauch, sondern bietet auch attraktive Vermietungsmöglichkeiten in einer begehrten touristischen Region. Durch die Nähe zur Müritz ist eine hohe Nachfrage nach Ferienunterkünften gegeben, was sich positiv auf die monatlichen Mieteinnahmen auswirken kann.Nutzen Sie den 360 Grad Rundgang (https://my.matterport.com/show/?m=V8Dsv1vn4Be)und investieren Sie in eine Immobilie mit Potenzial! Für weitere Fragen sind wir gern für Sie da. Ihr Team Evernest Waren (Müritz)
So funktioniert es
- Alle neuen Anzeigen matchen wir kostenlos mit Deinen Suchparametern.
- Passende Angebote senden wir Dir in einer E-Mail pro Tag.
- Du kannst auch verschiedene Suchen anlegen und Dich jederzeit abmelden. Mehr dazu
Wir haben soeben eine E-Mail mit Deinem Suchauftrag an Dich geschickt. – Klicke in dieser Mail auf den Bestätigungslink und schon geht's los. Prüfe ggf. auch Deinen Spamordner.
Es gab ein Problem beim Absenden Deiner E-Mail-Adresse. Bitte versuche es erneut.
WARNUNG: Bitte bestätige Deine E-Mail-Adresse, um regelmäßige Updates zu erhalten.