Warmmiete 1.903 €
Zimmer 5
Größe 122 m²
21680 Stade
Objektdaten
Veröffentlicht am: 17. März 2026
Frei ab: 1. Juni 2026
Kaltmiete 1.525 €
Energieausweis: Liegt bei der Besichtigung vor
Danke! Bitte bestätige Deine E-Mail-Adresse – wir haben Dir soeben eine Mail geschickt.
Es gab ein Problem beim Absenden. Bitte versuche es erneut.
Bitte bestätige Deine E-Mail-Adresse, um Updates zu erhalten.
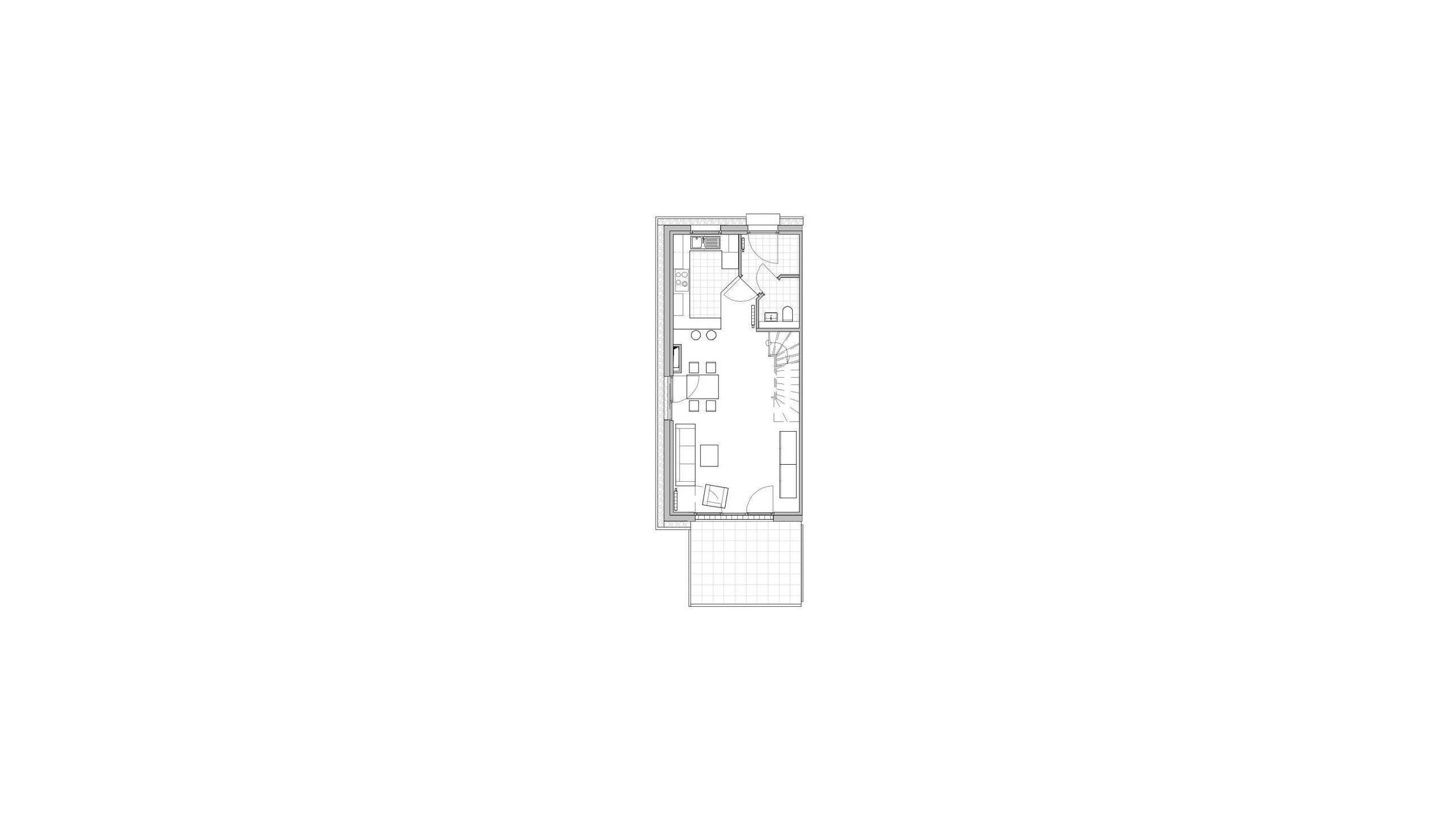
Objektbeschreibung
Neubau mit Stil und Komfort! Dieses exklusive Reihenhaus vereint modernes Design, nachhaltige Bauweise und zukunftssichere Energieversorgung: Es erfüllt den KfW-55-Standard und wird vollständig aus regional erzeugter, erneuerbarer Energie gespeist - effizient, umweltfreundlich und energieoptimiert.In einer begehrten Lage von Stade entstehen insgesamt 36 hochwertige Neubau-Reihenhäuser, die durch clevere Architektur, erstklassige Materialien und zeitloses Design überzeugen. Ob Reihenmittelhaus oder Reihenendhaus - hier finden Familien, Paare und alle, die Wert auf Stil und Wohnkomfort legen, ein lichtdurchflutetes Zuhause mit großzügigen Räumen und moderner Ausstattung.Auf ca. 122 m² Wohnfläche, verteilt auf drei Etagen, bietet der Haus Typ 120 SD 40 ein Raumangebot, das keine Wünsche offenlässt.Beim Betreten der Immobilie empfängt Sie ein ca. 3 m² großer Eingangsbereich, der genügend Platz für eine Garderobe bietet. Von hier aus gelangen Sie sowohl in das moderne Gäste-WC (ca. 2 m²) als auch direkt in den großzügigen Wohn- und Essbereich.Der offen gestaltete Wohn- und Essbereich (ca. 30 m²) ist das Herzstück des Hauses: helle Fensterfronten lassen viel Tageslicht herein, und der Raum bietet genügend Platz für ein großes Sofa, einen Essbereich und vieles mehr. Die offen gehaltene Küche (ca. 7 m²) fügt sich harmonisch in den Wohnbereich ein und bietet ideale Voraussetzungen für gemeinsames Kochen. Vom Wohn- und Essbereich gelangen Sie auf die Terrasse (ca. 6 m²) und in den privaten Garten - perfekt für entspannte Abende, Grillrunden mit Freunden oder zum Spielen für Kinder.Über die Treppe gelangen Sie in das Obergeschoss, wo ein ca. 4 m² großer Flur alle Räume miteinander verbindet. Auf dieser Ebene befinden sich das Elternschlafzimmer (ca. 15 m²), ein Kinderzimmer (ca. 14 m²) sowie ein modernes Badezimmer (ca. 7 m²) mit Badewanne und Walk-In-Dusche mit Glastür.Das vollständig ausgebaute Dachgeschoss eröffnet weitere Möglichkeiten und eignet sich ideal für größere Kinder, Homeoffice oder Gäste. Zwei weitere Zimmer (ca. 17 m² und 14 m²) stehen hier ebenfalls zur Verfügung.Die hochwertige Ausstattung überzeugt auf ganzer Linie: Fußbodentemperierung und elektrische Rollläden im Erdgeschoss, Dreifachverglaste Fenster, eine doppelte Trennwandkonstruktion für optimale Schalldämmung sowie eine Wohnraumlüftungsanlage gehören zum Standard. Außerdem ist ein Stellplatz mit E-Mobilitätsvorbereitung. Die Häuser sind mit moderner Netzwerkverkabelung und gepflegten Außenanlagen ausgestattet.Zwei PKW-Stellplätze können optional dazugebucht werden; sie sind in der Warmmiete bereits berücksichtigt (40 € pro Stellplatz). Eine Einbauküche ist nicht enthalten, sodass Sie Ihre Küche nach eigenen Vorstellungen gestalten können.Ihre möglichen Optionen: Reihenendhaus:Nr. 9, Nr. 14, Nr. 29, Nr. 33, 1.525,00 € KaltmieteReihenmittelhaus: Nr. 10,11,12,13, Nr. 30, Nr. 31, Nr. 32, 1.464,00 € KaltmieteWir freuen uns auf Ihre Anfrage!Der Energieausweis ist nach Fertigstellung verfügbar.
So funktioniert es
- Alle neuen Anzeigen matchen wir kostenlos mit Deinen Suchparametern.
- Passende Angebote senden wir Dir in einer E-Mail pro Tag.
- Du kannst auch verschiedene Suchen anlegen und Dich jederzeit abmelden. Mehr dazu
Wir haben soeben eine E-Mail mit Deinem Suchauftrag an Dich geschickt. – Klicke in dieser Mail auf den Bestätigungslink und schon geht's los. Prüfe ggf. auch Deinen Spamordner.
Es gab ein Problem beim Absenden Deiner E-Mail-Adresse. Bitte versuche es erneut.
WARNUNG: Bitte bestätige Deine E-Mail-Adresse, um regelmäßige Updates zu erhalten.