Objektdaten
Objektbeschreibung
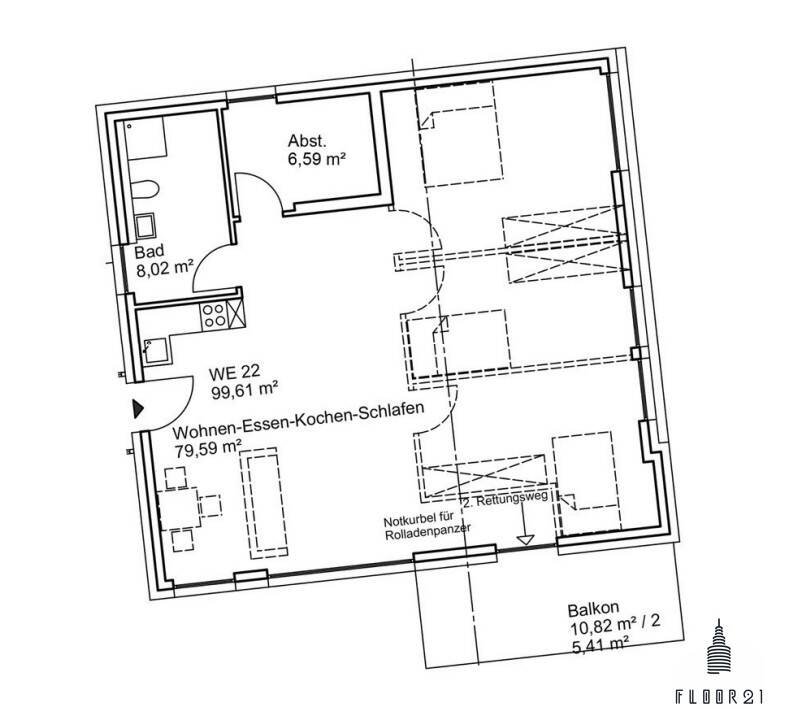
Exklusive 3 Zimmer Neubauwohnung in moderner Wohnanlage mit 24 Einheiten.Dieser Neubaukomplex als KfW-55 Effizienzhaus bietet mit 24 exklusiven Wohneinheiten sowohlSingles, Paaren als auch Familien einen idealen Lebensmittelpunkt.Ausgestattet mit bodentiefen Fenstern, Fußbodenheizung, top modernen Sanitäranlangen und auf Wunsch mit Smarthome, werden hier alle Wünsche hinsichtlich moderner und umweltbewusster Wohnqualität erfüllt.Die 3 Zimmer Wohnung bietet auf ca. 93m² Wohnfläche einen cleveren Grundriss mit offenem Wohn-Essbereich und Küche, sowie 2 Schlafzimmern und Tageslichtbad. Weiterhin findet sich ein großzügiger Abstellraum, sowie ein großer Balkon mit rund 11m². Sie haben auch dieMöglichkeit die innenliegenden Wände selbst zu gestalten und somit die Flexibilität frei nachIhren Bedürfnissen selbst mit zu kreieren.Die gehobene Ausstattung und die Möglichkeit zum Erwerb von Tiefgaragenstellplätzen runden das Angebot ab.Die hohe Bau-Qualität, die schöne Umgebung und der Steuervorteil eines KfW-55 Effizienzhausesmachen den Erwerb dieser Neubau-Wohnungen sowohl für Selbstbezieher als auch für Kapitalanleger sehr attraktiv.Für mehr Informationen kontaktieren Sie uns gerne!Ähnliche Angebote
So funktioniert es
- Alle neuen Anzeigen matchen wir kostenlos mit Deinen Suchparametern.
- Passende Angebote senden wir Dir in einer E-Mail pro Tag.
- Du kannst auch verschiedene Suchen anlegen und Dich jederzeit abmelden. Mehr dazu




