Objektdaten
Objektbeschreibung
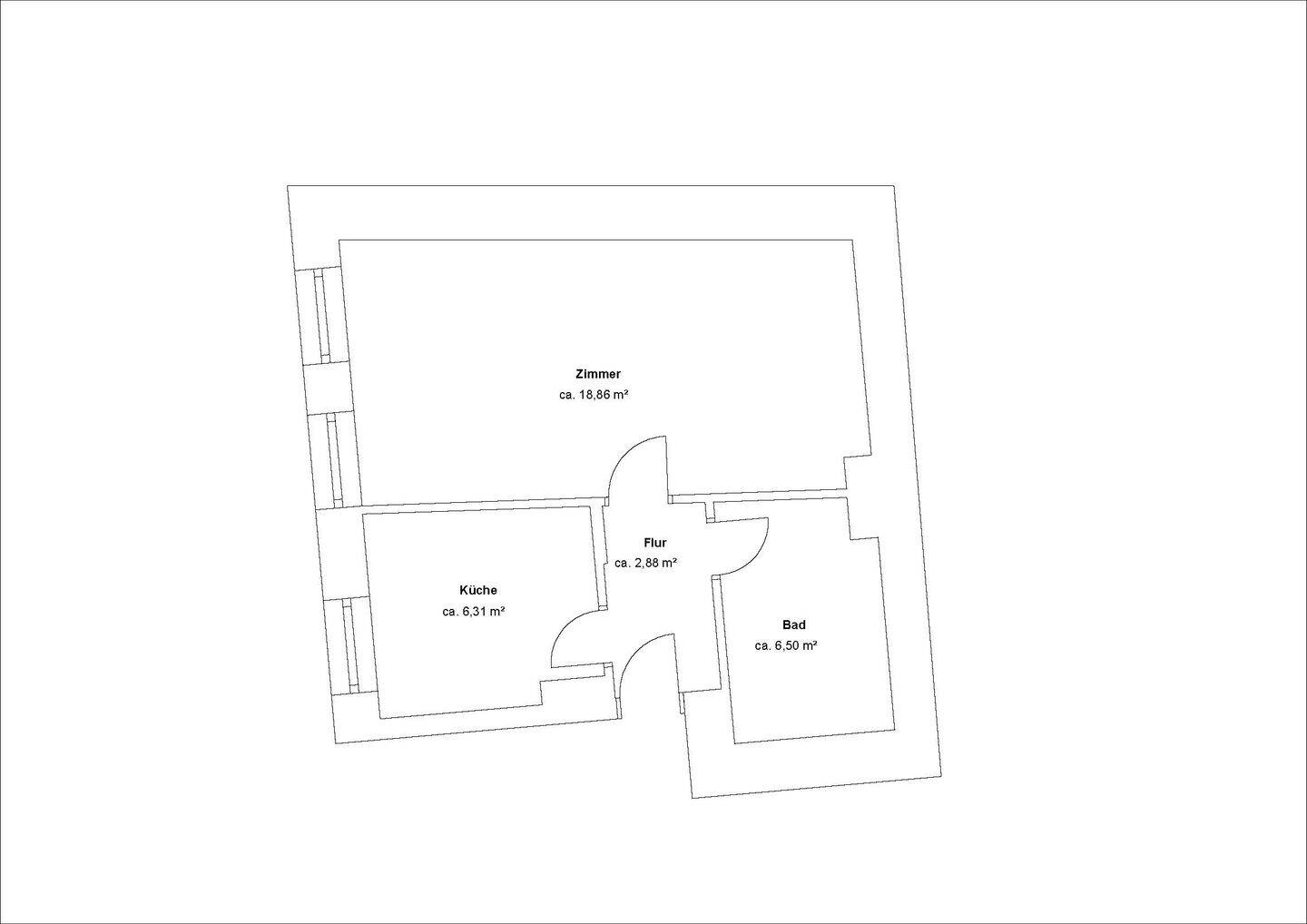
Die kompakte 1-Zimmerwohnung befindet sich im Erdgeschoss des Hinterhauses eines Altbaus aus 1900 und ist zur Hofseite ausgerichtet. Mit einer Wohnfläche von ca. 34,55 m² ist die Wohnung perfekt für eine Person geeignet und bietet Ruhe sowie modernen Wohnkomfort. Das gut 18 m² große Zimmer ist der zentrale Raum der Wohnung und bietet einen offenen Wohn-, Ess- und Schlafbereich, der durch zwei große Fenster viel Tageslicht hereinlässt. Die Küche bietet eine Einbauküche und ausreichend Platz für eine kleine Sitzecke. Das hell geflieste Badezimmer verfügt über eine Badewanne. Dank des durchdachten Grundrisses lässt sich hier Ihr kompakter Wohntraum verwirklichen.Ähnliche Angebote
So funktioniert es
- Alle neuen Anzeigen matchen wir kostenlos mit Deinen Suchparametern.
- Passende Angebote senden wir Dir in einer E-Mail pro Tag.
- Du kannst auch verschiedene Suchen anlegen und Dich jederzeit abmelden. Mehr dazu




