Objektdaten
Objektbeschreibung
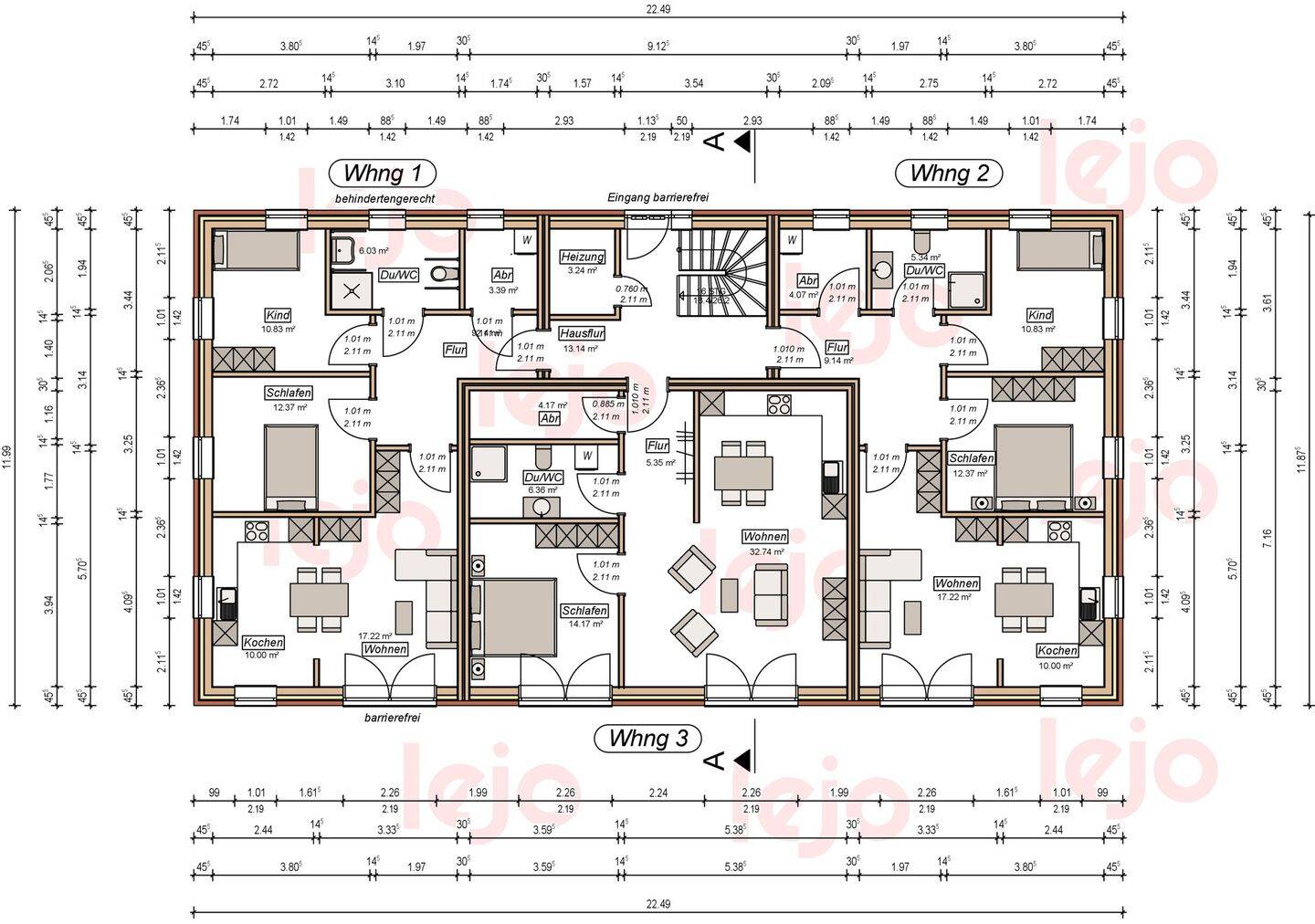
Moderne 3-Zimmer-Erdgeschosswohnung in zentraler Lage von Emden (Neubauprojekt)Es Handelt sich hier um Wohnung 1 auf den Grundrissen.In einem attraktiven Neubauprojekt in stadtnaher Lage von Emden entsteht ein modernes 5-Parteienhaus mit zeitgemäßer Architektur und nachhaltigem Energiekonzept. Die hier angebotene 3-Zimmer-Erdgeschosswohnung überzeugt mit einem durchdachten Grundriss, hochwertiger Ausstattung und einer Wohnfläche von 68 m² - ideal für Paare, kleine Familien oder Kapitalanleger.Die Wohnung verfügt über drei gut geschnittene Zimmer, darunter ein offener Wohn- und Essbereich mit direktem Zugang zur sonnigen Terrasse, zwei Schlafzimmer sowie ein modernes Badezimmer. Ein praktischer Abstellraum innerhalb der Wohnung sorgt für zusätzlichen Stauraum.Besonders hervorzuheben ist das nachhaltige Energiekonzept: Die Beheizung erfolgt über eine umweltfreundliche Wärmepumpe, unterstützt durch eine Photovoltaikanlage mit Speicher. Eine Fußbodenheizung in allen Räumen sorgt für angenehme Wärme und hohen Wohnkomfort.Zur Wohnung gehören ein eigener PKW-Stellplatz sowie ein gemeinschaftlich genutzter Fahrradschuppen. Die Bauweise erfüllt moderne energetische Standards, die Wohnung wird schlüsselfertig übergeben. Die geplante Fertigstellung ist für 2026 vorgesehen - der ideale Zeitpunkt, sich ein zukunftssicheres Zuhause oder eine wertstabile Kapitalanlage zu sichern.Sichern Sie sich jetzt diese attraktive Erdgeschosswohnung in begehrter Lage - wir beraten Sie gerne persönlich!Ähnliche Angebote
So funktioniert es
- Alle neuen Anzeigen matchen wir kostenlos mit Deinen Suchparametern.
- Passende Angebote senden wir Dir in einer E-Mail pro Tag.
- Du kannst auch verschiedene Suchen anlegen und Dich jederzeit abmelden. Mehr dazu




