Kaufpreis 449.000 €
Zimmer 3
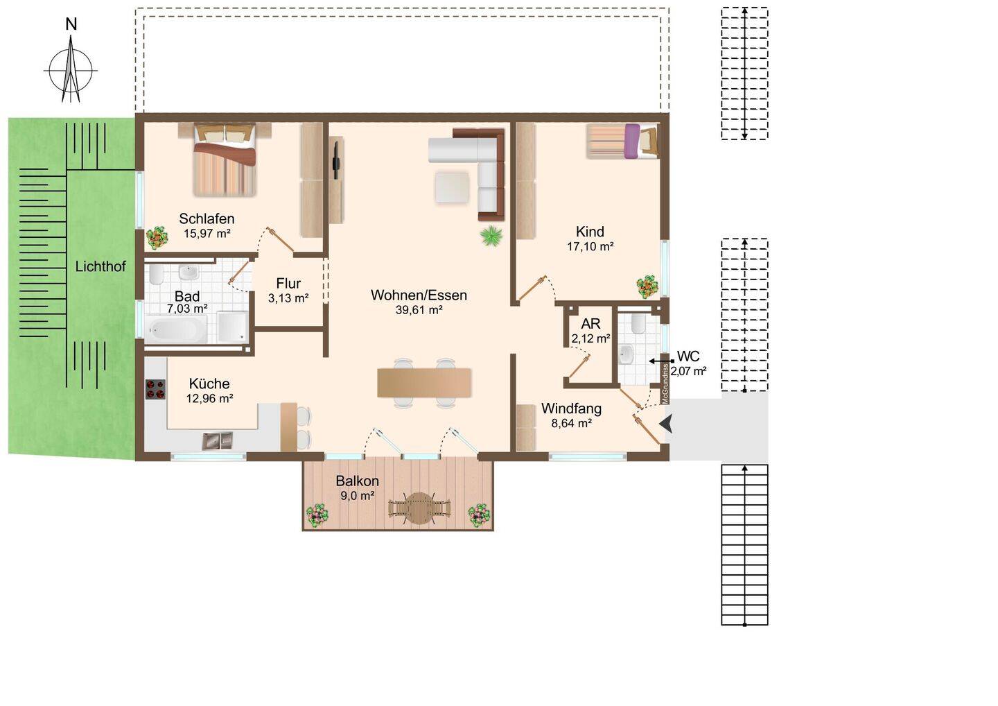
Größe 113 m²
78532 Tuttlingen
Objektdaten
Veröffentlicht am: 18. März 2026
Energieausweis: Liegt bei der Besichtigung vor
Danke! Bitte bestätige Deine E-Mail-Adresse – wir haben Dir soeben eine Mail geschickt.
Es gab ein Problem beim Absenden. Bitte versuche es erneut.
Bitte bestätige Deine E-Mail-Adresse, um Updates zu erhalten.
Objektbeschreibung
Ihr neues Zuhause in bester Lage von Tuttlingen!Diese Erdgeschosswohnung im Koppenland bietet Ihnen mehr als nur Wohnraum - sie schenkt Ihnen ein neues Lebensgefühl. Klare Linien, moderne Technik und helle Räume verschmelzen zu einem harmonischen Gesamtbild. Ideal für alle, die Wert auf Qualität, Komfort und Stil legen.In einem stilvoll entworfenen 4-Familienhaus im beliebten Tuttlinger Koppenland. Diese exklusive Erdgeschosswohnung bietet höchsten Wohnkomfort, kombiniert mit modernster Technik und einem anspruchsvollen Architekturkonzept.Dank der leichten Hanglage genießen Sie selbst im Erdgeschoss einen beeindruckenden Donaublick - vergleichbar mit den oberen Etagen. Die großzügige Terrasse erweitert den Wohnraum nach draußen und lädt zum Verweilen, Entspannen und Genießen ein - hier erleben Sie Wohnqualität auf höchstem Niveau.Großzügige Süd-Terrasse mit herrlichem DonaublickIdeal geschnittene Wohnfläche mit lichtdurchfluteten RäumenHochwertige Ausstattung - bis ins Detail durchdachtEnergieeffizienzhaus 55 - nachhaltig und zukunftssicherHIGHLIGHTS AUF EINEN BLICK - Höchste Effizienz durch Luftwärmepumpe- Kontrollierte Be- u. Entlüftungsanlage dezentral - Elegante Lack-Innentüren mit Profilfräsungen - Bewegungsmelder im Flur - Rauchmelder in Schlafräumen u. Fluren - TV & Netzwerk-Dosen in Wohn- u. Schlafräumen - Elektrische Rollläden in allen Wohnräumen - Fußbodenheizung mit digitaler Einzelraumsteuerung - Barrierefreie Duschen (Duschrinne, bodeneben) - Sanitärobjekte Villeroy & Boch // Stilvolle Badmöbel (inkl. Spiegelschrank) - Bad-Armaturen Hansgrohe - Echtglas-Duschabtrennungen - Hochwertige Bodenbeläge nach Bemusterung - Design-Fliesen (Feinsteinzeug) - Edelputz-Wandbeläge - Garage
So funktioniert es
- Alle neuen Anzeigen matchen wir kostenlos mit Deinen Suchparametern.
- Passende Angebote senden wir Dir in einer E-Mail pro Tag.
- Du kannst auch verschiedene Suchen anlegen und Dich jederzeit abmelden. Mehr dazu
Wir haben soeben eine E-Mail mit Deinem Suchauftrag an Dich geschickt. – Klicke in dieser Mail auf den Bestätigungslink und schon geht's los. Prüfe ggf. auch Deinen Spamordner.
Es gab ein Problem beim Absenden Deiner E-Mail-Adresse. Bitte versuche es erneut.
WARNUNG: Bitte bestätige Deine E-Mail-Adresse, um regelmäßige Updates zu erhalten.