Kaufpreis 513.000 €
Zimmer 4
Größe 108 m²
67269 Grünstadt
Objektdaten
Veröffentlicht am: 18. März 2026
Energieausweis: Liegt bei der Besichtigung vor
Danke! Bitte bestätige Deine E-Mail-Adresse – wir haben Dir soeben eine Mail geschickt.
Es gab ein Problem beim Absenden. Bitte versuche es erneut.
Bitte bestätige Deine E-Mail-Adresse, um Updates zu erhalten.
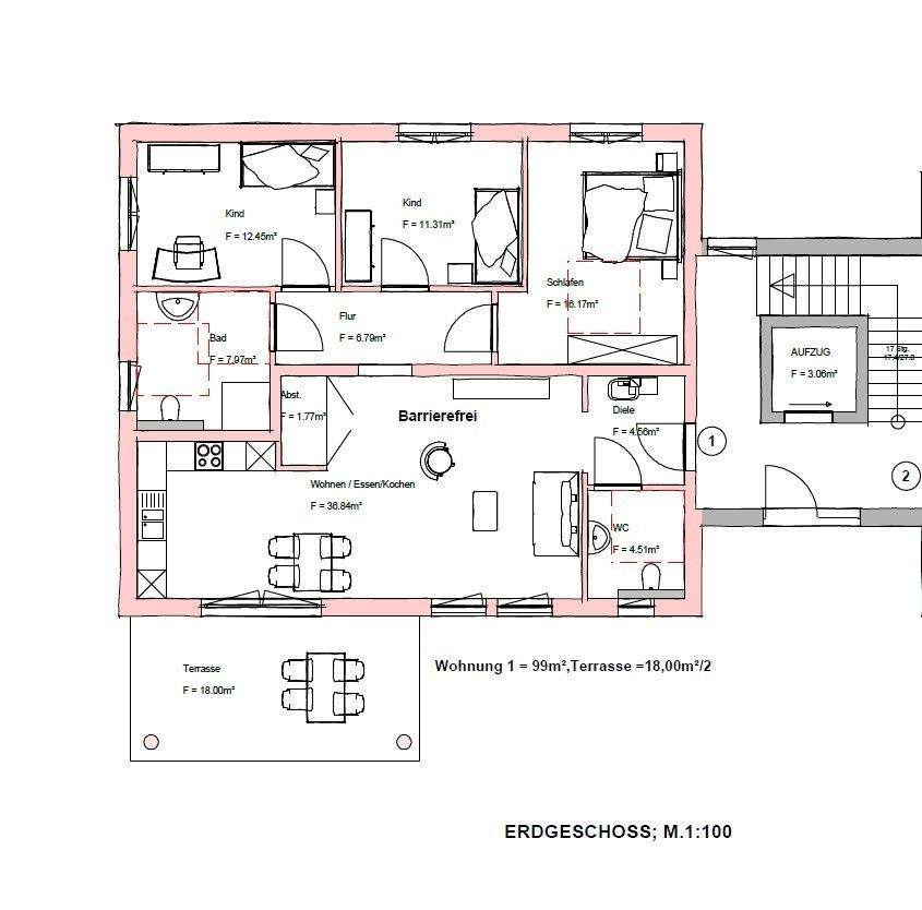
Objektbeschreibung
Diese barrierefreie Erdgeschosswohnung mit sonniger Süd-West-Terrasse befindet sich in einem eleganten, dreigeschossigen Neubau und überzeugt durch eine durchdachte Raumgestaltung: Ein großzügiger Wohn- und Essbereich mit offener Küche, drei helle Schlafzimmer, ein hochwertiges Tageslichtduschbad, eine einladende Diele sowie ein separates Gäste-WC bieten Wohnkomfort auf hohem Niveau.Das stilvolle Badezimmer ist mit erstklassigen Materialien ausgestattet und verbindet moderne Ästhetik mit funktionaler Planung. Ein zusätzliches Gäste-WC unterstreicht die Alltagstauglichkeit dieser attraktiven Wohnung.Die großflächige Terrasse mit ca. 18 m² lädt zu entspannten Stunden im Freien ein und eröffnet einen herrlichen Blick ins Grüne - ideal für sonnige Nachmittage und laue Sommerabende.Im gesamten Wohnbereich sorgt hochwertiges Echtholzparkett für ein warmes, edles Ambiente. Malervlies an den Wänden bietet eine ruhige, hochwertige Oberflächenoptik. Die verbauten energieeffizienten, qualitativ hochwertigen Fenster gewährleisten optimale Dämmwerte und eine lichtdurchflutete Wohnatmosphäre.Ein besonderer Vorteil dieser Wohnung ist die konsequent umgesetzte Barrierefreiheit:Der Zugang zur Wohnung ist ebenerdig und rollstuhlgerecht gestaltet.Ein Aufzug verbindet alle Etagen und ermöglicht auch den barrierefreien Zugang vom Keller bis zur Wohnungstür - ideal für Personen mit Mobilitätseinschränkungen oder für alle, die maximalen Komfort wünschen.Direkt neben der Wohnung ist ein reservierter Carport-Stellplatz vorgesehen, der kurze Wege garantiert und das tägliche Leben erheblich erleichtert.Praktischen Mehrwert bietet die Teilunterkellerung, die zusätzlichen Stauraum schafft.Diese barrierefreie Stadtwohnung vereint zeitlose Eleganz, Komfort, hervorragende Erreichbarkeit und moderne energieeffiziente Bauweise - der ideale Ort, um in Grünstadt ein stilvolles und zukunftssicheres Zuhause zu genießen.Lassen Sie sich von diesem außergewöhnlichen Wohnangebot begeistern.
So funktioniert es
- Alle neuen Anzeigen matchen wir kostenlos mit Deinen Suchparametern.
- Passende Angebote senden wir Dir in einer E-Mail pro Tag.
- Du kannst auch verschiedene Suchen anlegen und Dich jederzeit abmelden. Mehr dazu
Wir haben soeben eine E-Mail mit Deinem Suchauftrag an Dich geschickt. – Klicke in dieser Mail auf den Bestätigungslink und schon geht's los. Prüfe ggf. auch Deinen Spamordner.
Es gab ein Problem beim Absenden Deiner E-Mail-Adresse. Bitte versuche es erneut.
WARNUNG: Bitte bestätige Deine E-Mail-Adresse, um regelmäßige Updates zu erhalten.