Kaufpreis 231.880 €
24369 Waabs
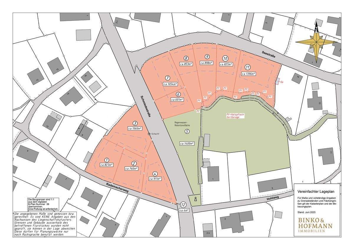
Objektdaten
Veröffentlicht am: 18. März 2026
Danke! Bitte bestätige Deine E-Mail-Adresse – wir haben Dir soeben eine Mail geschickt.
Es gab ein Problem beim Absenden. Bitte versuche es erneut.
Bitte bestätige Deine E-Mail-Adresse, um Updates zu erhalten.
Objektbeschreibung
Ab Sommer 2025 entsteht neues Bauland in der schönen Gemeinde Waabs! Sie haben die Möglichkeit nur 1,6 km von der Ostsee entfernt, im Herzen des gewachsenen Ortskerns, Ihr neues Haus zu errichten - sei es als neues Familienzuhause oder als Alterswohnsitz.Dabei müssen Sie nicht auf gute Infrastruktur verzichten, denn Einkaufsmöglichkeiten finden Sie in der Gemeinde Waabs, Vogelsang-Grünholz, Damp und der in 15min erreichten Stadt Kappeln, wo Sie ein großes Angebot regionaler Gastronomie erwartet.Die Baugrundstücke werden provisionsfrei und ohne Architekten-/Haus- und Finanzierungsbindung verkauft. Im Vorwege haben wir jedoch Hauspreise von regionalen Bauunternehmen eingeholt (bspw. für ein Einfamilienhaus und einen Bungalow) und mit einem Finanzierungsexperten durchgerechnet, was eine Bebauung kosten mag. Wir möchten, dass Sie konkret wissen, welche Kosten auf Sie zukommen (auch in Bezug auf Anschluss an die Gemeinde etc.) und haben daher alles für Sie zusammengetragen.Neben diesem Angebot stehen weitere Baugrundstücke in unterschiedlichen Größen für die Bebauung von Einzelhäusern zur Verfügung. Nähere Informationen zu freien Grundstücken, Preisen, Reservierungsmöglichkeiten etc. erhalten Sie auf Anfrage!
So funktioniert es
- Alle neuen Anzeigen matchen wir kostenlos mit Deinen Suchparametern.
- Passende Angebote senden wir Dir in einer E-Mail pro Tag.
- Du kannst auch verschiedene Suchen anlegen und Dich jederzeit abmelden. Mehr dazu
Wir haben soeben eine E-Mail mit Deinem Suchauftrag an Dich geschickt. – Klicke in dieser Mail auf den Bestätigungslink und schon geht's los. Prüfe ggf. auch Deinen Spamordner.
Es gab ein Problem beim Absenden Deiner E-Mail-Adresse. Bitte versuche es erneut.
WARNUNG: Bitte bestätige Deine E-Mail-Adresse, um regelmäßige Updates zu erhalten.