Objektdaten
Objektbeschreibung
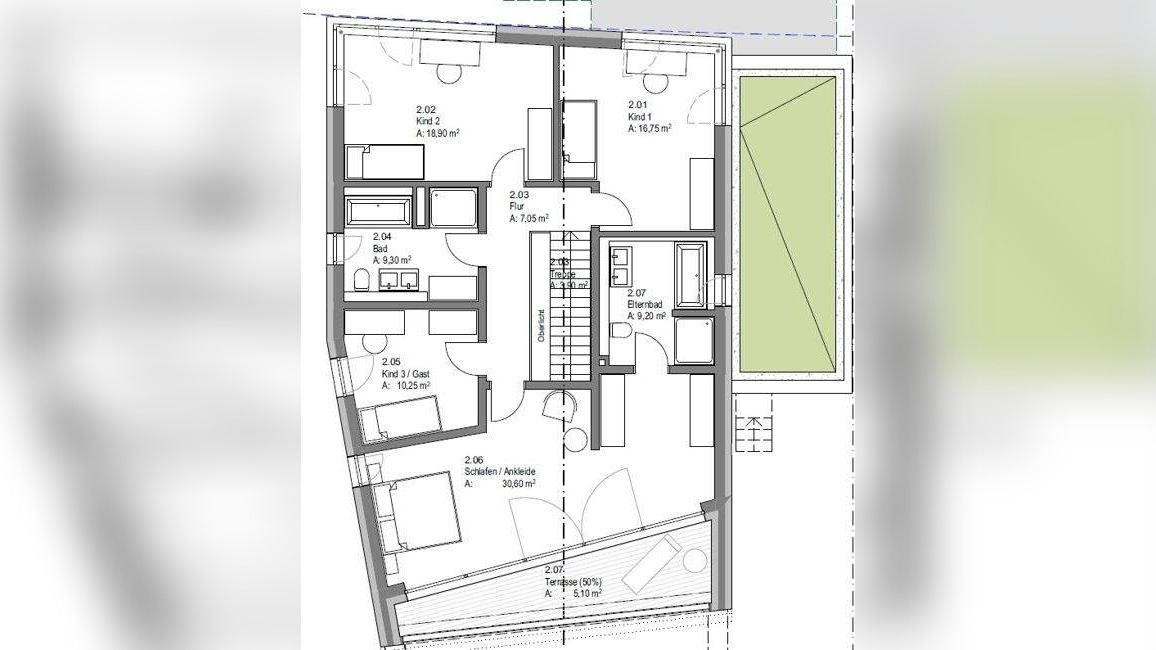
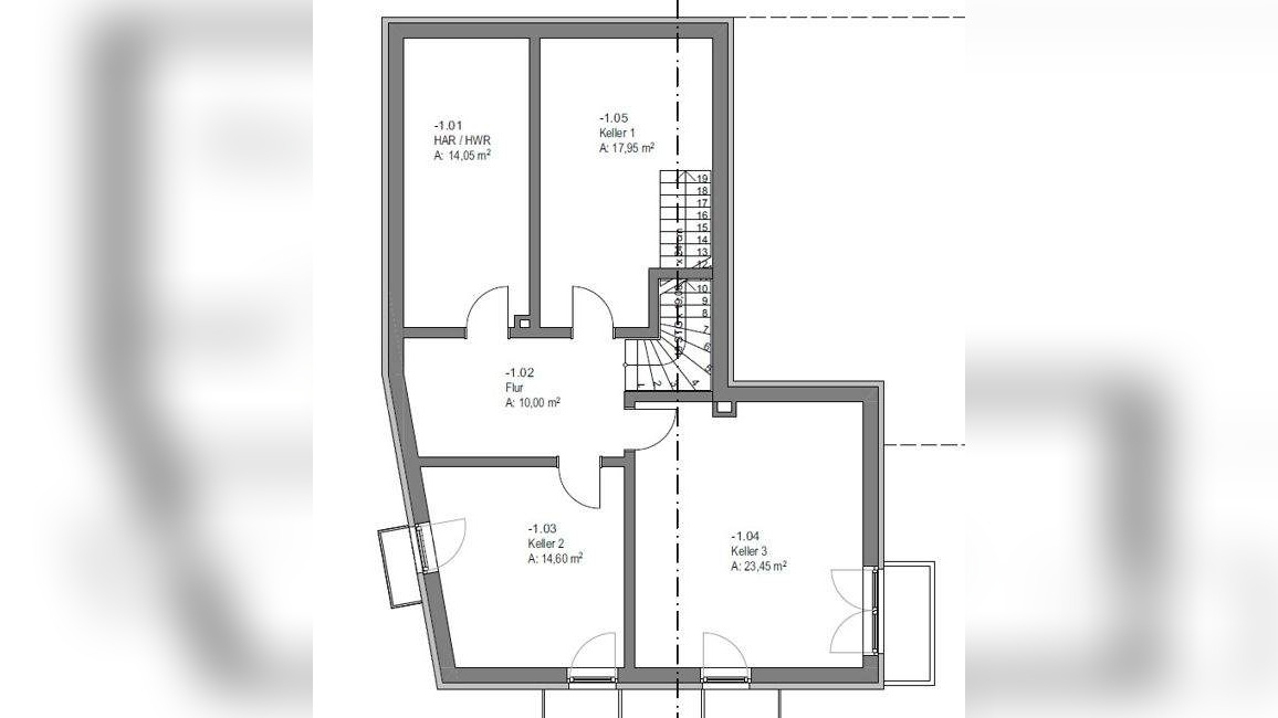
Hier können Sie Ihren individuellen Wohntraum verwirklichen: Basierend auf dem Planungskonzept »View« des renommierten Darmstädter Architekturbüros planquadrat haben Sie die Möglichkeit, Ihre Vorstellungen hinsichtlich Raumplanung, Ausstattungswünschen und Fassadengestaltung gemeinsam mit den Architekten bis zur Baureife zu entwickeln.Gestaltprägendes Thema aller Entwürfe ist eine polygonale Formensprache, die dem Gebiet seinen einzigartigen Charakter verleiht. Die Villa hat zwei Geschosse und ist voll unterkellert. Das übergreifende Farbkonzept wurde von einem Farbarchitekten entwickelt. Es betont die extravagante Architektursprache, lässt eine interessante Varianz im Quartier entstehen.Der Haustyp "View" mit seiner länglichen Gebäudeform bietet von der nach Süden ausgerichteten Dachterrasse Ausblicke in Richtung der Frankfurter Skyline.Das Erdgeschoss ist mit Bezug auf die Grundstückstopografie als Splitlevel konzipiert, der Wohn- und Essbereich weitet sich in seiner Raumhöhe zum Garten hin auf. Von der Garage aus erreicht man den Eingangsbereich geschützt durch das auskragende Obergeschoss. Große Fensteröffnungen im Erdgeschoss erzeugen einen räumlichen Bezug zum Garten, Fensterbäder im Obergeschoss betonen die lang gestreckte Gebäudeform. In den oberen Geschossen befinden sich die Individualräume. Im Erdgeschoss kann neben Wohn-, Ess- und Kochbereich ein weiterer Raum als Gäste- oder Arbeitszimmer eingerichtet werden.Ähnliche Angebote
So funktioniert es
- Alle neuen Anzeigen matchen wir kostenlos mit Deinen Suchparametern.
- Passende Angebote senden wir Dir in einer E-Mail pro Tag.
- Du kannst auch verschiedene Suchen anlegen und Dich jederzeit abmelden. Mehr dazu




