Kaufpreis 410.000 €
Zimmer 4
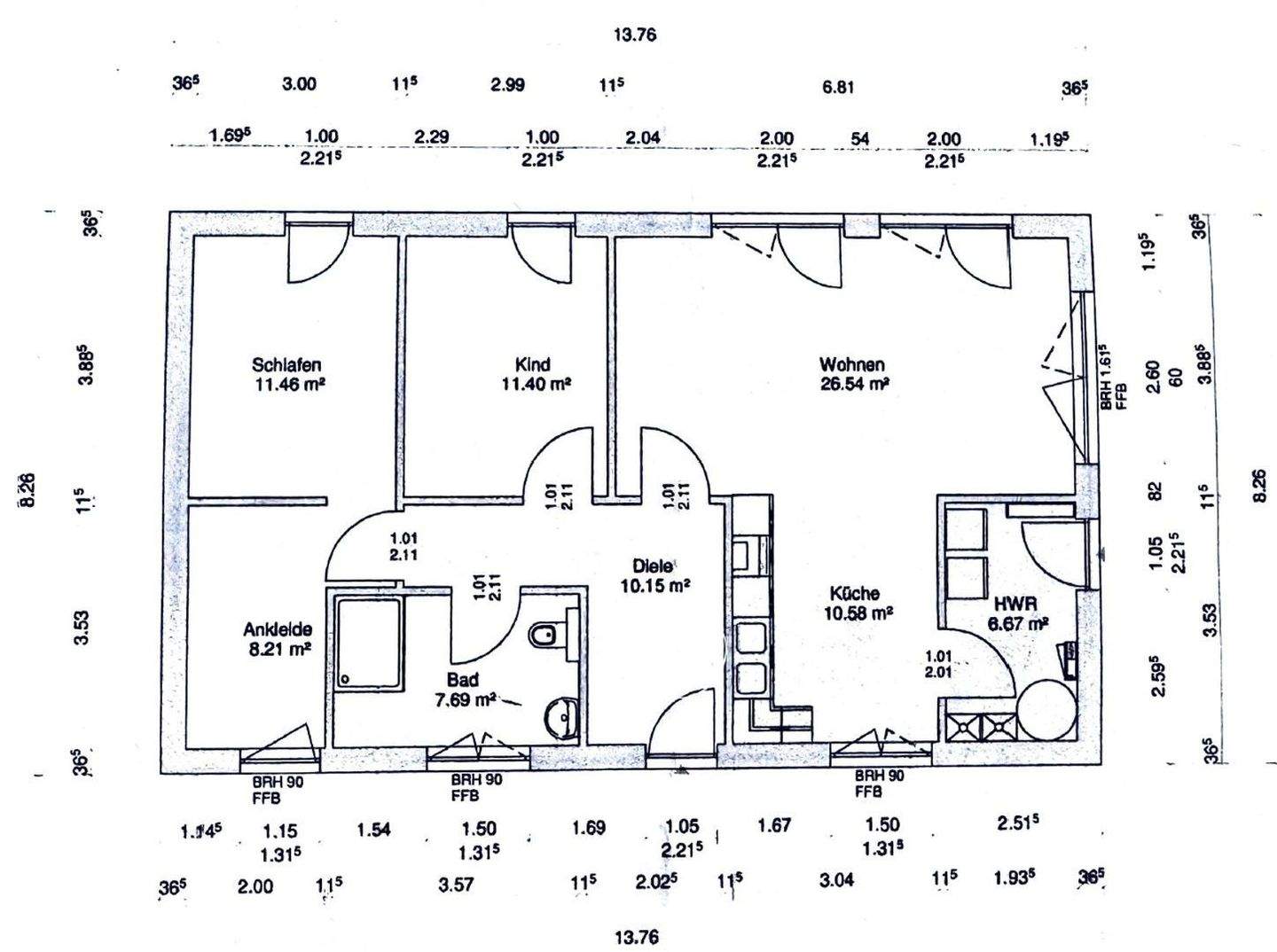
Größe 92 m²
17192 Waren (Müritz)
Objektdaten
Veröffentlicht am: 18. März 2026
Energieausweis: Liegt bei der Besichtigung vor
Danke! Bitte bestätige Deine E-Mail-Adresse – wir haben Dir soeben eine Mail geschickt.
Es gab ein Problem beim Absenden. Bitte versuche es erneut.
Bitte bestätige Deine E-Mail-Adresse, um Updates zu erhalten.
Objektbeschreibung
Dieser moderne und hochwertige Bungalow aus dem Baujahr 2023 überzeugt durch seine ebenerdige, durchdachte Bauweise sowie eine attraktive Lage in Waren (Müritz). Das Haus befindet sich in dritter Reihe, wodurch eine ruhige Wohnatmosphäre trotz der zentralen Lage gewährleistet ist.Mit einer Wohnfläche von ca. 92 m² bietet der Bungalow ein komfortables und barrierearmes Wohnkonzept, das sowohl für Paare, Senioren als auch für kleine Familien ideal geeignet ist. Die offene und helle Raumgestaltung sorgt für ein angenehmes Wohngefühl. Besonders hervorzuheben ist der Blick auf die Müritz, der den hohen Wohn- und Erholungswert dieser Immobilie unterstreicht.Der Bungalow befindet sich in einem nahezu bezugsfertigen Zustand. In den kommenden Wochen werden noch Restarbeiten am Haus abgeschlossen. Darüber hinaus sind kleinere Arbeiten vorgesehen, die vom neuen Eigentümer individuell nach eigenen Vorstellungen umgesetzt werden können. Dies bietet die Möglichkeit, letzte Details nach persönlichem Geschmack zu gestalten.
So funktioniert es
- Alle neuen Anzeigen matchen wir kostenlos mit Deinen Suchparametern.
- Passende Angebote senden wir Dir in einer E-Mail pro Tag.
- Du kannst auch verschiedene Suchen anlegen und Dich jederzeit abmelden. Mehr dazu
Wir haben soeben eine E-Mail mit Deinem Suchauftrag an Dich geschickt. – Klicke in dieser Mail auf den Bestätigungslink und schon geht's los. Prüfe ggf. auch Deinen Spamordner.
Es gab ein Problem beim Absenden Deiner E-Mail-Adresse. Bitte versuche es erneut.
WARNUNG: Bitte bestätige Deine E-Mail-Adresse, um regelmäßige Updates zu erhalten.