Warmmiete 950 €
Zimmer 2
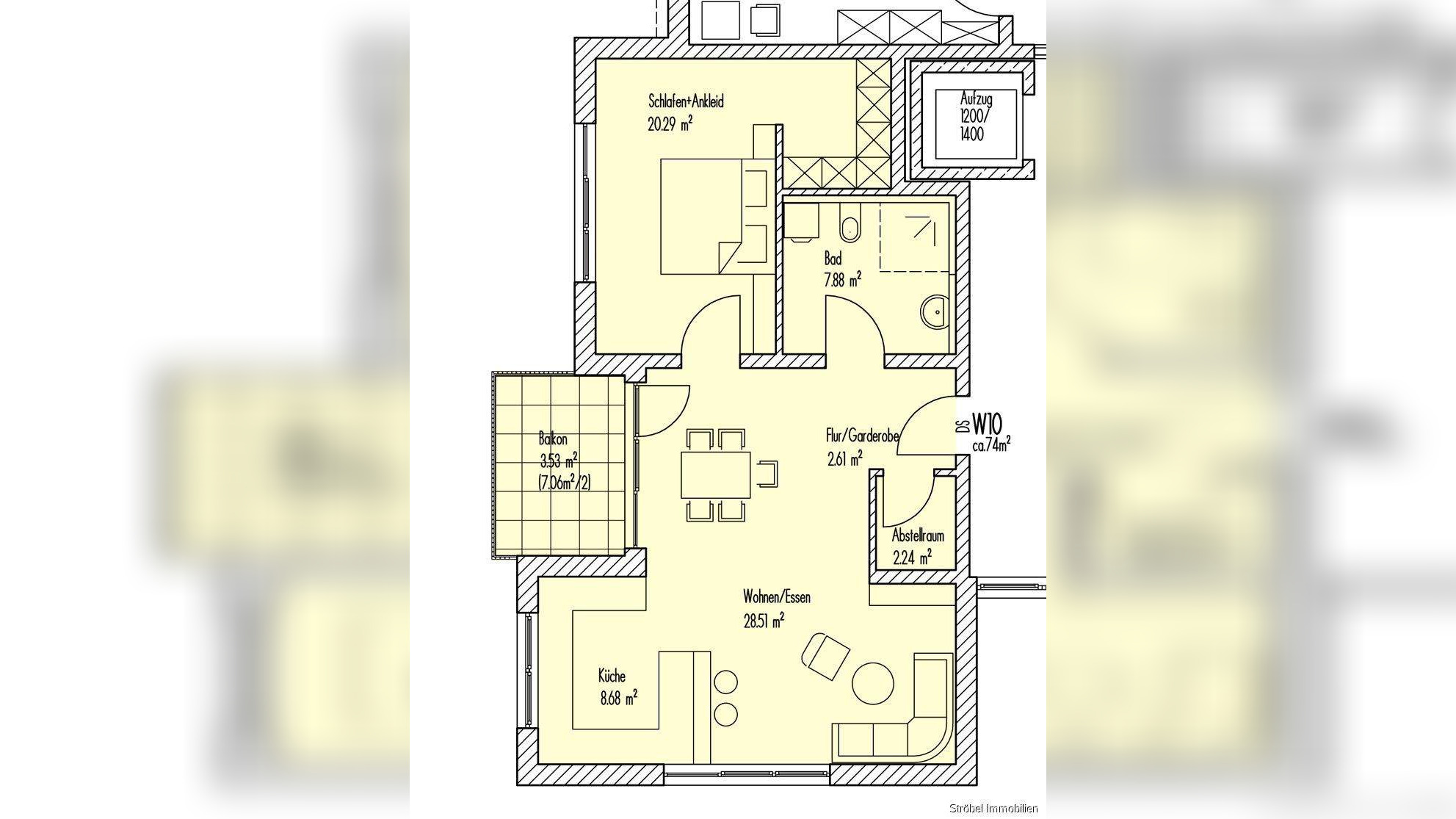
Größe 73 m²
91589 Aurach
Objektdaten
Veröffentlicht am: 18. März 2026
Kaltmiete 650 €
Baujahr: 2016
Energieausweis: Liegt bei der Besichtigung vor
Danke! Bitte bestätige Deine E-Mail-Adresse – wir haben Dir soeben eine Mail geschickt.
Es gab ein Problem beim Absenden. Bitte versuche es erneut.
Bitte bestätige Deine E-Mail-Adresse, um Updates zu erhalten.
Objektbeschreibung
Diese schöne, helle Wohnung im Generationenpark Lavendel ist in vielfacher Hinsicht etwas Besonderes. Ein moderner Wohnungsgrundriss bietet viel Platz, um den individuellen Bedürfnissen des Einzelnen genügend Raum zu geben.Zur Wohnung selbst gehört eine Kfz-Stellplatz und ein Abstellraum.Zusätzliche Annehmlichkeiten bietet der im Gebäude integrierte Aufzug.Die moderne Einbauküche und die Regale in der Abstellkammer können bei Bedarf für € 300,00 abgelöst werden.Wir freuen uns auf Ihre Anfrage.
So funktioniert es
- Alle neuen Anzeigen matchen wir kostenlos mit Deinen Suchparametern.
- Passende Angebote senden wir Dir in einer E-Mail pro Tag.
- Du kannst auch verschiedene Suchen anlegen und Dich jederzeit abmelden. Mehr dazu
Wir haben soeben eine E-Mail mit Deinem Suchauftrag an Dich geschickt. – Klicke in dieser Mail auf den Bestätigungslink und schon geht's los. Prüfe ggf. auch Deinen Spamordner.
Es gab ein Problem beim Absenden Deiner E-Mail-Adresse. Bitte versuche es erneut.
WARNUNG: Bitte bestätige Deine E-Mail-Adresse, um regelmäßige Updates zu erhalten.