Kaufpreis 1.290.000 €
Zimmer 5
Größe 133 m²
85540 Haar
Objektdaten
Veröffentlicht am: 18. März 2026
Baujahr: 1961
Energieausweis: Liegt bei der Besichtigung vor
Danke! Bitte bestätige Deine E-Mail-Adresse – wir haben Dir soeben eine Mail geschickt.
Es gab ein Problem beim Absenden. Bitte versuche es erneut.
Bitte bestätige Deine E-Mail-Adresse, um Updates zu erhalten.
Objektbeschreibung
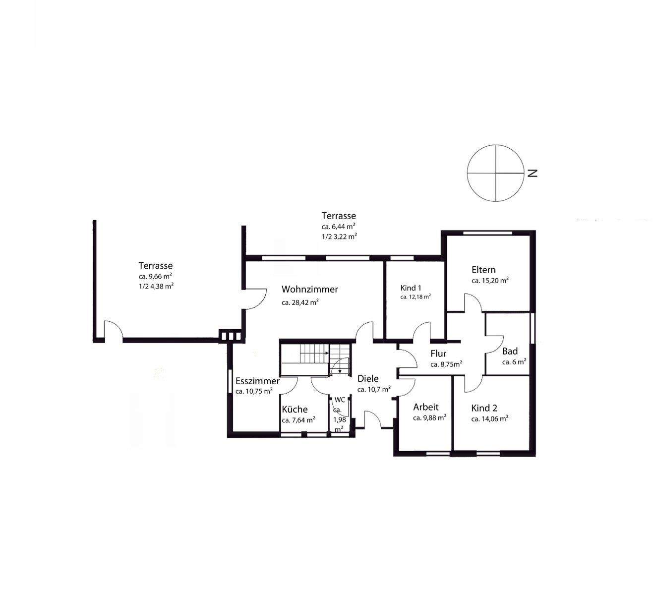
Dieser charmante und gepflegte Bungalow aus dem Jahr 1961 überzeugt durch ein großzügiges Grundstück von 853 m² sowie eine gut geschnittene Wohnfläche von ca. 114 m². Die Liegenschaft bietet eine solide bauliche Basis und überzeugt durch ihre durchdachte Raumaufteilung sowie das große Entwicklungspotenzial - sowohl im Bestand als auch durch die genehmigte Möglichkeit zur Errichtung eines zusätzlichen Nebengebäudes gemäß Bebauungsplan 47 -1.Einladend empfängt Sie die großzügige Diele, die den Zugang zur Küche, einem flexibel nutzbaren Raum und einem Gäste-Badezimmer bietet. Zudem führt sie Sie zum Herzstück des Hauses - zum offenen Wohn- und Essbereich mit einem wundervollen Blick in den grünen Garten. Des Weiteren gelangen Sie über die Diele zu einem angrenzenden privaten Flur, über den sie zu zwei Kinderzimmern, zum Elternschlafzimmer und zu einem voll ausgestatteten Badezimmer gelangen.Ein unterkellerter Bereich bietet darüber hinaus vielfältige Nutzungsmöglichkeiten, etwa als Lagerfläche, Hobbyraum oder Hauswirtschaftsbereich.Das Gebäude befindet sich in einem renovierungsbedürftigen Zustand, bietet Ihnen jedoch eine ausgezeichnete bauliche Grundlage für individuelle Modernisierungsmaßnahmen. So können Sie als künftige Eigentümer sowohl gestalterisch als auch energetisch nach eigenen Vorstellungen und zeitgemäßen Standards tätig werden.Diese Immobilie vereint eine attraktive Grundstücksgröße mit architektonischem Potenzial und bietet Käufern, die bereit sind, in eine wertsteigernde Modernisierung zu investieren, eine hervorragende Grundlage zur Realisierung eigener Wohnideen - sei es als familiäres Eigenheim, generationsübergreifendes Wohnen oder mit Zusatznutzung durch ein Nebengebäude.
So funktioniert es
- Alle neuen Anzeigen matchen wir kostenlos mit Deinen Suchparametern.
- Passende Angebote senden wir Dir in einer E-Mail pro Tag.
- Du kannst auch verschiedene Suchen anlegen und Dich jederzeit abmelden. Mehr dazu
Wir haben soeben eine E-Mail mit Deinem Suchauftrag an Dich geschickt. – Klicke in dieser Mail auf den Bestätigungslink und schon geht's los. Prüfe ggf. auch Deinen Spamordner.
Es gab ein Problem beim Absenden Deiner E-Mail-Adresse. Bitte versuche es erneut.
WARNUNG: Bitte bestätige Deine E-Mail-Adresse, um regelmäßige Updates zu erhalten.