Objektdaten
Objektbeschreibung
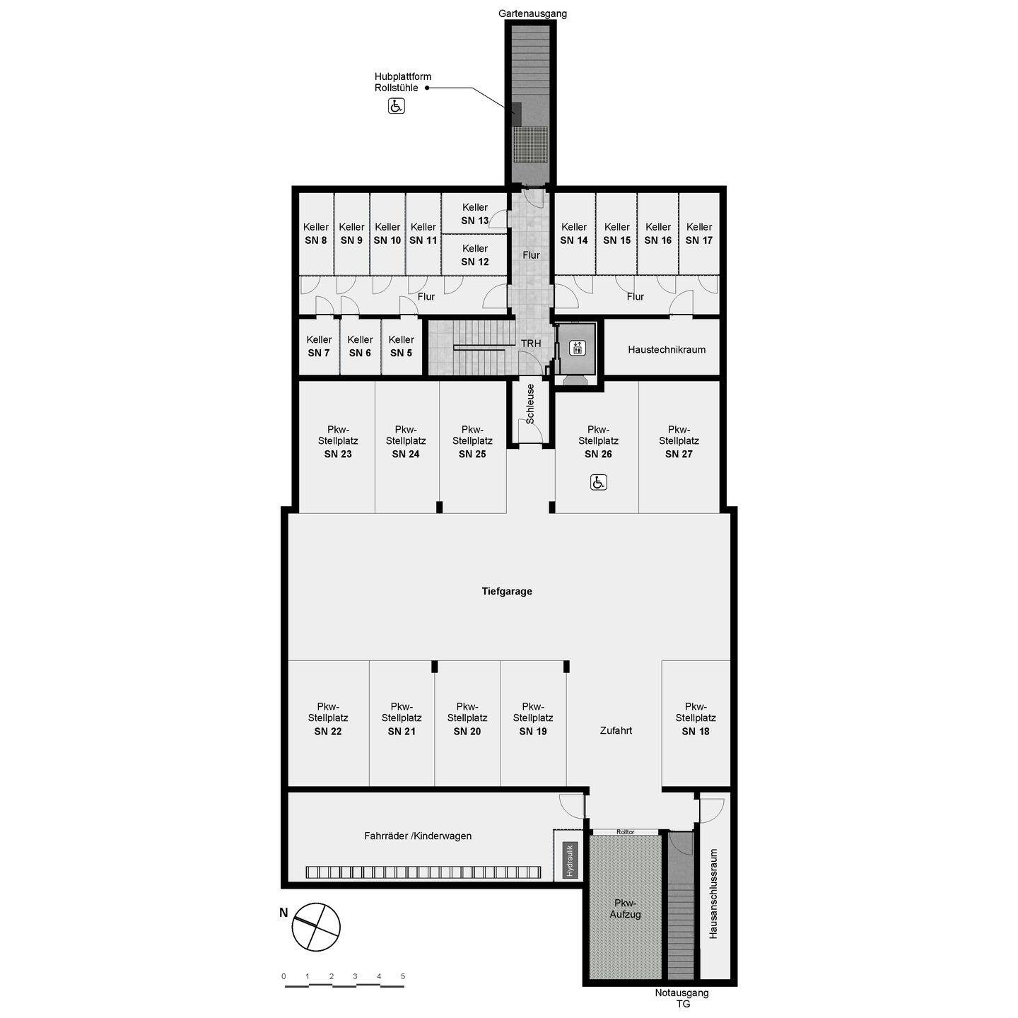
Auf dem 1324 m² großen Grundstück entsteht ein 5-geschossiges Wohnhaus mit 13 Wohnungen und einer Tiefgarage mit 10 Autoabstellplätzen sowie 2 Außenstellplätzen. Das Gebäude ist ca. 20 m von der Straße zurückversetzt und gliedert sich in die geschlossene Nachbarbebauung ein. Der rückwärtige Garten ist stark durchgrünt und durch die sehr großzügigen Nachbargrundstücke parkartig. Die gartenseitig gegenüberliegenden Häuser sind ca. 60 m entfernt, dadurch ist die Wohnlage absolut ungestört. Das Wohnhaus wird auf der Grundlage des Gebäudeenergiegesetzes (GEG) als „Effizienzhaus 40“ errichtet. Der Wohnungskauf kann somit mit KfW-Mitteln gefördert werden. Insbesondere attraktiv sind die zinsvergünstigen Darlehen für den "Klimafreundlichen Neubau" sowie die Abschreibungsmöglichkeiten.Die Baugenehmigung ist erteilt.Die moderne Architektur mit den aufwändigen Fassadendetails passt sich optimal der Umgebung an. Alle Wohnungen haben Terrassen oder Balkone. Unter dem Gebäude befindet sich eine Tiefgarage mit 10 Autoabstellplätzen und ausreichend Fahrradabstellplätzen, die bequem mit einem Pkw-Aufzug erreichbar sind. Sämtliche Etagen sind mit einem großen Personenaufzug anfahrbar. Die Erdgeschoßwohnungen haben jeweils einen Pkw-Außenabstellplatz zur Sondernutzung. Den anderen Wohnungen - außer Wohnung 4 - ist jeweils ein Autostellplatz in der Tiefgarage zugeordnet.Die Nebenräume für Haustechnik sowie die Abstellräume befinden sich im Untergeschoss.Die meisten Wohnungen werden gemäß § 50 der Bauordnung für Berlin barrierefrei errichtet.Der Baubeginn ist vorgesehen für das 3. Quartal 2025. Die Übergabe an die Käufer erfolgt im 4. Quartal 2026.Weitere Angaben finden Sie unter www.clas69.deÄhnliche Angebote
So funktioniert es
- Alle neuen Anzeigen matchen wir kostenlos mit Deinen Suchparametern.
- Passende Angebote senden wir Dir in einer E-Mail pro Tag.
- Du kannst auch verschiedene Suchen anlegen und Dich jederzeit abmelden. Mehr dazu




