Objektdaten
Objektbeschreibung
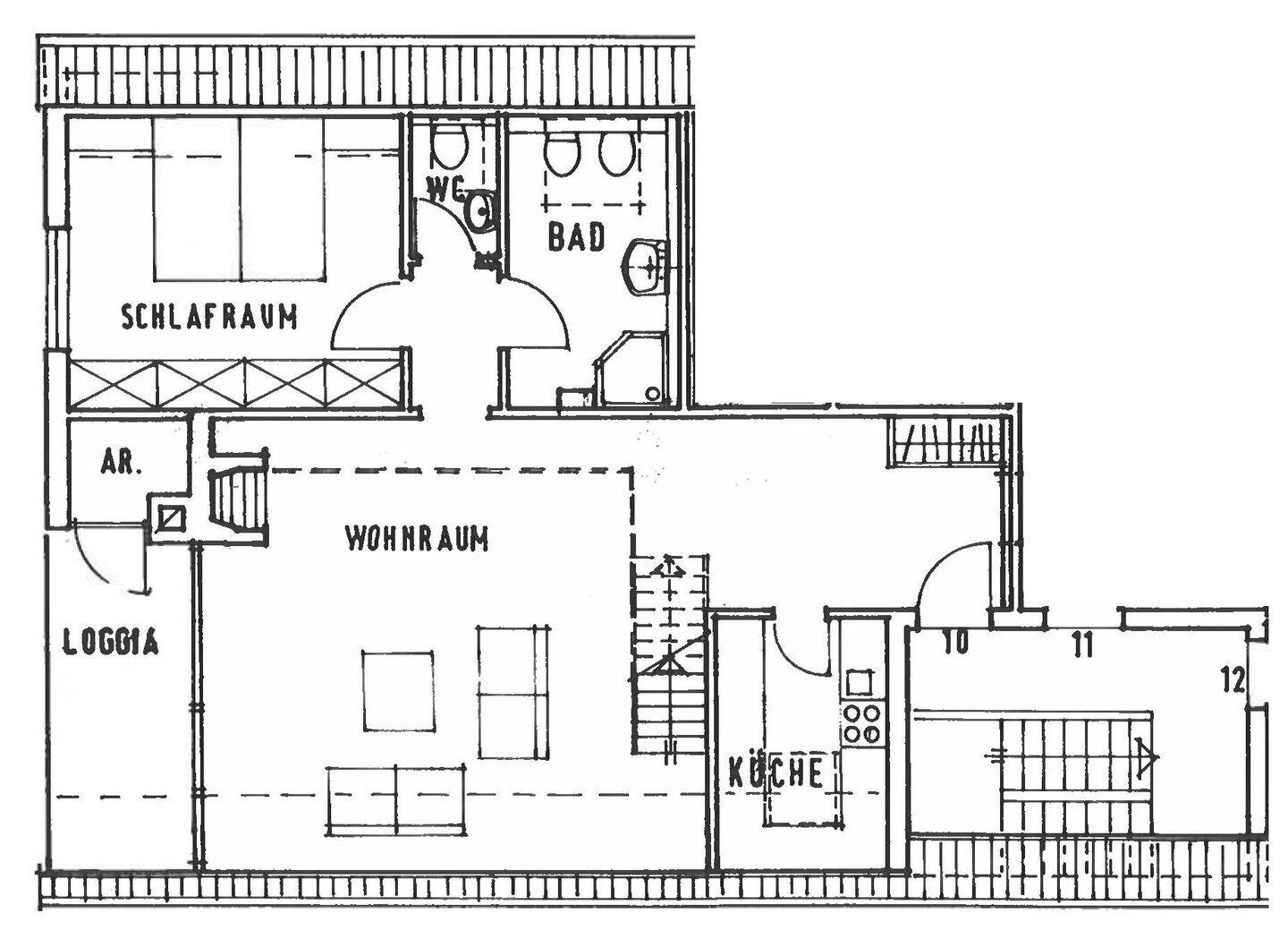
Attraktive Galeriewohnung im zweiten Obergeschoss.Mittelpunkt der Wohnung ist der offen gestaltete Wohn- und Essbereich mit über 38?m². Das große Fensterelement mit Zugang zur Südloggia sind ein echter Blickfang und sorgen für viel Licht. Besonders praktisch ist der Abstellraum an der Loggia für Balkonutensilien.Schlafzimmer, Küche, Duschbad sowie ein Gäste-WC ergänzen die Eingangsebene. Über eine Treppe gelangt man auf die offene Galerie - ideal als Home-Office. Ein weiterer, separat zugänglicher Raum komplettiert diese Ebene.Die Wohnung ist langjährig vermietet.Ähnliche Angebote
So funktioniert es
- Alle neuen Anzeigen matchen wir kostenlos mit Deinen Suchparametern.
- Passende Angebote senden wir Dir in einer E-Mail pro Tag.
- Du kannst auch verschiedene Suchen anlegen und Dich jederzeit abmelden. Mehr dazu


