Objektdaten
Objektbeschreibung
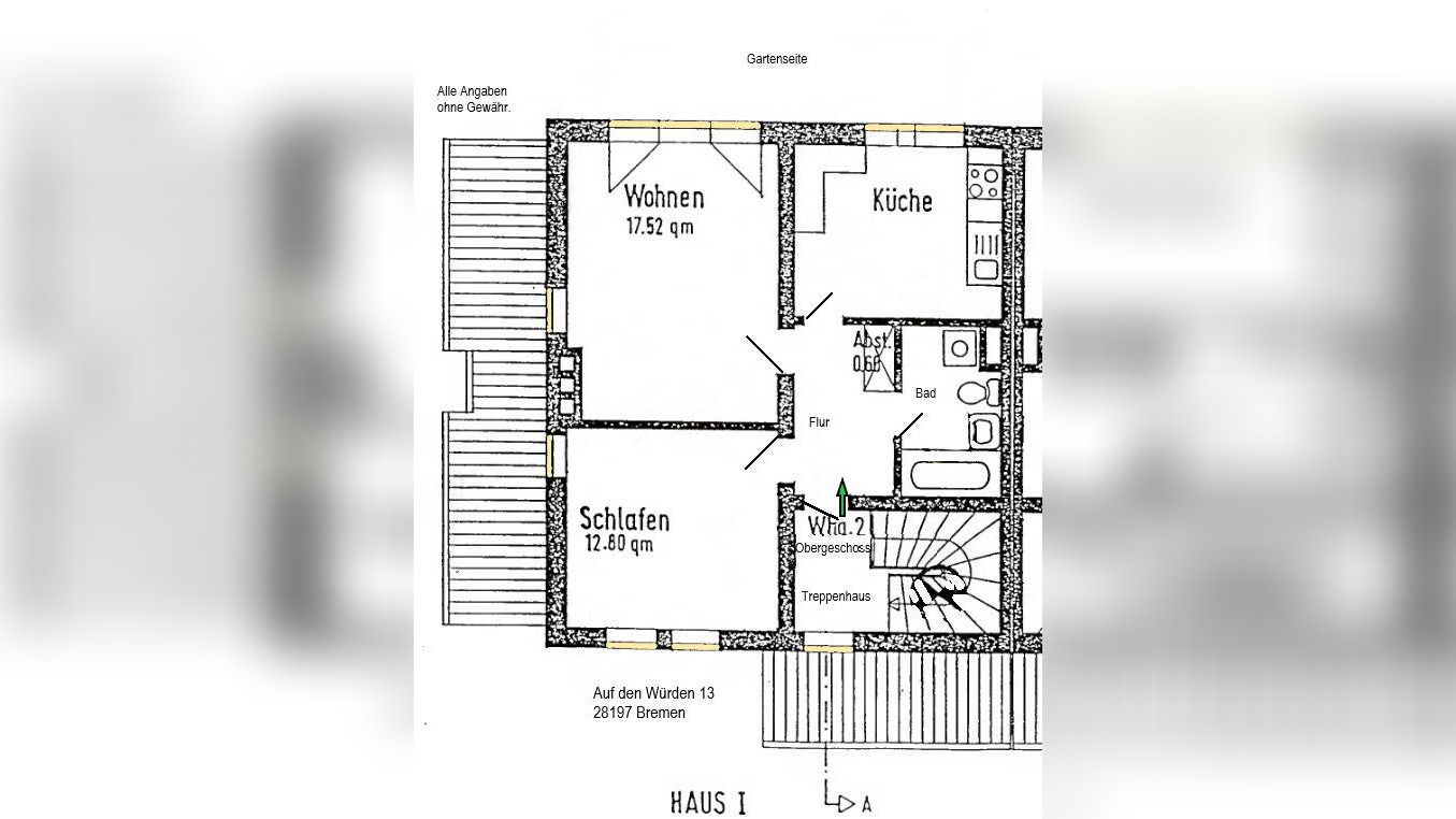
Bitte erst dieses Exposé lesen!KEINE Selbstnutzung, da bewohnt!Zum Verkauf steht eine Doppelhaushälfte, unterteilt in 2 Wohnungen, in der Nähe des Friedhofs in Woltmershausen. Beide Wohnungen sind unbefristet vermietet, eine Eigenbedarfskündigung ist nicht möglich. Eine Anmietung ist ebenfalls nicht möglich.Baujahr ca. 1989Grundstück 380 m², Eigenland.Wohnungsgröße jeweils ca. 50m²Die Mietverträge bestehen seit 2015 bzw. 2003.Nettokaltmiete 738 EUR mtl., Betriebskostenvorauszahlung 261 EUR mtl. für beide WE zusammen, Stand Nov. 2025. Letzte Mieterhöhung Nov.2025.Das Wohnungsgrundbuch ist lastenfrei in Abt.II+III.Aus Gründen der Privatsphäre werden keine Innenfotos veröffentlicht.Haben Sie Interesse? Dann senden Sie die Objekt-Id 39960-2 per WhatsApp oder Signal an 01525 681 3907, per Telegram an VonoviaVerkauf oder per Threema an *VONOVIA.Details zur Datenverarbeitung bei Vonovia finden SIe unter www.vonovia.de/datenschutz.Ähnliche Angebote
So funktioniert es
- Alle neuen Anzeigen matchen wir kostenlos mit Deinen Suchparametern.
- Passende Angebote senden wir Dir in einer E-Mail pro Tag.
- Du kannst auch verschiedene Suchen anlegen und Dich jederzeit abmelden. Mehr dazu




