Objektdaten
Objektbeschreibung
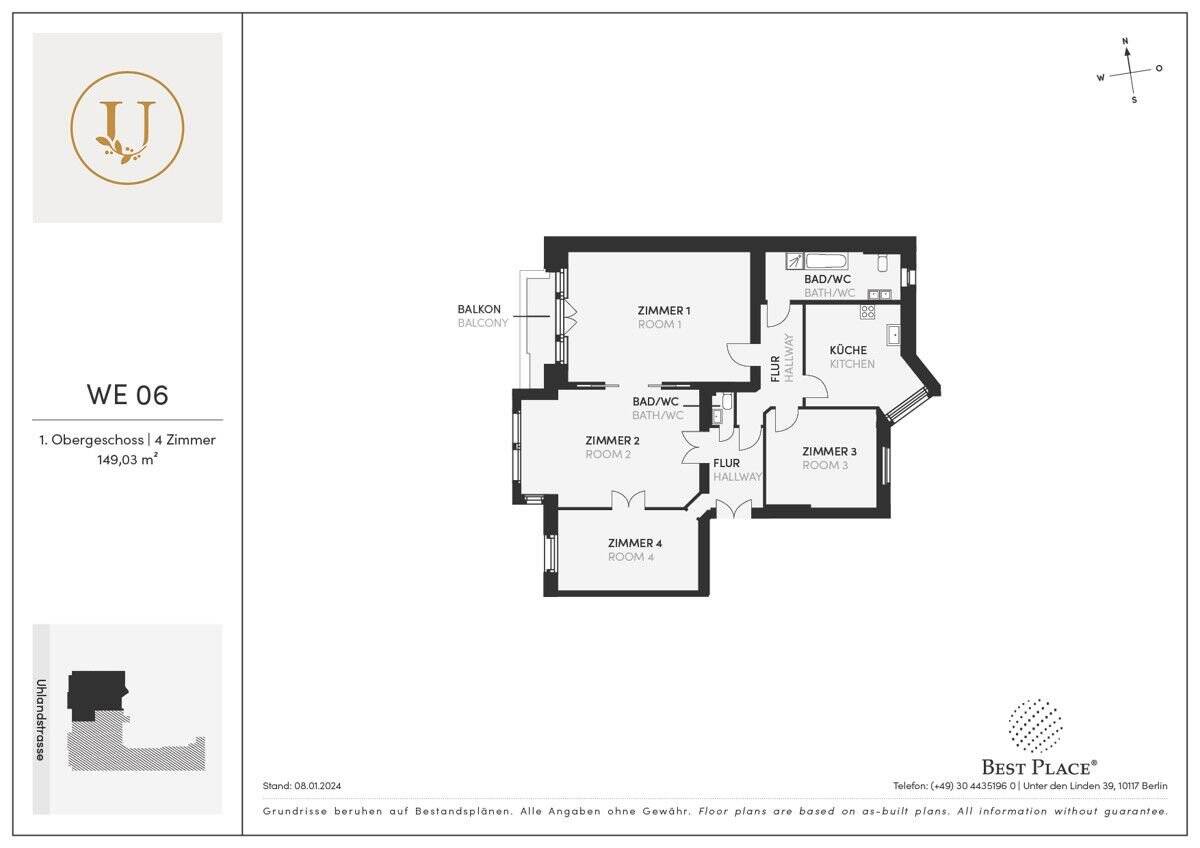
Das imposante Gründerzeitgebäude Uhland136 liegt in der beliebten Uhlandstraße in direkter Nachbarschaft weiterer eleganter Altbauten. Es wurde 1900 im Stil seiner Zeit erbaut: Erker, Balkone und Stuckverzierungen verleihen der Fassade Eleganz. Im Vorderhaus und Seitenflügel liegen auf sechs Etagen 18 Wohnungen und drei Gewerbeeinheiten. Die Wohnungen verfügen über ein bis vier Zimmer und eine besonders weitläufige Einheit über 6,5 Zimmer. Wie für Gründerzeitwohnungen typisch, ist die Raumaufteilung in den Wohnungen effizient - ideal vor allem für Familien. Tageslichtbäder sorgen für Komfort und verfügen überwiegend über eine Badewanne. Die meisten Wohnungen werden mit einem Balkon um einen Erholungsort an der frischen Luft erweitert. In den Dachgeschosswohnungen sorgen Dachterrassen für Sonnenmomente. Die drei Gewerbeeinheiten liegen im Erdgeschoss und werden für den Einzelhandel genutzt.Ähnliche Angebote
So funktioniert es
- Alle neuen Anzeigen matchen wir kostenlos mit Deinen Suchparametern.
- Passende Angebote senden wir Dir in einer E-Mail pro Tag.
- Du kannst auch verschiedene Suchen anlegen und Dich jederzeit abmelden. Mehr dazu




