Objektdaten
Objektbeschreibung
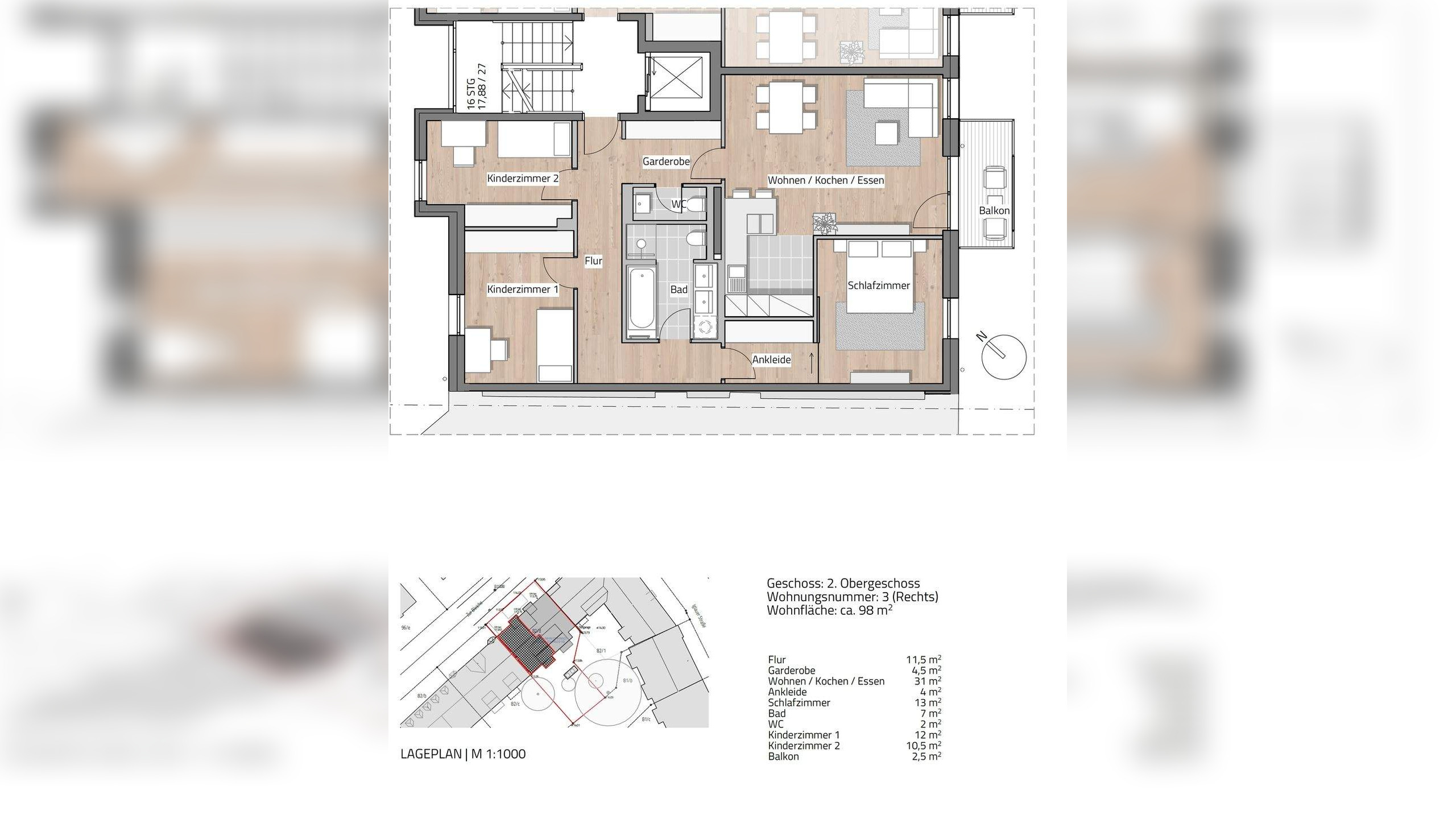
In ruhiger, idyllischer Lage einer Seitenstraße des beliebten Stadtteils Laubegast, entsteht ein kleines Mehrfamilienhaus mit 7 Wohnungen. Durch die hochwassersichere Bauweise, beginnen die Wohnungen im 1. Obergeschoss, im Erdgeschoss findet man die Garage.Der hohe Anspruch an den Energiestandard der Gebäudehülle sowie der 3-fach verlasten Fenster, gepaart mit einem modernen Heizsystem hält die zukünftigen Nebenkosten gering. Jede Wohnung ist als 3-Raum oder 4-Raum Variante ausführbar. Die Küchen können offen oder geschlossen gestaltet werden. Der Baubeginn ist im 1. Quartal 2026 geplant, die Fertigstellung wird ca. 18 Monate später erfolgen. Gern berücksichtigen wir Ihre individuellen Wünsche. Gern berücksichtigen wir Ihre individuellen Wünsche. Im Grundriss handelt es sich um die Wohnung Nr. 03. Da es sich um einen Neubau handelt, wird der Energieausweis erst noch erstellt.Ähnliche Angebote
So funktioniert es
- Alle neuen Anzeigen matchen wir kostenlos mit Deinen Suchparametern.
- Passende Angebote senden wir Dir in einer E-Mail pro Tag.
- Du kannst auch verschiedene Suchen anlegen und Dich jederzeit abmelden. Mehr dazu




