Objektdaten
Objektbeschreibung
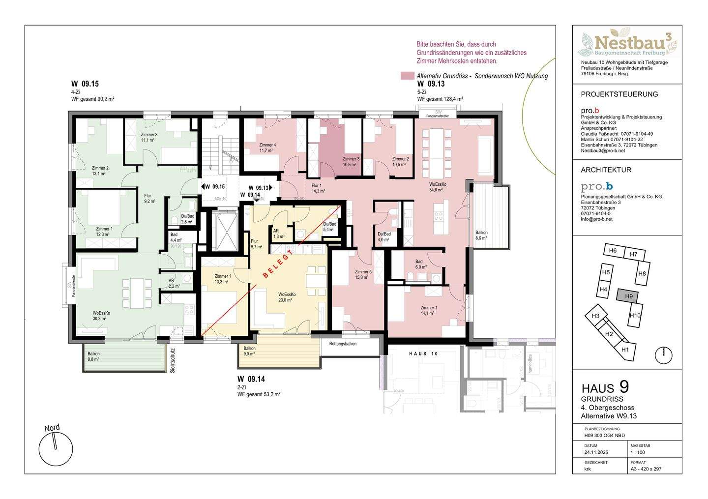
GEMEINSCHAFTLICH BAUEN UND WOHNEN ZUM SELBSTKOSTENPREIS = OHNE PROVISIONMit den Baugemeinschaftsprojekten Nestbau³ entwickelt und baut pro.b in Freiburg weitere familienfreundliche, generationenübergreifende Baugemeinschaftsprojekte. In 4 Bauabschnitten entstehen 230 Wohnungen in 10 Häusern, die sich um zwei miteinander verbundene Innenhöfe gruppieren. In den Erdgeschosszonen entlang der Neulinden- und Freiladestraße entstehen Gewerbeflächen. Ein ausgewogener Wohnungsmix von 2 bis 4-Zimmerwohnungen, ergänzt durch einige 5-Zimmerwohnungen, schafft Raum für Menschen mit verschiedenen Lebensentwürfen und in unterschiedlichen Lebensphasen. Innerhalb der Wohnung können Sie den Zuschnitt ganz individuell gestalten.Die ersten 4 Häuser sind komplett belegt, die hier inserierten Wohnungen befinden sich alle im Bau und können ab Sommer 2027 bezogen werden. Für alle Wohnungen ist eine KfW-Förderung, Klimafreundlicher Neubau mit QNG möglich. In den Programmen 297/298 erhalten Sie bis zu 150.000.-€. Besonders attraktiv ist das Programm 300 für Familien mit min. 1 Kind unter 18 Jahren, wenn dieses Ihre Erstimmobilie wird. Dabei gibt es sehr günstige Kredite ab 170.000.-. Weitere Informationen siehe: https://www.kfw.de/inlandsfoerderung/Privatpersonen/Neubau/Förderprodukte/Wohneigentum-für-Familien-(300)/Ähnliche Angebote
So funktioniert es
- Alle neuen Anzeigen matchen wir kostenlos mit Deinen Suchparametern.
- Passende Angebote senden wir Dir in einer E-Mail pro Tag.
- Du kannst auch verschiedene Suchen anlegen und Dich jederzeit abmelden. Mehr dazu




