Objektdaten
Objektbeschreibung
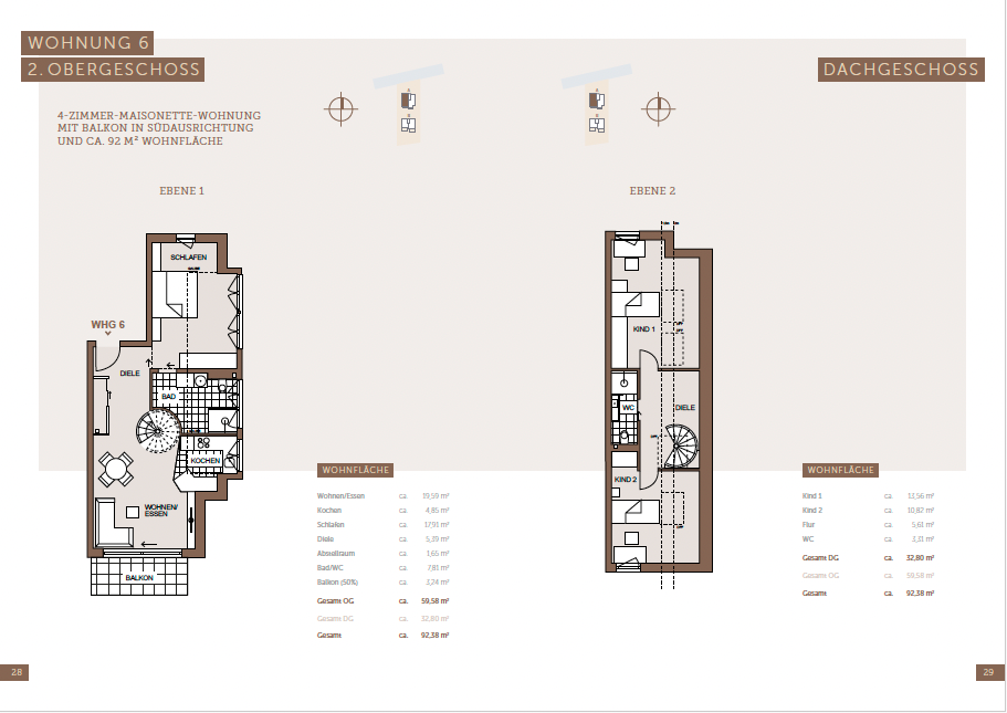
ACHT MODERNE WOHNEINHEITEN VERTEILT AUF ZWEI GEBÄUDE.Die beiden Häuser sind von der Friedrichstraße aus zugänglich. Zur Straße gerichtet entsteht das vordere Mehrfamilienhaus (A) mit insgesamt sechs Wohneinheiten. Die beiden Wohnungen im Dachgeschoss sind als Maisonette-Wohnung konzipiert.Das moderne Doppelhaus (B) wird rückwärtig zur Straße hinter Haus A errichtet. Architektonisch reizvoll fügt sich das Gebäude mit seinem Pultdach, der modernen Gebäudehülle sowie den großzügigen Fensterflächen in die Umgebung ein.Hierbei handelt es sich um die Wohnung 6: 4-Zimmer-Maisonette-Wohnung mit Balkon in Südausrichtung und ca. 92 m² Wohnfläche. Die Wohnung besticht mit einem gemütlichen & großzügigen Balkon in Südausrichtung und befindet sich im 2. Obergeschoss des vorderen Mehrfamilienhauses (A) - mehr unter www.f11-reutlingen.de.Ähnliche Angebote
So funktioniert es
- Alle neuen Anzeigen matchen wir kostenlos mit Deinen Suchparametern.
- Passende Angebote senden wir Dir in einer E-Mail pro Tag.
- Du kannst auch verschiedene Suchen anlegen und Dich jederzeit abmelden. Mehr dazu




