Objektdaten
Objektbeschreibung
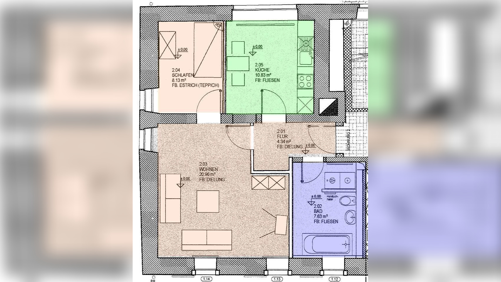
Wir bieten Ihnen eine hochwertig ausgestattete 2-Zimmer-Wohnung im Erdgeschoss eines modernen Bauernhaus. Das Gebäude ist mit solidem Natursteinmauerwerk errichtet und im Jahr 2009 hochwertig saniert worden. Im Jahr 2015 wurde eine neue Gas-Zentralheizung installiert. In dem idyllisch gelegenem Haus befinden insgesamt nur 4 Wohneinheiten. Zum Anwesen gehört ein großzügiger Garten.So funktioniert es
- Alle neuen Anzeigen matchen wir kostenlos mit Deinen Suchparametern.
- Passende Angebote senden wir Dir in einer E-Mail pro Tag.
- Du kannst auch verschiedene Suchen anlegen und Dich jederzeit abmelden. Mehr dazu


