Objektdaten
Objektbeschreibung
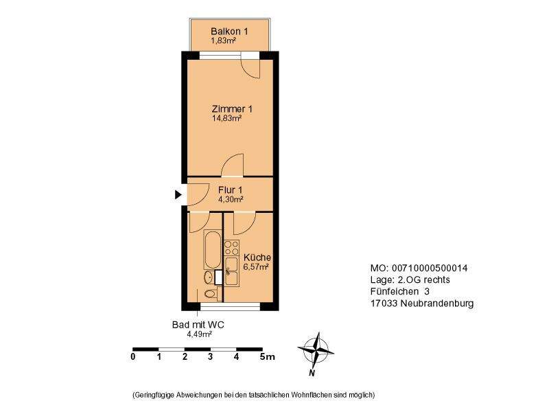
Das Objekt befindet sich im südlichen Randbereich der Stadt Neubrandenburg. Es bildet mit drei weiteren Mehrfamilienhäusern eine kleine separate Wohnsiedlung mit Gartenanlage und Garagenkomplex. Das Umfeld ist durch viel grün geprägt. Einkaufsmöglichkeiten sind inetwa 5 Autominuten entfernt zu finden.Im Frühjahr wird Umziehen noch attraktiver:Sichern Sie sich 3x eine halbe Kaltmiete oder einen 300 € Wunschgutschein - exklusiv für Neumieter der TAG Wohnen, für ausgewählte Wohnungen und einem Mietvertragsbeginn bis 31.05.2026. Nicht mit anderen Aktionen kombinierbar.Ähnliche Angebote
So funktioniert es
- Alle neuen Anzeigen matchen wir kostenlos mit Deinen Suchparametern.
- Passende Angebote senden wir Dir in einer E-Mail pro Tag.
- Du kannst auch verschiedene Suchen anlegen und Dich jederzeit abmelden. Mehr dazu




