Objektdaten
Objektbeschreibung
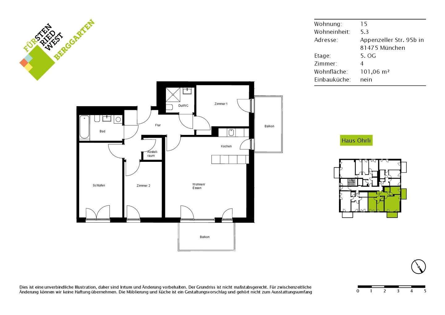
Diese helle und großzügige 4-Zimmer-Wohnung überzeugt mit einer idealen Raumaufteilung, moderner Ausstattung und zwei sonnigen Balkonen. Der offene Wohn- und Essbereich mit angrenzender Küche bildet das Herzstück der Wohnung. Große Fenster sorgen für viel Licht und ein angenehmes Wohngefühl. Vom Wohnbereich aus gelangen Sie direkt auf den Süd-Balkon, der zum Entspannen einlädt.Die offene Küche bietet viel Platz zum Kochen und Genießen - perfekt für gesellige Abende. Über die Küche erreichen Sie zudem den zweiten Balkon mit Morgensonne. Drei gut geschnittene Zimmer bieten vielfältige Nutzungsmöglichkeiten als Schlaf-, Kinder- oder Arbeitszimmer. Zwei moderne Bäder (ein Wannenbad und ein Duschbad) sorgen für Komfort im Alltag. Ein praktischer Abstellraum ergänzt das Raumangebot ideal.Ähnliche Angebote
So funktioniert es
- Alle neuen Anzeigen matchen wir kostenlos mit Deinen Suchparametern.
- Passende Angebote senden wir Dir in einer E-Mail pro Tag.
- Du kannst auch verschiedene Suchen anlegen und Dich jederzeit abmelden. Mehr dazu





