Kaufpreis 129.000 €
Zimmer 11
Größe 340 m²
31812 Bad Pyrmont
Objektdaten
Veröffentlicht am: 18. März 2026
Baujahr: 1905
Energieausweis: Liegt bei der Besichtigung vor
Danke! Bitte bestätige Deine E-Mail-Adresse – wir haben Dir soeben eine Mail geschickt.
Es gab ein Problem beim Absenden. Bitte versuche es erneut.
Bitte bestätige Deine E-Mail-Adresse, um Updates zu erhalten.
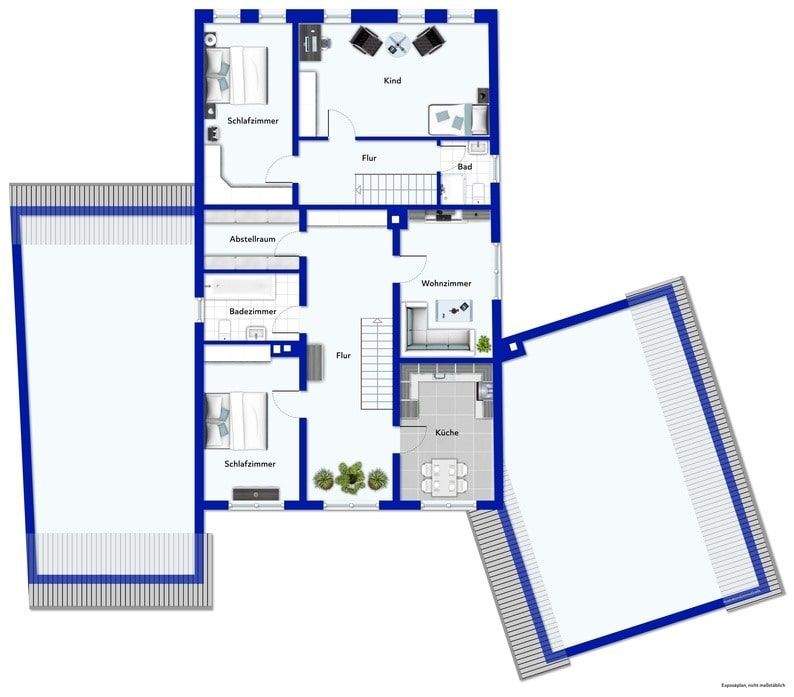
Objektbeschreibung
Dieses außergewöhnliche Zweifamilienhaus im ländlich geprägten Eichenborn, einem Ortsteil des beliebten Kurorts Bad Pyrmont, vereint historischen Charme mit zeitgemäßem Wohnkomfort. Das Ursprungsgebäude stammt aus dem Jahr 1850, wurde 1905 erweitert und 1970 umfassend kernsaniert. Seitdem wurde die Immobilie kontinuierlich gepflegt und modernisiert - von grundlegenden Maßnahmen wie dem Austausch der Heizungsanlage bis hin zu kontinuierlich kleineren Renovierungen.Mit einer großzügigen Wohnfläche von ca. 340 m² verteilt auf insgesamt 11 Zimmer bietet das Haus vielseitige Nutzungsmöglichkeiten. Zwei vollständig getrennte Wohneinheiten machen die Immobilie ideal für Mehrgenerationenwohnen, eine Kombination aus Eigennutzung und Vermietung oder großzügiges Wohnen mit viel Platz für Homeoffice und Gäste.Die Erdgeschosswohnung erstreckt sich über zwei Ebenen und umfasst fünf geräumige Zimmer. Von hier aus gelangt man auf die modernisierte Terrasse mit Zugang zum gepflegten Garten sowie in einen kleinen Wintergarten, der zu jeder Jahreszeit einen geschützten Rückzugsort bietet.Im Obergeschoss befindet sich eine weitere Wohneinheit mit 3 Zimmern, ergänzt durch 4 zusätzliche Räume im vollständig ausgebauten Dachgeschoss (Ausbau 2016). Die oberen Etagen bieten viel Platz zur freien Entfaltung - sei es als eigene Wohneinheit, als Arbeits- oder Gästebereich.Ein energetisches Highlight stellt die große Photovoltaikanlage (Mietkauf) mit angeschlossenem 11-kW-Speicher dar, die zur Verbesserung der Energieeffizienz beiträgt. Eine Wallbox ist bereits installiert. Die moderne Flüssiggasheizung wurde 2015 erneuert, mehrere Kamine sorgen zusätzlich für behagliche Wärme. Das ca. 674 m² große Grundstück bietet ausreichend Platz für Freizeitaktivitäten, Gartenliebhaber oder entspannte Stunden im Grünen. Abgerundet wird das Angebot durch drei Garagen - ein komfortabler Vorteil, der den Alltag deutlich erleichtert.
So funktioniert es
- Alle neuen Anzeigen matchen wir kostenlos mit Deinen Suchparametern.
- Passende Angebote senden wir Dir in einer E-Mail pro Tag.
- Du kannst auch verschiedene Suchen anlegen und Dich jederzeit abmelden. Mehr dazu
Wir haben soeben eine E-Mail mit Deinem Suchauftrag an Dich geschickt. – Klicke in dieser Mail auf den Bestätigungslink und schon geht's los. Prüfe ggf. auch Deinen Spamordner.
Es gab ein Problem beim Absenden Deiner E-Mail-Adresse. Bitte versuche es erneut.
WARNUNG: Bitte bestätige Deine E-Mail-Adresse, um regelmäßige Updates zu erhalten.