Kaufpreis 210.000 €
Zimmer 1
17498 Neuenkirchen
Objektdaten
Veröffentlicht am: 18. März 2026
Frei ab: 15. März 2026
Danke! Bitte bestätige Deine E-Mail-Adresse – wir haben Dir soeben eine Mail geschickt.
Es gab ein Problem beim Absenden. Bitte versuche es erneut.
Bitte bestätige Deine E-Mail-Adresse, um Updates zu erhalten.
Objektbeschreibung
Das Baugrundstück befindet sich in zweiter Reihe, sehr ruhig gelegen und von der Straße kaum einsehbar.
Eine 4m breite Zufahrt verbindet das Grundstück mit dem öffentlichen Bereich und bietet ausreichen Platz für Baufahrzeuge.
Die Grundstücksfläche beträgt ca. 630qm.
Die Umgebung zeichnet sich durch die einerseits ruhige Lage und andererseits optimale Infrastruktur aus.
Öffentliche Verkehrsmittel, Ärzte sowie Einkaufsmöglichkeiten sind sehr gut zu erreichen, sowohl zu Fuß, mit dem Fahrrad als auch mit dem PKW.
Für das umliegende Straßennetz, welches teilw. unbefestigt ist, existiert bereits ein Förderbescheid und die Herstellung wird in absehbarer Zeit beginnen.
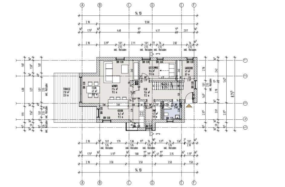
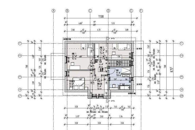
Im Kaufpreis enthalten ist eine Baugenehmigung für ein Einfamilienhaus mit ca. 150qm Wohnfläche und insgesamt 5 Zimmern, 2 Bädern, einem Hauswirtschaftsraum sowie großzügiger Garderobe
Der Grundriss sowie die Gestaltung können mit dem Architekten noch individuell abgestimmt werden.
Nach einem Kauf steht einem zügigen Baustart nichts im Weg!
So funktioniert es
- Alle neuen Anzeigen matchen wir kostenlos mit Deinen Suchparametern.
- Passende Angebote senden wir Dir in einer E-Mail pro Tag.
- Du kannst auch verschiedene Suchen anlegen und Dich jederzeit abmelden. Mehr dazu
Wir haben soeben eine E-Mail mit Deinem Suchauftrag an Dich geschickt. – Klicke in dieser Mail auf den Bestätigungslink und schon geht's los. Prüfe ggf. auch Deinen Spamordner.
Es gab ein Problem beim Absenden Deiner E-Mail-Adresse. Bitte versuche es erneut.
WARNUNG: Bitte bestätige Deine E-Mail-Adresse, um regelmäßige Updates zu erhalten.