Objektdaten
Objektbeschreibung
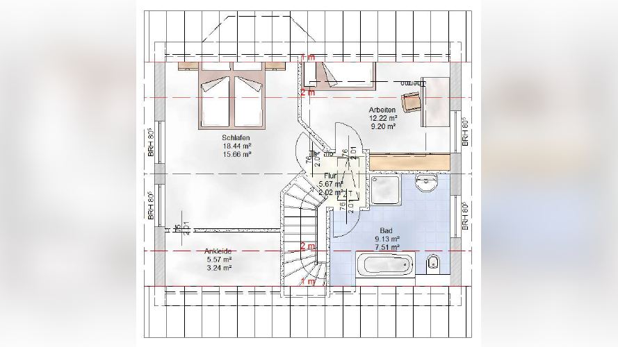
Das hier beispielhaft dargestellte Haus wird von Elbe-Haus® in gewohnt qualitativ hochwertiger Bauweise errichtet und kann natürlich auch in den Abmaßen und Grundrissen nahezu beliebig (materialbereinigt) kostenfrei verändert werden und erfüllt mit Sicherheit Ihre sämtlichen Qualitätsansprüche. Im angegebenen Hauspreis (zzgl. BNK) ist der Grundstückspreis (319 m²) bereits erhalten. Provisionen für Haus und Grundstück fallen nicht mehr an. Kalkuliert ist hier die bezugsfertige Fertigstellung (außer Fußboden- und Malerarbeiten der nicht gefliesten Flächen) ohne weitere Eigenleistungen (können aber auch vereinbart werden). Zur Sicherheit unserer Bauherren wird nicht nur der Festpreis für 24 Monate garantiert, sondern auch die Bauzeit und der Baubeginn vertraglich fixiert. Ein unabhängiger Bausachverständiger der DEKRA überwacht den Bauablauf und zertifiziert bei Übergabe die fachgerechte Ausführung.Ähnliche Angebote
So funktioniert es
- Alle neuen Anzeigen matchen wir kostenlos mit Deinen Suchparametern.
- Passende Angebote senden wir Dir in einer E-Mail pro Tag.
- Du kannst auch verschiedene Suchen anlegen und Dich jederzeit abmelden. Mehr dazu



