Objektdaten
Objektbeschreibung
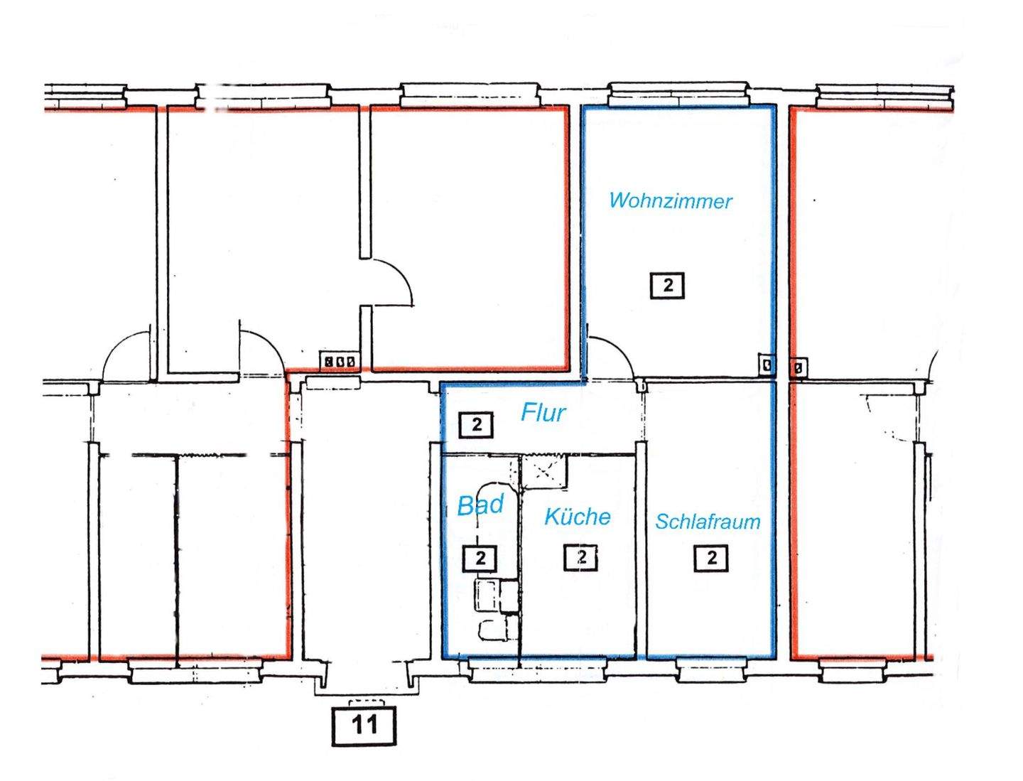
Im Erdgeschoss eines Mehrfamilienhauses mit insgesamt 40 Wohnungen befindet sich diese Einheit. Sie liegt in einem ruhigen und einladenden Wohnviertel, das von gepflegten Einfamilien- und Mehrfamilienhäusern umgeben ist. Die kleinen Grünflächen in der Umgebung tragen zu einer harmonischen Nachbarschaft bei und schaffen eine entspannte Atmosphäre zum Wohnen.Ähnliche Angebote
So funktioniert es
- Alle neuen Anzeigen matchen wir kostenlos mit Deinen Suchparametern.
- Passende Angebote senden wir Dir in einer E-Mail pro Tag.
- Du kannst auch verschiedene Suchen anlegen und Dich jederzeit abmelden. Mehr dazu




